90後年輕業主對於住宅的需求,同步於他們當下的生活追求。無界限的網絡社交帶來層出不窮的創意需求,“變”,是他們生活的主旋律。設計給到一個“純淨空間”,能由其根據需求隨意改造與調整生活方式,則需求得以滿足。
少即是多 留白之美
東方的意境之美是“留白”,將遐想留給看客。室內的“留白”帶著建築的理性與嚴謹,同時追求空間的精簡與完美。
在新技術與新材料不斷創新的當下,純淨的白色空間曆久彌新,無論從色彩或是肌理上,都淨化掉了多餘的裝飾。空間至簡的同時,為日後生活的變換增加了更多可能性。
模塊布局 流動平麵
簡化結構體係後,模塊化軟裝的介入,在很大程度優化了其本身“空”的狀態,形成可變通的空間體驗。
組合沙發從視覺上連接了閱讀區、衣帽間、生活陽台、休閑區等功能空間的流通動向,多重組合形式萌發出更多的生活動態。
無界限生活方式
時代的一粒灰,落在個人頭上都是一座大山。新時代的居住空間,工作與生活的界限在居家的環境下變得模糊,每個人都在時代的浪潮中,不斷變換著生存方式與居住屬性,空間的不確定性即是在適應時代的變更。
主訴變換 定義多維
空間從結構中產生,卻又不受限與結構,多功能房置於整體空間的中間位置,移門作為可移動的隔牆,將大空間劃分為互相聯係貫通的小空間,業主可以隨意布置,將空間的功能定義多維度延伸。
樓梯如綢帶般扭轉向上,貫通一二層空間,同時亦是承擔著由公區至私密區域情緒轉換的功能。色彩方案一路延伸,不做刻意區分,空間形成整體性的感知,於是界限被再次打破。
打破常規 大膽布局
主次空間的功能訴求點被再次合並,重新探討主臥與衛浴空間的關係,通過玻璃將臥室空間二次打開,形成與幹區的互動,浴缸作為獨立的個體與睡眠區域相結合。量身定製的設計理念便是探索業主本身的可能性,再做大膽而謹慎的嚐試。
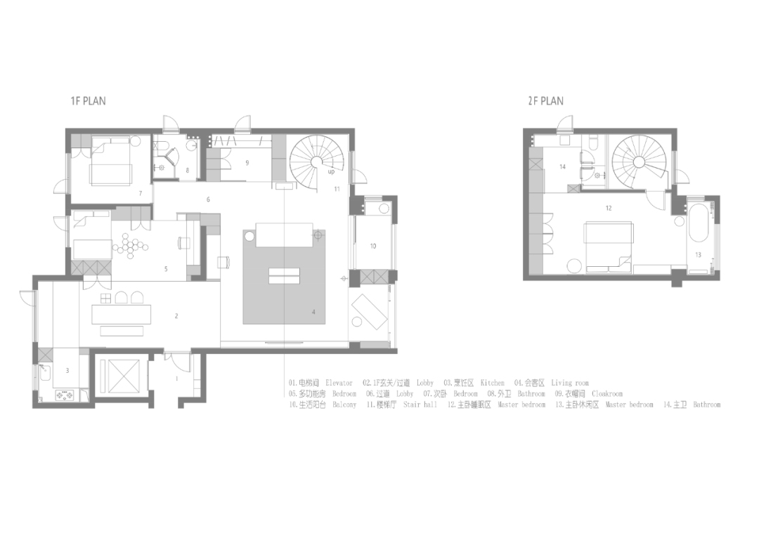
∇ 平麵圖
項目信息
項目名稱|純淨主義
項目地址|中國 浙江 瑞安
設計公司|千上設計
設計主持|薑萬靜
設計團隊|薑萬靜、蔡麗君、潘琪靖
施工公司|千盛裝飾
工程負責|徐崇哲
項目攝影|吳昌樂
建築麵積|174m²
設計時間|2020.4-2020.6
完工時間|2021.9
鳴謝單位|Womehome 今世家國際家居、歐諾(大宅)全屋定製、雅素麗進口瓷磚、HARO德國漢諾地板、鴻聯國際衛浴、歐頓照明、偉峰金屬製品、豐澤藝術塗料































