外 | External
本項目的建築對麵就是忻州古城的秀容書院,幾乎是遊客來忻州古城必逛的一個景點,所以要能和書院有一個好的互動承接,能滿足一部分遊客在逛完書院後臨時休息一下 靜下心來喝喝茶看看書,享受古城的這種古樸氣韻。
內 | Inside
在原建築的空隙裏植入了不同大小的玻璃結構空間,把原本各自封閉的空間連接起來。在院子裏植入了一條半高的弧線牆體,對原來四平八穩的空間格局進行擾動的同時也豐富了院子的使用場景。
前廳區在原建築結構內嵌入一個箱體,作為入口緩衝空間的同時直接擠壓原空間進深,客人進入就直接近距離麵對庭院,視線多個層次穿透。
門廳入口處獨立的木柱和半圓形的紅色薄牆用來緩衝北方寒冬冷風的侵入。
∇ 空間概念圖
嵌入的門廳箱體結構故意和原建築的梁架結構錯位放置,造成一些認知上的陌生感和模糊感。
原木結構的磚質隔牆幾乎全部拆除,裸露出原本藏在牆體內的梁架結構。
門廳進入的過程中故意留了一個窺視孔,增加了趣味性。
原建築的磚質隔牆全部拆除,取而代之的大落地玻璃讓空間更加的通透。弧形的半高牆體直接貫穿兩個空間。
弧形半高牆砌築的時候也參照了當地建築花牆的做法,即分隔又通透。
半高牆體隔出較小的庭院空間。
小尺度的庭院空間和兩棵原來庭院留下的小樹完美的融合在一起。
拱形的門洞連接茶空間和閱讀空間。
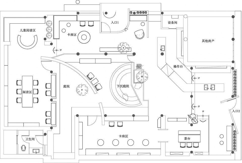
∇ 平麵圖
項目信息
項目名稱:馬侖茶庭
項目地址:山西忻州古城
設計公司:馬霄龍設計工作室
設計師:馬霄龍
項目麵積: 240平米
設計起止日期:2022.4
完工時間:2022.9
主要材料:花崗岩、瓷磚、微水泥、玻璃
項目攝影:RICCI空間攝影
版權聲明:本站所有文章除投稿授權發布外,其他文字內容均為原創,享有著作權保護,未經許可不得以任何形式進行轉載(包括且不限於:媒體、網站、公眾號等)。所有項目照片/設計圖形版權歸原作者所有。本站部分內容源自網絡公開資源或用戶分享,如若侵犯了原作者的合法權益,可聯係我們進行處理。
























