自然擁有自我的靈性與品性,靜靜處於一隅,便能讓我們感受到無限的生命力。
成都,一個消閑而舒適的城市。MDO的新項目桃源拾光共享農莊落成於此,坐擁沃野環抱、密林簇擁的田園景觀。我們從自然中汲取設計靈感,將風景視為空間的重要部分,選用色調自然、柔美、簡約的建築材料鼓勵客人回歸質樸且充滿詩性的生活。
寬廣的空間視野,以和諧的方式整合了內部和外部時刻,並將空間延伸到露台。門前播種了連片的向日葵。門框猶如現代藝術的“畫框”,將室外的風景“框”入室內。內部山牆屋頂的靈感來源於對傳統建築元素的捕捉,木紋的質樸與連續性進一步模糊了自然與庇護所的界限,使人們能溫和的感知空間的整體性。
MDO專注於光線和空間,希望人們每天都能享受到度假的休閑感。設計師從川西民居的舊居所中提取了當地的手工藝品和材料,並以一種新的方法使其相融於現代設計。最終以花窗、錐形帽、天然木材、竹編製品等作為與川西民居及當地工藝的聯係。
自然的色調,以確保在不同材質的因子之下,色彩也能夠在空間中流暢的連貫起來。粗鑿的器皿、幹樹枝和藤編元素為現代空間增添了鄉村氣息;弧形的牆角、立縫屋頂和具有相同間距的單層山牆都賦予了空間寧靜的田園美感,鼓勵人們以日常最單純的姿態遊走於閑逸、純粹的空間之中。設計師將沙發放在直麵戶外花園的位置,自然地將窗外景色兼納於室內,人們可以慵懶的躺在沙發上感受四季的交替。
多功能空間融合了成都的地域文化特色,如麻將與蓋碗茶。當潔淨的晨光將樹蔭印映在窗簾上時,抽象的時間仿佛變得可以觸碰,在視覺獲得享受的同時,精神也變得更為輕盈。我們在一層熱鬧的公共域和三層安靜的私有域之間創建了一個‘緩衝區’。二層空間被視為完全適應環境變化的空間,為文教研學提供場地;茶室也在與自然和光影互動時,盡顯和敬清寂之韻。
天地悠悠、往來種作,田間采鮮,桑麻清茶,四季交替… …MDO將環境的感觸、材料的研究、在地性的探索及空間美學等相融於愜意的自然中,為來訪者輸送能量,鼓勵人們在此處找回和自己的鏈接。給自然及其中的生活留下了大量可譜寫的篇章。
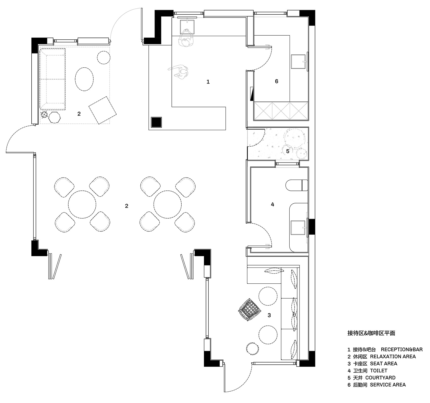
∇ 咖啡廳和接待區平麵圖
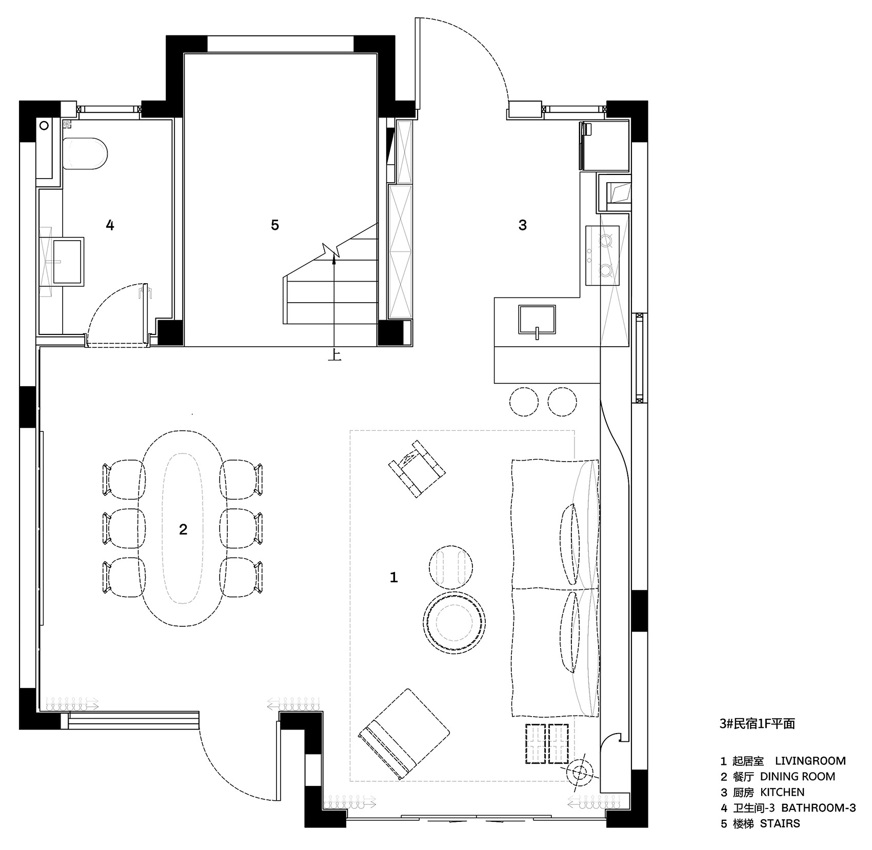
∇ 民宿A一層平麵圖
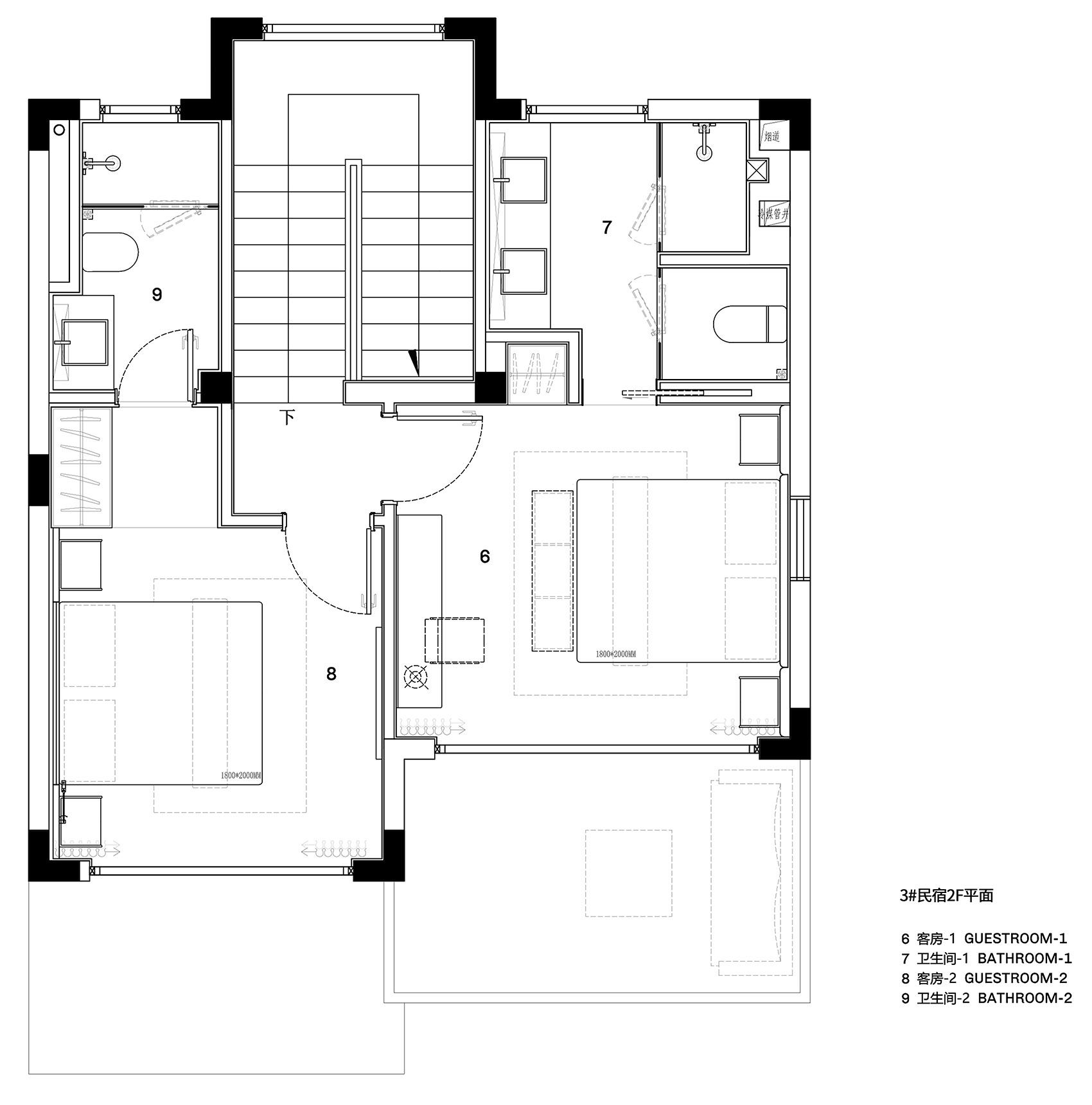
∇ 民宿A二層平麵圖
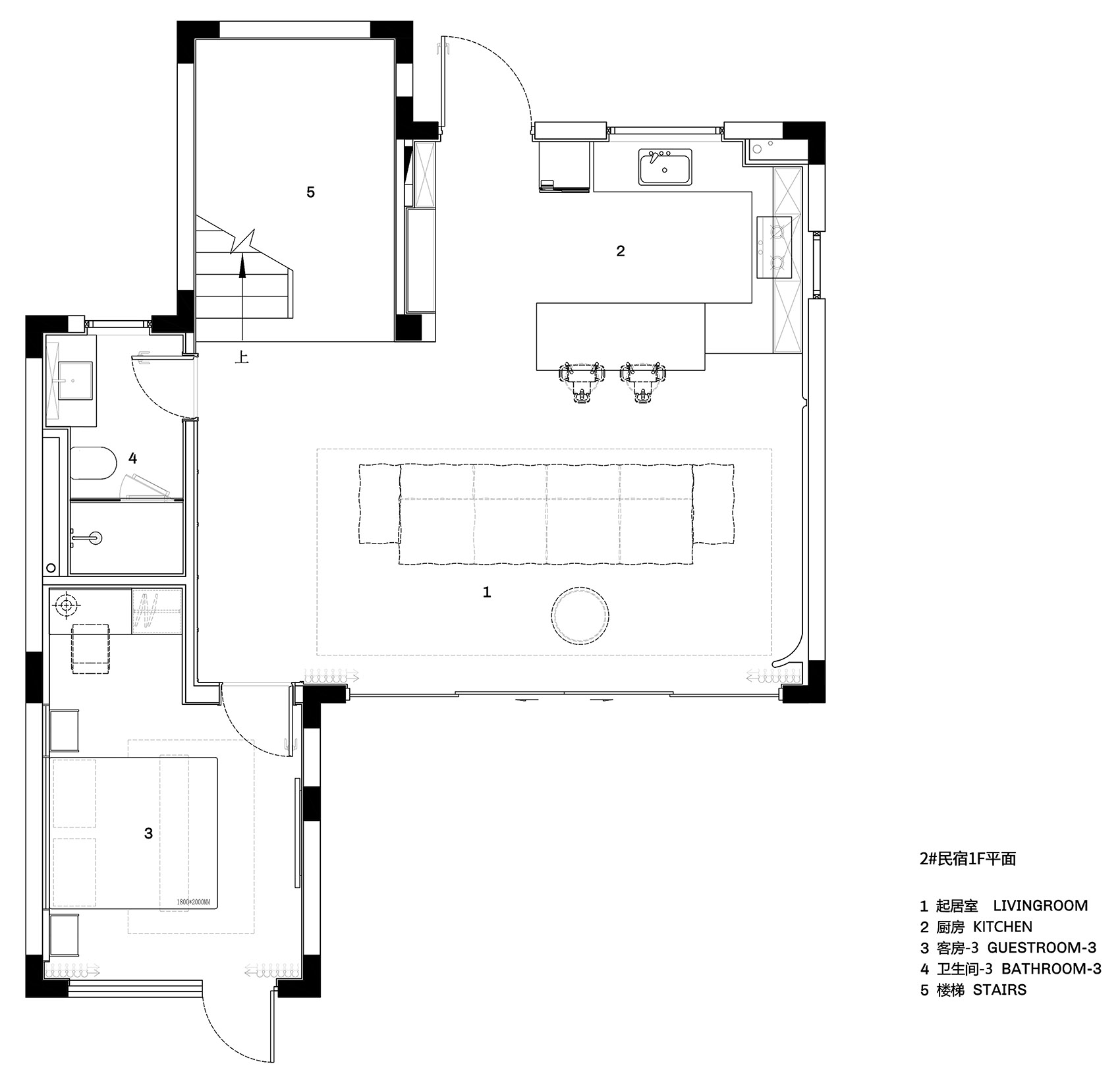
∇ 民宿B一層平麵圖
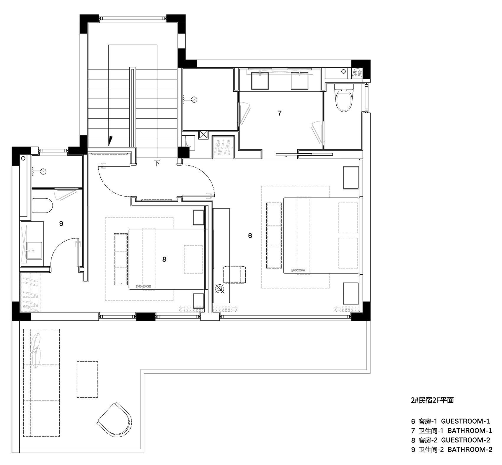
∇ 民宿B二層平麵圖
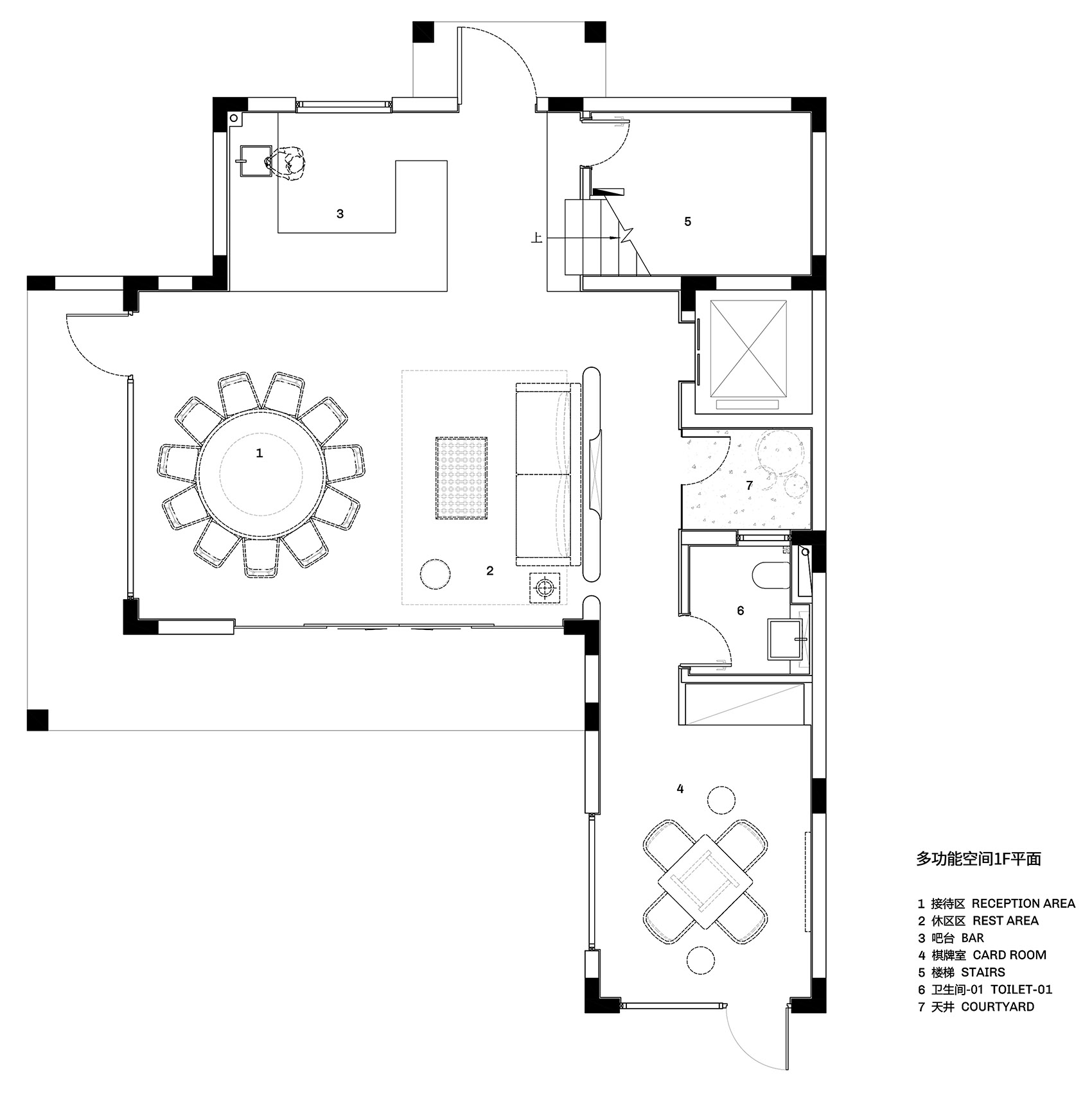
∇ 多功能房一層平麵圖
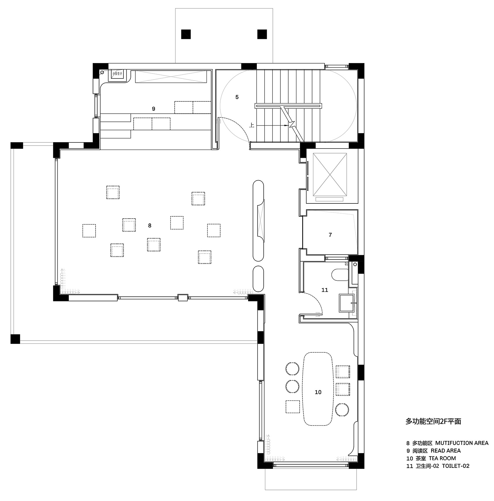
∇ 多功能房二層平麵圖
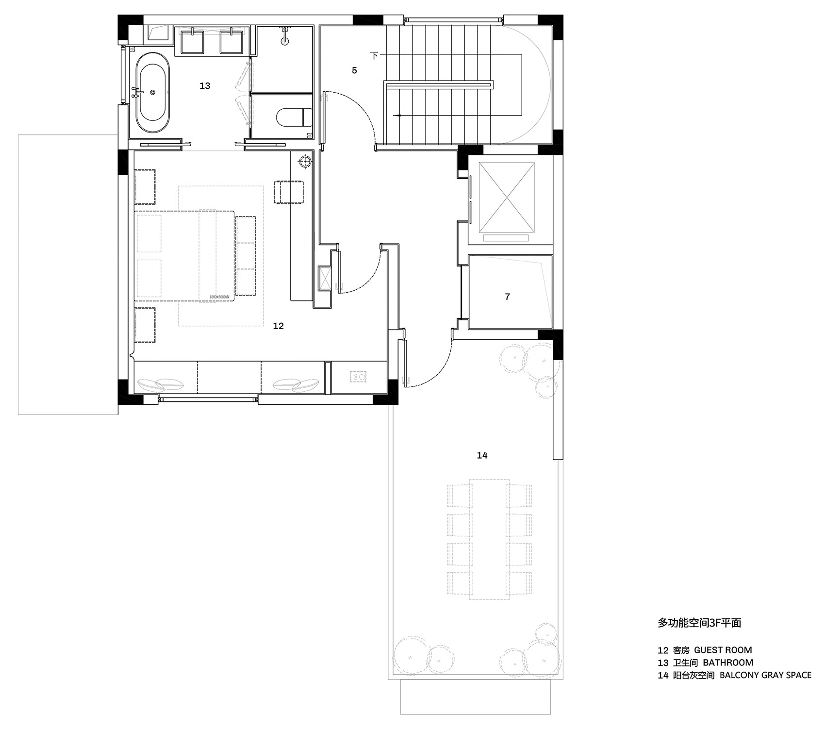
∇ 多功能房三層平麵圖
項目信息
項目名稱|綠城桃源拾光共享農莊
項目麵積|600m²
設計單位|MDO木君建築設計
設計範圍|室內設計、軟裝設計
設計總監|Justin Bridgland、徐伩君
主創設計|高達、董萌萌
完成時間|2022年7月
空間攝影|偏方影像






































