超級有米建築事務所為冥想品牌FLOW設計了首個線下空間,圍繞“靈魂棲居所”(Receptacle for the soul)的概念,在城市中打造一片靜謐的心靈場域。
Super Rice Architects has designed a flagship store for meditation brand FLOW – a leading meditation brand online, with the concept of “Receptacle for the soul,” creating a tranquil spiritual space in Shanghai. It is also their first offline space.
整體空間運用大地色調及質樸光影,營造出安穩平靜的氛圍,與城市中的白熾光形成鮮明對比。大量的曲麵形體為空間提供一種圓潤的包裹感。
The overall space is covered in an earthy tone with shimmering light and shadow. It contrasts the white spectrum light of urban life to create a calm and peaceful atmosphere. Curved forms are widely used to provide a mellow sense of being wrapped and surrounded.
超級有米從FLOW一詞切入,解構出兩個基礎元素 – 1: 張力 2: 方向。動態成為主導設計的主旋律,空間感受如音樂般呈現,營造出一直延續卻不停起伏變化的體驗。以 FLOW 為名,借助空間設計,來體現生命內在的能量和到達flow“心流”的狀態。
Super Rice Architects started with the word FLOW, breaking down into two essential elements – 1: tension and 2: direction. In the name of FLOW, the architects hope to exemplify the inner energy of life and echo the state of “flow” (the optimal experience in psychological terms). Dynamic flow is created like music throughout the space as the critical feature of the design; it creates a continuous but ever-changing experience.
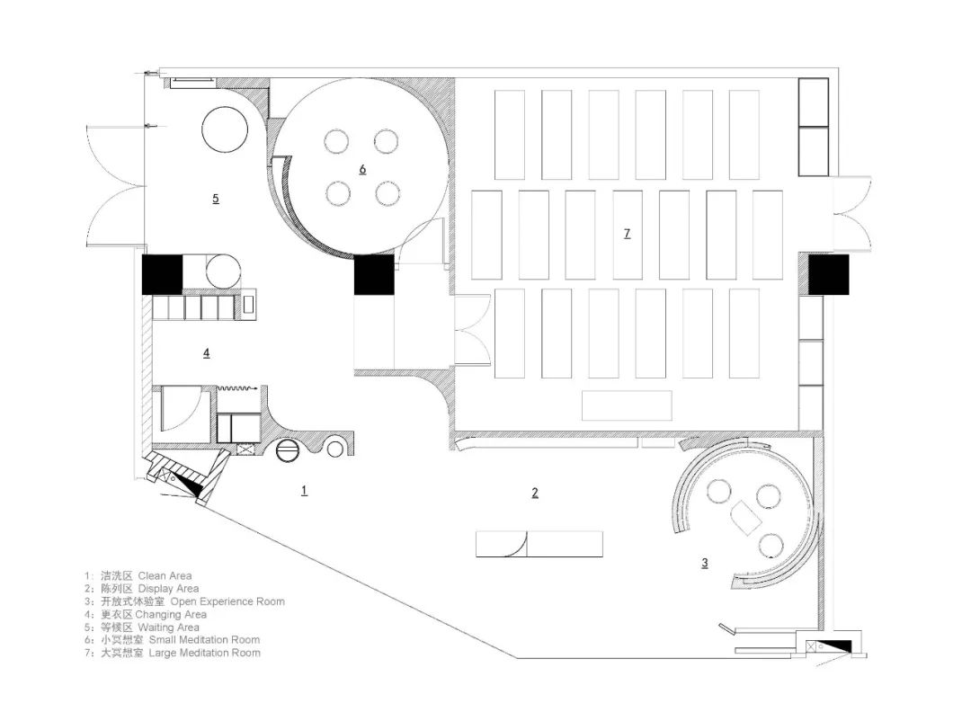
空間被劃分為前場與後場。前場為展示區域,承擔著零售、陳列及服務講解的功能。而後場為練習區域,涵蓋著練習空間、更衣室及等候的區域。
Programmatically, the space is divided into front and back areas. The practice and service area mainly occupies the back, which includes the practice rooms, dressing room, and waiting area. The front lobby accommodates a retail, display, and pre-sale service area.
前場以一種完全開放的方式融入周邊環境中,去掉所有的動線及視線阻礙,向所有人表達出一種歡迎的姿態。
There is a seamless integration with the front area and surrounding environment, without any sight obstructions, showing the public that this place welcomes everyone.
此外,前場主要承載零售空間的功能,但超級有米與FLOW品牌懷揣同樣的願景,希望擺脫傳統零售的陳列方式,轉而尋找一種更似畫廊的展示形式。
In addition, the front area also carries the retail function. Still, Super Rice Architects and the owner both aspired to challenge the conventions of retail display and develop a more gallery-like display space for the brand’s products.
超級有米通過“挖”的技法,將展示部件從牆體中“雕鑿”而出,營造出專屬的三維展示空間。超級有米摒棄了傳統的裝飾薄板陳列方式,構築出更具有雕塑感的展示部件,讓人聯想到在畫廊裏欣賞作品的感受,以這樣的展示手法,烘托物品的價值感。
The displays were carved out from the wall and created their own three-dimensional display space. Super Rice Architects has challenged the traditional shelving display and constructed sculptural forms reminiscent of works commonly found in galleries, which implies the preciousness of the objects on display and deserves to be placed with respect.
彎曲的廊道,作為通往練習區的動線引導,通過錯位的開口既規避了前後兩區視線及活動的幹擾,還能保持功能和性格上的獨立。
The curved corridor leading to the practice area through a misaligned opening has not only avoided the interference of sight and activity in front and back areas but also gained programmatic and characteristic independence from each other.
後場的公共區域,動線以兩段的圓弧相連接,引導人們流暢地進入內部。正對次入口區域的擺動開口,可窺視到空間內部活動,激發好奇的同事,暗藏著“向內看”的隱喻。牆體中間的區域在不同的“作用力”下,演繹出不同圓弧的擺動,在燈光加持下更增強了這種張力所製造出的趣味性。
In the public space of the back area, the circulation is formed by two circular curves, guide people to go deeper naturally. The midsection of the wall, under a dynamic field of forces, forms into different radius curving walls; with the help of lights, giving the space material simplicity but formal complexity. The opening in front of the secondary entrance allows people to glimpse the activities within the small meditation room, stimulating curiosity and indicating the metaphor of “looking inward,” which is the brand’s motto.
多弧段的鏈接與擺動的塑形手法,被交叉運用於此區域。讓一堵普通的隔斷牆,成為了擁有不同層次、深度、和功能交織的靈動雕塑體。
An interlocking curving form-shaping technique was introduced to this space; this gesture allows an ordinary partition wall to become a monolithic piece with changing layers, depth, and programs embedded.
FLOW 首店,超級有米針對空間的使用人數規模,設計了三個冥想空間:
1.小冥想室 (2-3⼈)
2.大冥想室 (30-40⼈)
3.開放式體驗室 (1-2⼈)
For the first store of FLOW, Super Rice Architects designed three meditation
spaces of various sizes:
1.Small meditation room (2-3 people)
2.Large Meditation Room (30-40 people)
3.Open Experience Room (1-2 persons)
∇ 小冥想室
1: 小冥想室采用了圓型的平麵布局,在環形空間裏,沒有正反前後之分,因此能讓練習者與導師處於一種更平等的關係中。圓形空間天然的向心力,能讓練習者感受到純粹的聚攏感,和溫柔的包裹感,使練習者獲得安穩的力量。
圓形幾何體不僅擁有向心力,在邊緣處還呈現出離心力。超級有米通過前文提及的塑形手法,讓四個圍繞的角落成為了入口、陳列、窗洞、燈光等功能空間。不僅解決了圓形平麵的空間浪費問題,還使分離的角落串聯成一個流暢的整體。圓形的環繞賦予空間持續流動的感受,同時營造出統一的韻律感。
1: Small Meditation Room
The space adopts a circular configuration. In a circular plan, there is no front and back; therefore, the practitioner and the coach can be in an equal state. In addition, the natural centripetal force of the circular space can deliver a sense of gathering & surrounding to practitioners, which allows them to obtain the power of stability.
The circular form has centripetal toward the center and centrifugal forces at the edge. Architects use the form-making the technique described above to make the four corners functional. As an entrance, display, window, and lighting not only solve the problem of wasted spaces in the circular plan but also connect the separated corners into a coherent whole. Within a circular configuration, one can feel the constant flow of energy. It creates a sense of rhythm.
∇ 大冥想室
2: 大冥想的空間中,超級有米借鑒了強調內在精神力量的教堂空間為原型。傳統教堂裏的“傘拱”形體作為建築元素統領了整個空間。同樣利用圓形兼具向心力與離心力的兩種特性,來調節“傘拱”的整體體量。通過旋轉、穿插、拚接所創造出的形體,拱頂呈現出既延續又不停變化的形態。
利用“不同光源的交彙”作為創作理念,厚重的拱頂被不同弧段所切割,獲得了體量上的錯動,從而得到不同大小的光源孔洞。戲劇性的光源與黑暗交替,不僅激發精神的升騰,同時也帶來了內心的安寧。
2: Large Meditation Room
Drawing inspiration from the typology of the church architecture, a place for spiritual enrichment. The recognizable architectural component: the vault, was introduced as a central figure to govern the space. The vault illustrates a continuity and dialogue of tectonic through rotation, interspersion, and craving. The roof massing is sculptured by circular geometry’s natural strengths and centripetal and centrifugal forces.
The metaphor of light is presented as the divine spirit serving as the guiding concept. The undulating vault is penetrated by varying spatial and lighting apertures that create a series of dramatic light scenes, scenes with solid/void, and light/dark. The intersection of light and darkness inspires the occupants’ spiritual uplift and brings them inner peace.
3: 開放式體驗室位於前廳的圓柱體中,簡約的立方體是前廳的展示空間,“圓”與“方”的視覺對比,為開放式體驗室賦予了更多的內涵。延續著空間的動態感,開放式體驗空間挑戰的是:在穩定的幾何形體中尋找動態的平衡。
開放體驗室的圓柱體外部像漣漪⼀樣蕩開,這些圓以不同的半徑分布在不同的⾼度,不同的圓環重疊交織,原本穩定的中心對稱空間因此獲得⼀種流動的豐富及複雜性。圓柱的內部上方,同時具有向心力,離心力,抬升力的圓錐體被引薦到空間中。向上的整體感及動態的旋轉表現著⼀股聚攏的張力和律感。 圓柱的空間內提供一種圓潤的包裹感,亦如洞穴般靜謐無紛擾,同時助使聲波均勻傳播,這一切的構造均為練習者達到內心的平靜、覺知,為“向內看”服務。
3.Open Experience Room
A cylinder volume was carefully picked by the architects to place the program within. The circle has always been understood as a divine symbol, in contrast to the worldly rectangle. The challenge for this room is creating a dynamic movement with a sturdy geometry to maintain that fluidity sense of the space.
The ripple profile lines redefined the stable and symmetric cylinder form, these circles are distributed at different heights with different radii, and various circles overlap and interleave, creating a vibrancy structure with richness and complexity. A cone with centripetal, centrifugal, and uplifting natural forces were integrated into the cylinder interior. A sense of solidarity and tension is formed by manipulating the intricacy of cone geometry. The cylinder’s interior mimics a stone cave, offering a sense of being surrounded and serenity. The curvature wall is designed explicitly for fine acoustics. All these manipulations are for the practitioner to achieve inner peace, awareness, and “looking inward.”
∇ 開放式體驗室
∇ 平麵圖
項目信息
項目名稱:FLOW心流所
Project name: Flow Space
委托⽅:FLOW冥想
Project Client: FLOW冥想
項目地點:中國-上海-蘇河灣萬象天地
Project Location: China Shanghai MixC World
建築麵積:200平方米
Construction Scale:200 m2
設計機構:超級有米建築事務所
Design Company: Super Rice Architects
建成時間:2022.10
Completion date: 2022.10
設計範圍:室內設計 & 陳列
Design scope: Interior design & Display
主創設計:林凱銘,閆琮漩
Creative Design: Hoiming Lam, Anya C.X. Yan
項目團隊:於小川,張宗文,於浩,吳文芳,張帥強
Project Team: Ryan Yu, Zongwen Zhang, Hugh Yu,Candice Wu,Mike Zhang
施工團隊:愛思嘉林工程建設
Construction Team: Ace Engineering&Construction
燈光顧問:深圳市林墅設計有限公司
Lighting Consultant: Shenzhen Linshu Design Co., LTD
道具製作:雲浮市一創石材有限公司/一格石材軟裝
Props production: Yunfu Yichuang Stone Co., LTD. / Yige Stone
攝影:朱迪 @ AGENT PAY + WM STUDIO
Photography: Zhu Di@AGENT PAY +WM STUDIO
材料:赭石色藝術塗料、微水泥、意大利銀灰洞石、砂岩、防火地板
Materials: Ochre paint, Microcement, Italian silver gray travertine stone, Sandstone, Fireproof wood floor



































