關於Meet 11 About Meet 11
Meet11花漾餐廳位於江蘇省常州市青果巷二期,Meet 是遇見,表達時間,11是十一種風味菜品的可能性嚐試。
The Meet11 Huayang Restaurant is located in Phase II of Qingguo Lane, Changzhou City, Jiangsu Province. Meet 11 is a place to eat, meet friends, and pass the time in a refined, contemporary interior.
∇ 軸側分析 ©Linkchance Architects
場力 Design Principles
一、對話力:場地西側僅隔三米是一座兩層獨棟建築,室內是用來經營傳統常州融合私房菜,主理人是Meet 11餐廳主理人的長輩。一巷兩店,一中一西、年青一代與年長一代 、室內空間風格及理念不同,形成一種無形的對話力。
1.An Architectural Dialogue:Only three meters away from the west side of the site is a two-storey detached building, the interior of which is a traditional Changzhou private dining space, and is managed by the elders of the owner of Meet 11 restaurant. The two restaurants, one Chinese and one Western, coexist in one lane, bringing old and young generations – with their contrasting styles and concepts of interior space, an unspoken aesthetic dialogue takes place between them.
二,秩序力:場地雖然柱子多,但整體空間方正規整,有潛力被整合、梳理成具有秩序感的結構空間。整體空間概念是由Arabesque演化而來,不管是阿拉伯圖案的無限之美、芭蕾舞舞姿的柔美、還是音樂裏Arabesque美妙旋律,它們的美都來自”秩序”,是秩序感在不同時間和空間中經過精心編而排形成的特定韻律平衡之美。Meet 11主要針對常州本地年輕、獨立的現代女性,柔美的力量、溫和、曲線這些語彙與Arabesque美的內核是一致的,我們在此空間設計上努力追尋Arabesque這種秩序與平衡,讓人在這樣的氛圍空間中體驗“韻律”之美。
2.Spatial Order:Although the project’s interior has many structural columns, their overall layout is regular and neat, and there is the potential to integrate them into a space with a unique sense of order. The overall design concept of the interior takes its inspiration from traditional Arab culture, whether it is the infinite beauty of Arabesque architectural patterns and decoration, the delicacy of Middle Eastern dance, or the refined melodies of the Arab world’s music. Their timeless aesthetic beauty is derived from a balance between flowing rhythms and a refined sense of order. Meet 11’s intended clientele are young and independent modern women in Changzhou, and the interior’s conceptual cues of subtle strength and gentle curves are consistent with the core principles of Arabesque beauty – imbuing a sense of its order, balance, and beauty to everyone who comes here.
挑戰 Challenges
如何化解場地柱子過多的問題,如何解決現場自然光線不足的問題;技術上如何實現實現“蛋殼”小屋 (包間)“輕”的現代性;如何營造出可以凸顯Meet11的辨識度的氛圍空間。
The space presented multiple issues for the designers: how to deal with numerous existing columns, an insufficient amount of natural light on the site, and the technical question of how to realize the thin, eggshell-style surfaces surrounding the restaurant’s booths; all required creative solutions to shape the unique atmosphere of Meet11.
力場 Atmosphere
Meet 11主體空間圍繞Arabesque展開,其中最大的特點是“Arabesque拱形”,我們將Arabesque拱形進行模塊化設計,整個空間的結構由這些拱形搭建而成,從而形成表達張力。這種模塊化的結構方式能大大減少施工出錯率,也能提高施工效率。
The main space of Meet 11 unfolds around a Middle Eastern aesthetic, with the principal feature being the Arabesque arch employed in a modular design, which allows for greater ease and efficiency of construction, and provides a strong visual structure and tension.
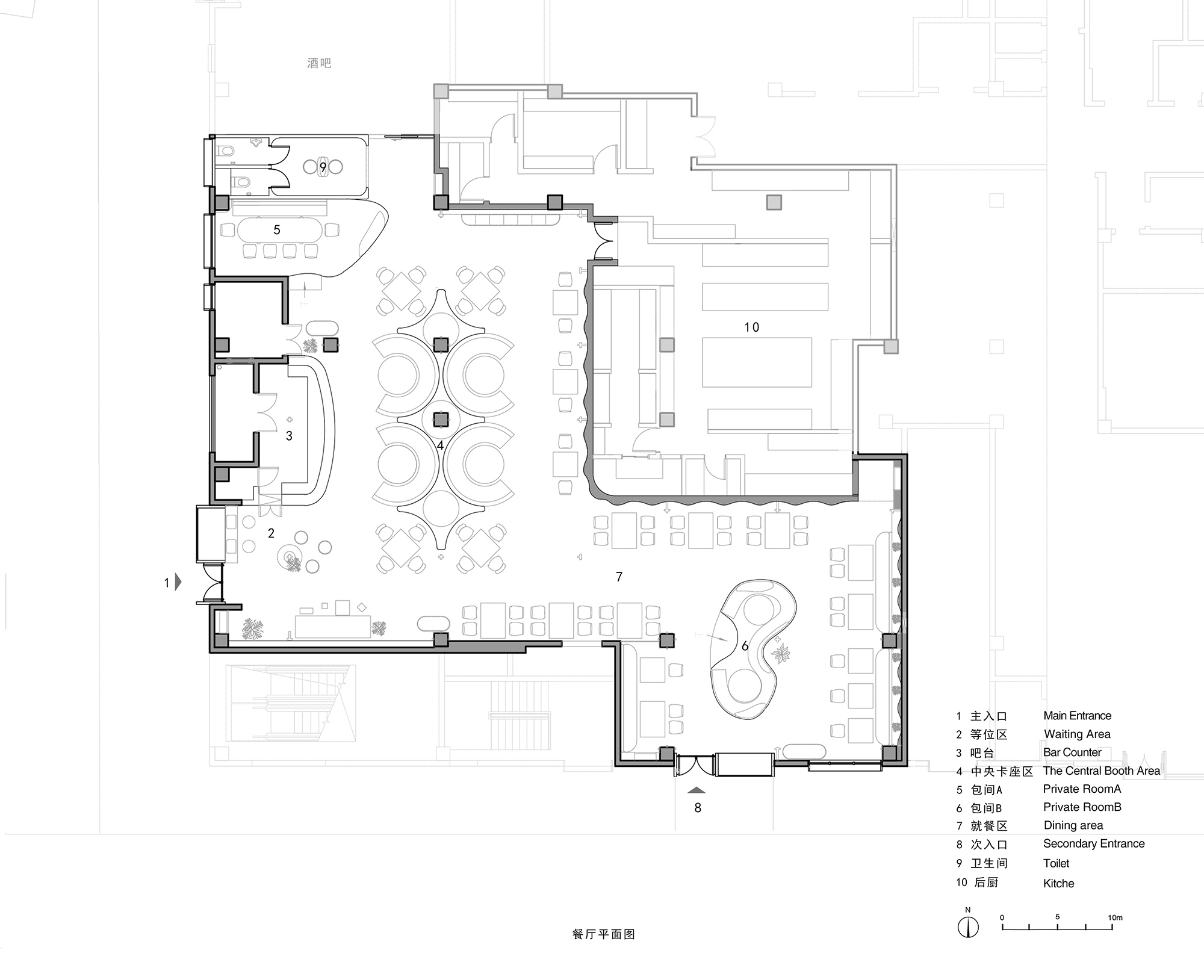
主入口一進門左側設置整場的酒水吧台,吧台所處位置使得工作人員可以最大化角度服務到全場,吧台最大的特點是其上方的導光板層架,層架是由1.5cm厚度的導光板貼擴散膜構成,打開燈光整個層架有強烈的漂浮感;吧台對麵區域設置了是四個3/4圓形卡座,卡座與卡座之間設置熱帶綠植營造休閑度假氛圍;在整個空間裏我們嵌入了兩處“蛋殼”半開放空間,我們在造型上開了幾處洞口,這樣蛋殼室內外在視線上可以互通、流動的,有私密性又與整場有很強的互動。蛋殼工藝上我們此次做了極大挑戰,厚度隻有1cm,構造很薄但強度和韌性極高,挑戰了從來沒有過的薄度,兩個造型與空間結構並置但不顯得突兀反而各自形成不同的氛圍和“場感“。
The main entrance is positioned on the left side of the bar, allowing the bar staff to face and serve all customers in the space. The most prominent feature of the bar is the custom-designed light fixture composed of a series of illuminated 1.5cm thick oval-shaped ‘shelves’, which seems to float overhead.Four circular booths are located opposite the bar, with clusters of tropical plants placed between them to create a relaxing, convivial atmosphere.The designers have also created two spaces semi-enclosed by coverings reminiscent of eggshell – several openings allow their inner space to flow into the rest of the restaurant, providing a strong visual connection with the main space while also allowing customers seated there a feeling of privacy.The designers faced a challenge in implementing these eggshell-inspired enclosures, as they are a mere 1cm thick but ultimately have more than ample structural strength to serve their purpose. Their overall shapes are in some ways a contrast to the remainder of the space, yet they adhere to a similar aesthetic and provide a different nuance to the atmosphere of the restaurant.
牆體立麵我們沒有做過多的修飾,僅在局部兩麵牆做了Arabesque小比例造型,距離牆麵8cm,背後我們設置了弱弱發光的光纖,表達存在,讓牆麵具有“呼吸”感;地麵我們用了強度高、耐油汙的裝飾混凝土材料,實現與空間協調的配色。為整體空間增添氛圍,頂部造型結構”中空“的區域我們做了13組雙曲亞克力吊燈,當人在空間走動的時候,可以看到吊燈造型一直處於動態變化中。
The interior walls are simply and elegantly decorated with light, provided indirectly by strips of LED hidden behind arch and oval-shaped openings in thin partitions built 8cm away from the main walls. For the floors, high-strength decorative concrete has been used to achieve a color palette and pattern which seamlessly matches the other elements of the space. Custom-made chandeliers of translucent acrylic provide pleasantly focused light throughout the restaurant, and present sculptural qualities which seem to shift and change as visitors walk through the interior.
結合常州本地氣候,整體空間綠植采用類熱帶綠植搭配,營造出自然、陽光、休閑的愜意氛圍。
In accord with the local climate of Changzhou, the space is decorated with tropical green plants to create a natural atmosphere of lightness and leisure.
結語 Conclusion
時光流動,歲月更迭,由Arabesque元素構造的Meet11 “韻律”空間,形成了秩序、流動、力、時間、自然、柔美的”場“,在這裏人們可以與Meet 11相遇,與十一種人生美味相遇。
The Meet 11 Restaurant is an interior design inspired by and composed of timeless Arabesque elements, brought together to create an experience of order and flow, strength of form, and recollections of time, nature, and beauty. It is a place where people can meet, feel at ease, and enjoy the “11 delicacies” of life.
∇ 平麵圖 ©Linkchance Architects
項目信息
項目名稱:Meet 11 花漾餐廳
項目地址:江蘇,常州
項目業主:常州大城小愛餐飲公司
建造時間:2022年5月-2022年10月
室內麵積:450平方米
設計單位:力場(北京)建築設計 Linkchance Architects
設計團隊:安兆學、閆新秀、魏澤同、常夢雅、李嘉琦、杜芳芳
照明谘詢:Owen
建造材料:磐多磨、裝飾混凝土、微水泥、穿孔鋁板、導光板、柚木、鏡麵不鏽鋼板等
項目攝影:金偉琦、Linkchance Architects
視頻製作:視源品牌
工程施工:杭州唐耀裝飾工程有限公司/成昌弘致建材(北京)有限責任公司/ PanDOMO Studio (北京) / 江蘇常州恒豐偉業玻璃鋼有限公司
設計撰文:Linkchance Architects
Project name: M11 Huayang Restaurant
Project location: Qing Guo Xiang, Changzhou, China
Project owner: Changzhou Dacheng Xiaoai Catering Management Co., Ltd
Project period: July 2022-October 2022
Project area: 450 m2
Design firm: Linkchance Architects
Chief designer: An Zhaoxue
Design team: Yan Xinxiu, Wei Zetong, Chang Mengya, Li Jiaqi, Du Fangfang
Lighting consulting: Owen
Materials: PanDOMO, micro cement, perforated aluminum plate, light guide plate, teak, mirror stainless steel plate, etc
Construction team: Hangzhou Tangyao Decoration Engineering Co., Ltd/ Chengchang Hongzhi Building Materials (Beijing) Co., Ltd. PanDOMO Studio(Beijing)/Jiangsu Changzhou Hengfeng Weiye FRP Co., Ltd
Design copywriting: Linkchance Architects
Photography: Jin Weiqi, Linkchance Architects
Video: Souvisua





























