Tetra 別墅克服了相當不平坦的地形,落在了幹預區的最高層,建築以外的地塊被劃分為花園,為居民創造親自然的體驗,並讓建築在這些間隔中呼吸。這些體積的設計旨在保護隱私,而不必使其在形式上不透明,而是將其引向主要景觀,並利用浮動盒子中槽縫之間的景觀美化,創造更多的場景過濾了最終會暴露的部分。
通過劃分上棱柱,在結構上項目中將形成一片柱子森林,從同一點開始反轉為四根柱子,將這根柱轉化為上部體塊的懸架,同時也提升了房屋的結構到一個內在的雕塑元素。
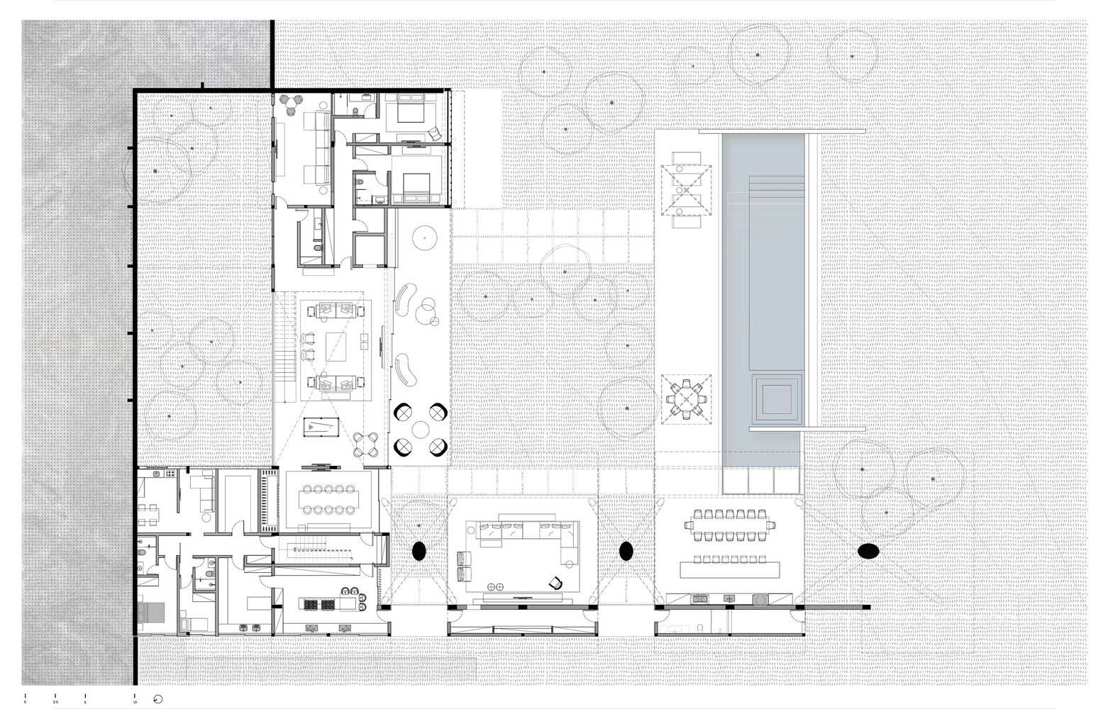
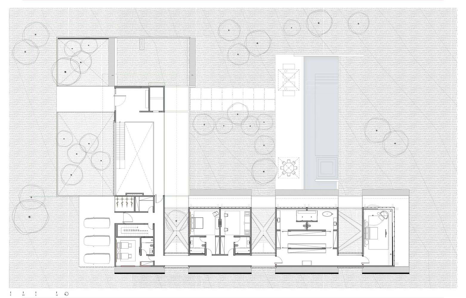
∇ 平麵圖
∇ 彩色剖麵圖
∇ 結構細節圖
∇ 效果圖
∇ 模型
版權聲明:本站所有文章除投稿授權發布外,其他文字內容均為原創,享有著作權保護,未經許可不得以任何形式進行轉載(包括且不限於:媒體、網站、公眾號等)。所有項目照片/設計圖形版權歸原作者所有。本站部分內容源自網絡公開資源或用戶分享,如若侵犯了原作者的合法權益,可聯係我們進行處理。






































