中國 / 重慶 / 餐吧 # FX.D發喜空間設計 #
武鳥日式餐吧位於曾經一度無人問津到幾乎喪失社區服務能力的老舊街區,現今依托渝北區商業體係建設首批項目示範創建點,打造成了一條高品質兼具時尚氣息的街道,聚集了眾多高品質、多業態、風格化的網紅店。
本案的設計理念絕對不是單純元素的堆砌拚接,而是圍繞著一個故事去產生空間。根據現場的物業條件,店麵的空間本身的開間不是很大,但是深度優勢很明顯,同時空高也極具有優勢。
一樓作為堂食區,通過較暖的色調和刻意拉近的距離,營造出日本傳統燒鳥熱鬧隨意的氣氛。坐在吧台邊,可以看見在烤架上翻轉的燒鳥,又或者聽見油鍋裏炸天婦羅的滋滋作響。
具體的景色被抽象化,提取成為色相,一樓牆上的色塊由麥稈添加一份自然空間,粘在基層板上的顏色從三原色中提取朱紅色來搭配,既協調又給人眼前一亮。
頂麵的材料采用木絲吸音板,以基地材料外露的方式來綜合空間的硬朗感,整個空間也與牆麵灰色質感漆產生呼應和諧,材質感的突出也增加了空間的溫馨。木材也直接采用鬆木基礎板材,展現木質的紋路,呼應了一種輕鬆的田野氛圍。
家庭的小聚角落鋪上同色係的地毯,布的質地和較深明度的配合協調又舒適,推開窗子看向外麵街道的綠意和風景,整個關上時又增添一份私密。
在保留「和紙燈籠」作為傳統元素的同時,融合現代主義的特點,加上不鏽鋼吊件作為照明,增加現代感的同時提升居酒屋的氛圍。
三樓的包房以日式榻榻米作為參考,將層高設計得厚重一些,把空間壓下來,拉近人的距離也增加了空間的私密感,同時窗戶的設計和光照的條件又使空間完全不會感到壓抑。
充分利用了場地物業空高的優勢,將二樓的空間再做分割,可以推開百葉窗往下看窗外的景色,也可以閉上窗戶品味親友相聚時光。
一個空間的設計是一種氛圍的構造和呈現,空間並不隻是設計用來看到的,靈感的考量和元素的使用最終都是為了更好的投入使用,「武鳥」居酒屋這個項目也是如此。
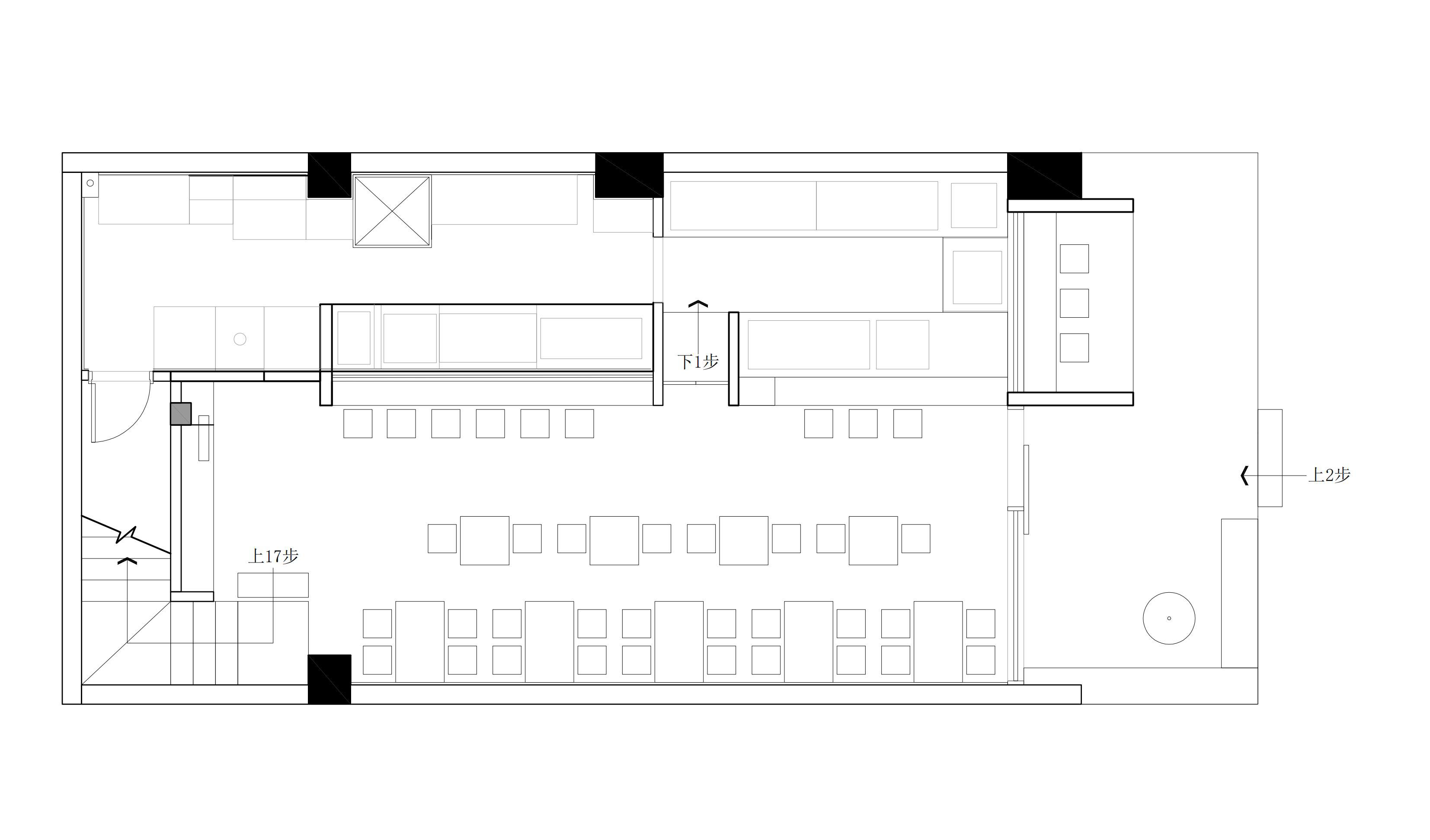
▽一層平麵圖
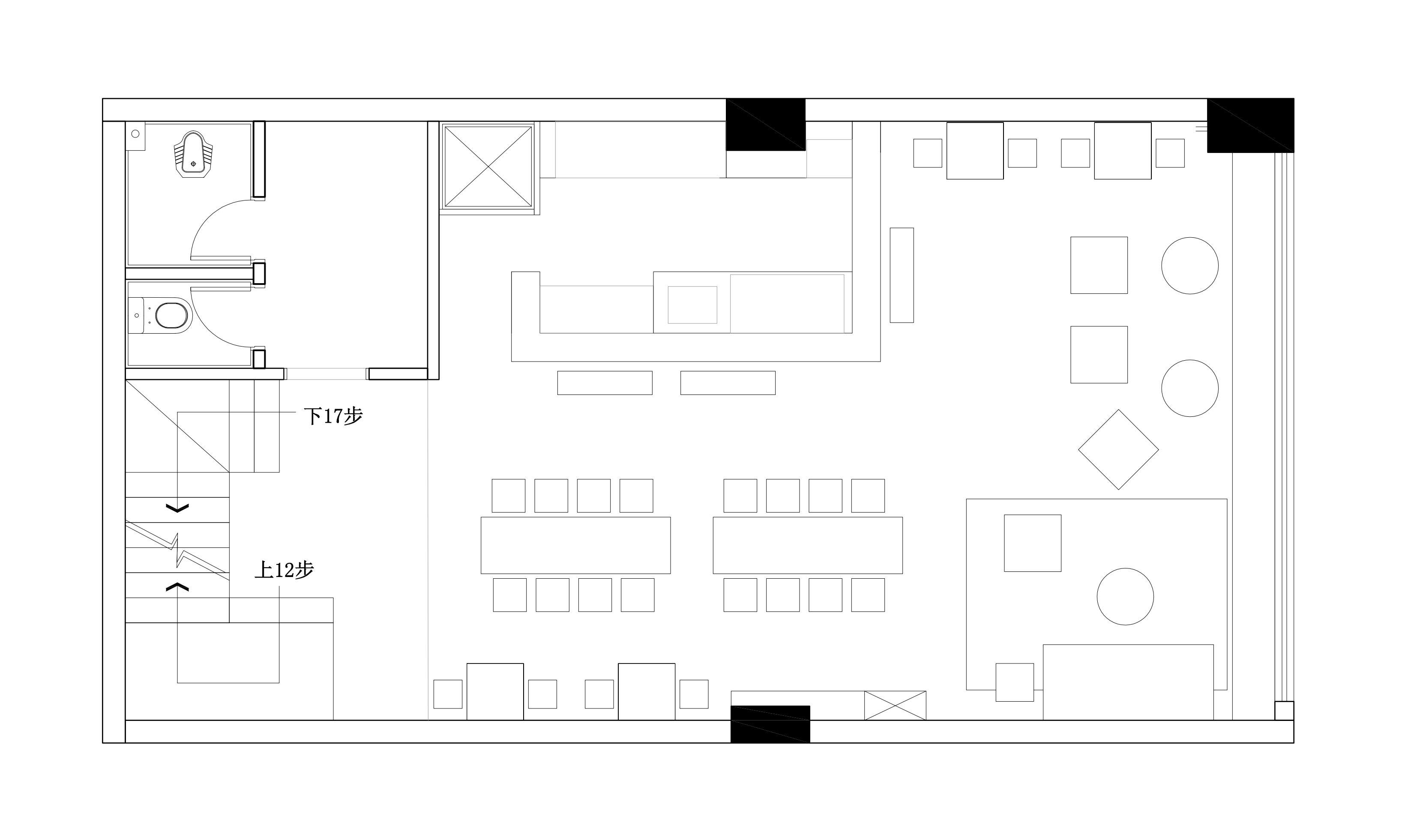
▽二層平麵圖
項目信息
項目名稱:武鳥日式餐吧
設計方:FX.D發喜空間設計
項目設計&完成年份:2022年
主案設計師:黃浩雲
主任設計師:key楊科
設計團隊:FXD空間設計師
項目地址:重慶市渝北區紫薇路
建築麵積:210m²
攝影版權:楊帆
合作方:武鳥日式餐吧
客戶:高俊
施工單位:展業裝飾工程
裝修主材:鬆木多層板、生鐵板、木絲吸音板、鬆木地板、橡木、麥稈、粗麻布、質感塗料
































