由建築師Vitaly Savko領導的Bureau SVAI Studio為 Devxed IT 公司在明斯克一座多層住宅樓的第一層行政樓層設計了一間辦公室。客戶為團隊設定了任務,為 25 名員工創造一個舒適高效的工作空間。
寬敞的 220㎡被隔板分割,天花板上覆蓋著石膏板,在石膏板下麵隱藏著一個有問題的通風係統。“首先,我們擺脫了封閉的辦公室和狹窄的走廊。吊頂被完全拆除,並決定保持通訊暢通,”Vitaliy 說。
“因此,我們為不同部門的員工形成了三個工作區。董事辦公室和會議室通過智能玻璃隔音隔斷與一般空間隔開,按下遙控按鈕時變得不透明。對我們來說,重要的是創造一個室內環境,不僅是為了高效的工作,也是為了在下班後舒適地休息。另一個玻璃隔斷後麵是帶早餐吧台和餐桌的廚房,還有一個遊樂區。”
“開放式溝通在很大程度上決定了室內風格,並增添了一絲工業主義氣息。為了保持場地裝飾的氣氛,我們使用了模仿混凝土和生鏽金屬質地的材料。甚至牆壁的粉刷也是在沒有表麵處理的情況下完成的——在粗糙的水泥灰泥上。會議室中的裝飾性石膏和浴室中帶有生鏽金屬質感的 Revigres 瓷磚延續了整體概念。”
“尺寸驚人的通風管無法在室內保持隱形,因此我們決定將它們作為設計元素,並通過將它們塗成鮮豔的顏色來吸引人們的注意。通風裝置能夠全天候為辦公空間的所有區域提供給定溫度的新鮮空氣。”
“調色板主要基於品牌的企業顏色。為了給室內帶來更大的對比和表現力,引入了一種強調赤陶色的色調。由於房間的幾何形狀相當不標準,幾乎所有家具都是定製的。廚房用具、內置衣櫃、櫥櫃、沙發、桌子、鏡子——一切都在 SVAI Studio 中設計,並為項目單獨製作。”
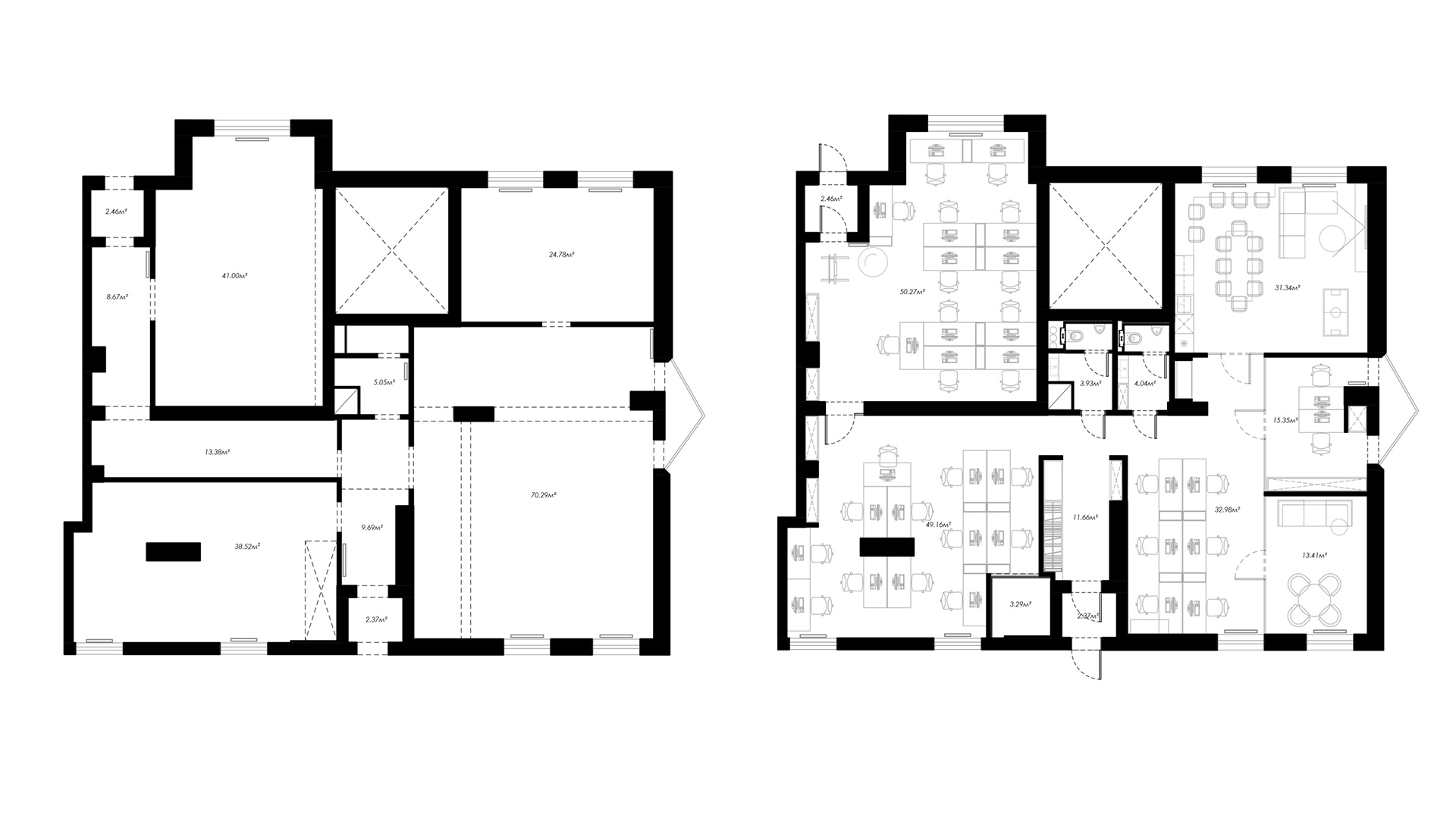
∇ 平麵圖
































