由 Rabih Geha Architects 為 Gastronomica 設計的 MILK BUN Qatar 是一種援引傳統的大膽方式,標誌著該公司推出其熱門的、以科技為導向的 Fast Casual 概念的第三個前哨站。
三大支柱支撐著 MILK BUN 品牌,並幫助其實現其提供優質快餐的承諾:其招牌定製鹹味和甜味食品的吸引人且易於使用的菜單,以快速通道為中心的無縫用戶體驗;以及吸引年輕一代的有趣外觀。
屢獲殊榮的建築和設計工作室帶來顛覆櫃台服務場景的前衛體驗。Rabih Geha Architects 在設計這家連鎖餐廳的多哈分店時沒有遵循任何特定的製度。他們賦予每個元素同等的權重,以呼應 Gastronomica 的全麵用餐體驗,這是 MILK BUN 的所有者和經營者創造的原則。
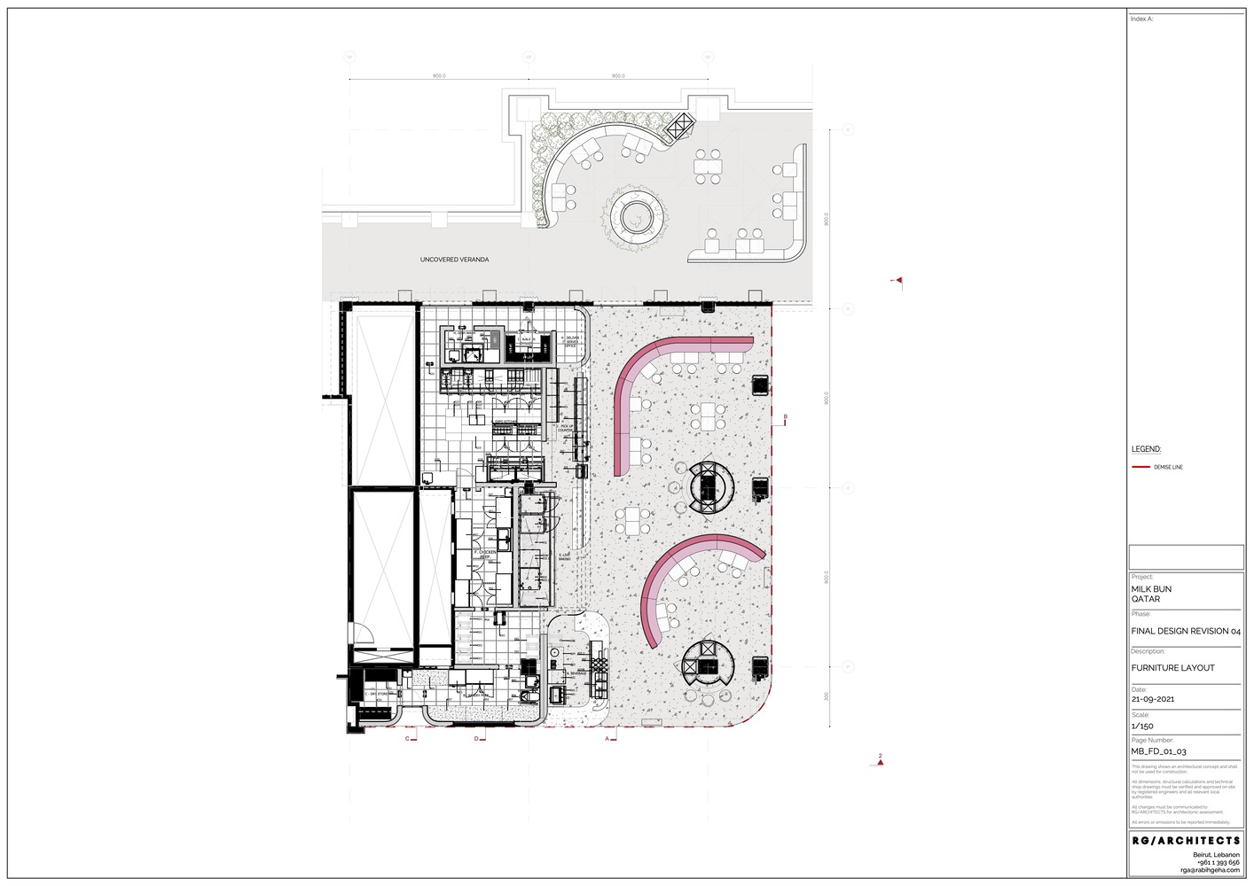
MILK BUN Qatar 位於多哈的旺多姆廣場購物中心,餐廳擁有一個 376 ㎡的室內用餐區和一個 160 ㎡的露台,可通過餐廳進入或從側門獨立進入。通過一個巨大的立麵展示,粉紅色的水泥牆和天花板融入混凝土地板。麵包店通過全息窗口清晰可見,突出了全天準備的品牌標誌性新鮮出爐的麵包和餅幹。
∇ 平麵圖
版權聲明:本站所有文章除投稿授權發布外,其他文字內容均為原創,享有著作權保護,未經許可不得以任何形式進行轉載(包括且不限於:媒體、網站、公眾號等)。所有項目照片/設計圖形版權歸原作者所有。本站部分內容源自網絡公開資源或用戶分享,如若侵犯了原作者的合法權益,可聯係我們進行處理。

























