MOWA是一家韓餐風格的葡萄酒餐廳,2000瓶葡萄酒神秘地排列在走廊上。作為一家葡萄酒餐廳,顧客可以將葡萄酒與韓國料理搭配。就像玻璃中的空白空間有其用途一樣,邊距可能意味著清空,有時也可能意味著填充。設計師從韓國繪畫中“邊緣”的角度來接近這個空間。通過MOWa對韓國邊緣美學的詮釋,放空、填充和享受的記憶循環流動。
MOWA 是 Memories of Wine 和 Alpha 的縮寫,希望很多人能夠愉快地記住在這裏的時光。MOWA中的a代表源自葡萄酒的整體,設計師力求通過葡萄酒的媒介引入各種美食體驗。從“邊緣的發現”開始,所有在“空”與“滿”之間停留和移動的感覺和體驗將彙聚在一起,讓 MOWA 充滿珍貴的時刻。
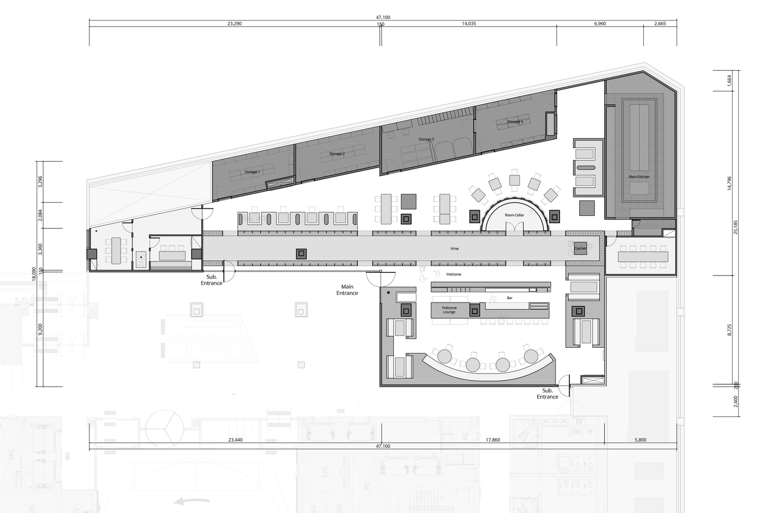
∇ 平麵圖
版權聲明:本站所有文章除投稿授權發布外,其他文字內容均為原創,享有著作權保護,未經許可不得以任何形式進行轉載(包括且不限於:媒體、網站、公眾號等)。所有項目照片/設計圖形版權歸原作者所有。本站部分內容源自網絡公開資源或用戶分享,如若侵犯了原作者的合法權益,可聯係我們進行處理。





























