重新定義城市中心辦公室
這是一個將一個擁有四十年曆史的私營企業大樓改造成為一個未來實驗場所的翻新項目,人們可以在這裏創造性地工作和生活,主要理念是“工作和生活中心”。該項目將企業活動開放給城市,並在涉及不同人群的環境中探索新的價值。我們設計了“未來城市辦公室原型”,提供一個對社區開放的可變公共空間,以及在分散工作的新時代中所必需的共情共鳴體驗。
混亂有序,與城市融為一體
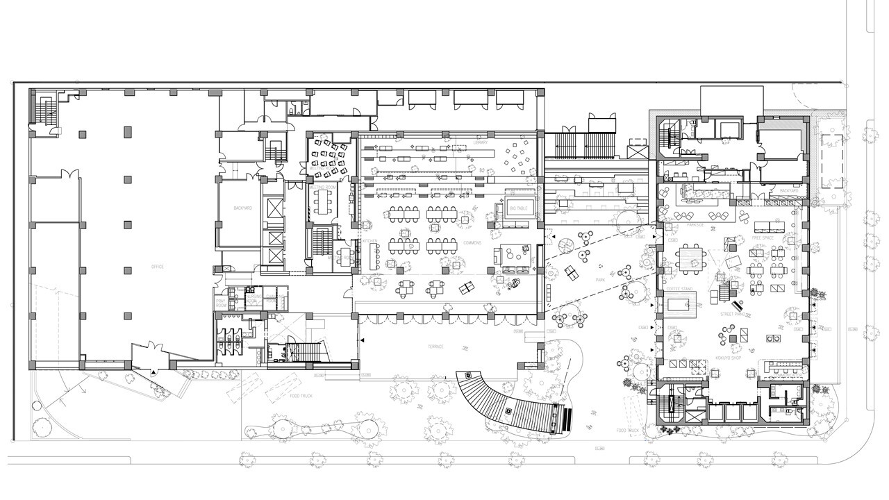
我們利用現有建築,通過“減法操作”創造了一個開放寬敞的空間。這個空間就像城市中的綠洲,讓人感受到大自然的微妙魅力,微風從建築開口吹過,樹木搖曳生姿。我們相信這樣一個半公共、半戶外的空間能夠激發人們的創造力,因此我們將大樓的低層設計成“與城市和諧共處的景觀”。在這裏,各種項目相互交融,每天都有不同的活動發生。在這種充滿靈感的混亂中漫步,實際上是任何城市都能提供的最奇妙的體驗之一,盡管在辦公區往往無法獲得這種體驗。
通過“創造性減法”打開現有建築
最初存在的三座建築中的中央建築被拆除,以創造一個開放的公園。由於場地位於街角,我們特意在建築牆體上開設了許多開口,為風和人們提供通道。我們的目標是將位於品川的場所從“以企業為導向的封閉式工作場所”轉變為“工作人員可以與社會聯係的開放式場所”。這是一個“不同人群聚集、各種活動和文化誕生於此的空間”。
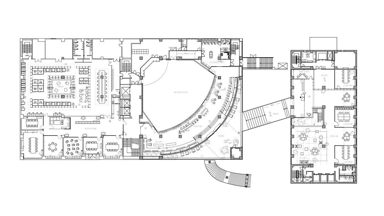
“綠色與階梯景觀”將城市與室內連接起來
在兩座老建築中插入了各種階梯和舞台,為人們創造了一個可以停留和放鬆的場所。弧形樓梯和小橋的有機設計與古老堅固的建築形成鮮明對比,成為這裏的標誌。遊客可以在連接內外的大樓梯上找到自己喜歡的位置。
歡迎多樣性和變化的容器
我們安裝了全性別廁所、哺乳室、祈禱室和更衣室,以營造一個人人都能彰顯個性的環境。一樓的固定裝置采用可移動、可堆疊的結構,便於在室外使用。我們的目標是使這個翻新空間成為多樣性和變革的容器,同時也為訪客和員工提供靈感,從而為品川地區創造多姿多彩、生機勃勃的景象做出貢獻。
∇ 平麵圖






























