“極簡不僅僅是簡單,它是對精益求精,並使複雜之物簡明扼要。 ”——約翰·梅達。
“Minimalism isn’t just about simplicity, it’s about refinement and making the complex simple.”—— John Maida.
∇ 跳動的藍色音符,Beating blue notes ©Little Xie
每個空間的輻射半徑是有限的,那如何在有限的空間中展現出主題的內容,我們需要找尋在空間的視覺中心,並且在視覺中心中衍生交互展示的概念拓展。這次我們收到的委托命題,基於企業需求,我們決定用藍色來闡述這個空間。用顏色來闡述企業的辨識度,以簡約的設計體塊去表達空間為企業展廳賦予全新的生命力。
The radiation radius of each space is limited, so how to display the theme content in a limited space, we need to find the visual center of the space, and derive the concept of interactive display in the visual center. Based on the commissioned proposition we received this time, based on the needs of the enterprise, we decided to use blue to illustrate this space. Use color to illustrate the identity of the company, and use simple design blocks to express the space, giving new vitality to the corporate exhibition hall.
∇ 一層空間概覽,First floor space overview ©Little Xie
PART01 跳動的藍色音符 Beating blue notes
在尊重原有建築的結構基礎上,如何處理入口處空間高差,賦予空間新的生命,成為一個急需要解決的問題。
在這一空間框架下,我們嚐試通過體塊的連接將視覺延展,空間在軸線上被無限放大。入口處的高挑空間與內部空間的深度相呼應,藍色線條如同活潑的音符,從入口躍起,流暢地穿梭在空間中,賦予空間靈動的氣息。
On the basis of respecting the structure of the original building, how to deal with the spatial height difference at the entrance and give the space new life has become an urgent problem that needs to be solved.
Under this spatial framework, we try to extend the vision through the connection of volumes, so that the space is infinitely enlarged on the axis. The high space at the entrance echoes the depth of the interior space. The blue lines are like lively notes, leaping from the entrance and flowing smoothly through the space, giving the space a lively atmosphere.
∇ 藍色線條在空間中不斷延伸,Blue lines continue to extend in space ©Little Xie
木色的柱體猶如休止符,作為空間的起始界定了視覺情緒的不同表達,並以此蜿蜒而出,流向內部的空間。
The wood-colored columns are like rests. As the beginning of the space, they define different expressions of visual emotions, and then wind out,Flow to the interior space.
∇ 人在空間的行走路線,People’s walking route in space ©Xuzhihui
∇ 從展廳回望樓梯,look back at the staircase from the exhibition hall ©Little Xie
∇ 首層展廳,Exhibition hall on the first floor ©Little Xie
利用體塊與顏色營造出空間的深邃延展,原先的綿長空間,經由藍色線條的穿梭與連接,得以完美融合。
材料的運用上,我們希望和色彩保持“克製”,但它也應該符合品牌與當下時代的特點,因此我們將用一些更具未來感、更質感的材料。
The use of volume and color creates a deep extension of the space. The original long space is perfectly integrated through the shuttle and connection of blue lines.
In the use of materials, we hope to maintain “restraint” in terms of color and color, but it should also be in line with the characteristics of the brand and the current era, so we will use some materials that are more futuristic and textured.
∇ 展陳+互動一體空間,Exhibition + rest integrated space ©Little Xie
互動區域布局中,體塊間不斷重組,使其在小範圍空間內盡量多的體現出其功能多樣化。
In the layout of the interactive area, the blocks are constantly reorganized to reflect as many functional diversities as possible in a small space.
∇ 輕巧的空間分割方式,Lightweight space division method ©Little Xie
開放而有趣的路徑設置,靈活的分割和銜接空間,增加空間節奏感,保持一定私密與通透,自然過渡銜接到不同區域。
Open and interesting path settings, flexible division and connection of spaces, increase the sense of spatial rhythm, maintain a certain degree of privacy and transparency, and naturally transition to different areas.
∇ 展廳內設置座位區,Seating area in the exhibition hall ©Little Xie
∇ 懸浮在空間中的藍色絲帶,Blue ribbon suspended in space ©Little Xie
以藍色為空間主基調,結合造型體塊與燈帶融合呈線性光源。在淺色空間氛圍中,其形態懸浮於空間之中,為整體空間帶來了流動的美感。
With blue as the main tone of the space, the modeling blocks and light strips are integrated to form a linear light source. In the light-colored space atmosphere, its form is suspended in the space, bringing a flowing beauty to the overall space.
∇ 一層大廳的階梯,將通往二層展區,The stairs in the hall on the first floor will lead to the exhibition area on the second floor ©Little Xie
PART02 樂章的流轉與和諧 The flow of music and harmony
空間是為產品服務的,在設計空間時,如何為為觀者提供一個既高效又富有情感的體驗,是我們設計考量的重點因素。
裸築曾提出過:美來源於秩序中的驚鴻一瞥。麵對豐富的產品物料,我們決定以有條不紊的展示手法進行闡述,將空間雕琢為“回”字形結構,三麵牆身設置展示壁龕,緩緩展開公司產品的發展史書卷。
Space serves products. When designing space, how to provide viewers with an efficient and emotional experience is a key factor in our design considerations.
Naked Architecture once proposed that beauty comes from the glimpse of order. Faced with a wealth of product materials, we decided to use a methodical display method to elaborate, carving the space into a “back”-shaped structure, and setting up display niches on three walls to slowly unfold the development history of the company’s products.
∇ 模塊化的展台,Modular booth ©Little Xie
跳動的旋律還在繼續,以線作麵,以麵作體,構成了空間中不同層次和角度的視覺效果。藍色的體塊與空間的互動營造出持續而反複的感受。自然光影隨時間變幻,為空間流動著迷人的底色,融合空間結構、尺度和色彩,令空間呈現出多元而富有創意的可能性。
The beating melody continues, using lines as surfaces and surfaces as bodies, forming visual effects at different levels and angles in the space. The interaction between the blue volume and the space creates a continuous and repeated feeling. Natural light and shadow change over time, giving the space a charming background. The integration of spatial structure, scale and color makes the space present diverse and creative possibilities.
∇ 藍色的體塊在空間的延續,The continuation of the blue volume in the space ©Little Xie
∇ 可旋轉展架,Rotating display stand ©Little Xie
可旋轉的展架,在轉動的同時帶來光影的變幻,豐富了幾何線麵構成的空間美感。
The rotatable display rack brings about changes in light and shadow while rotating, enriching the spatial beauty composed of geometric lines and surfaces.
∇ 陳列區,Exhibition area ©Little Xie
一字排開的陳列方式呈現出緩緩的節奏感,猶如音樂的幾個樂章,段落之間有停歇和連續,又能被共時串聯成一體,成為一種連綿的語言性建構。
The row-by-line display presents a slow rhythm, like several movements of music. There are pauses and continuity between the paragraphs, and they can be connected together simultaneously, becoming a continuous linguistic construction.
∇ 展廳細部,Showroom details ©Little Xie
∇ 嵌入牆體的壁龕,alcove built into the wall ©Little Xie
∇ 一層平麵圖,First floor plan ©Xuzhihui
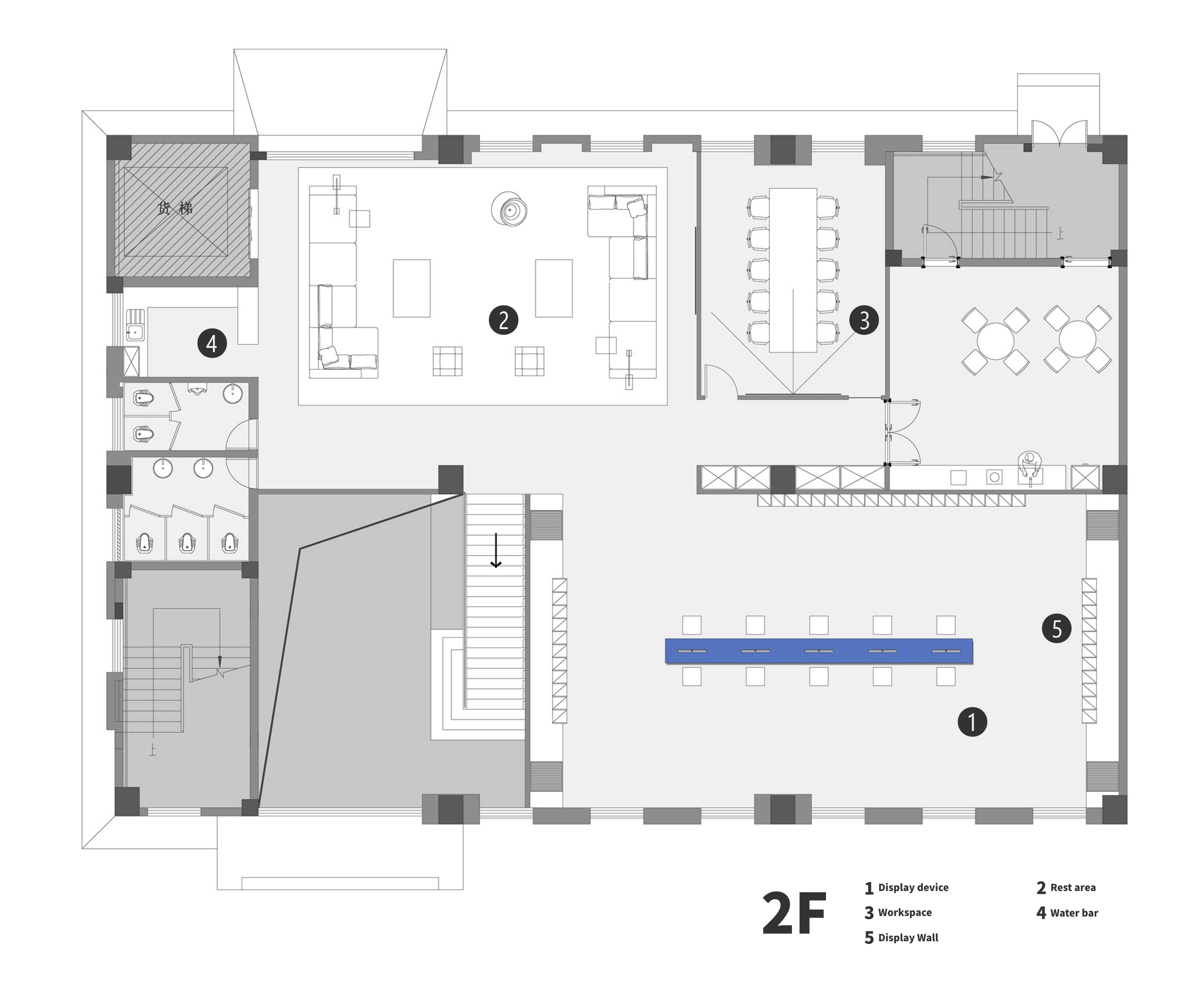
∇ 二層平麵圖,Second floor plan ©Xuzhihui
項目信息
項目名稱:JIAYI柔版展廳
項目地點:浙江嘉善
項目麵積:638.7㎡
完工時間:2023/09
設計團隊:陳一夫/張原/郭強/徐誌慧
設計公司:原一空間設計
攝影:小謝氏
Project Name: JIAYI Flexo Exhibition Hall
Location: Jiashan, Zhejiang
Area: 638.7㎡
Project Year: 2023/09
Designers: Chenyifu/Zhangyuan/Guoqiang/Xuzhihui
Photographer: Little Xie
































