“Slowyard”燒烤餐廳位於韓國首爾麻浦合井洞的中心地帶,是源自 Indiesalon 創新精神的全新創作。僅“德克薩斯燒烤”一詞就會讓人想起家庭聚集在後院,在炭火上烤肉的畫麵,這是電視節目和電影中常見的場景。Indiesalon 致力於將德克薩斯燒烤文化引入這個以公寓生活為主的國家,創造一個人們可以體驗的獨特空間。
空間的創造性利用 ——
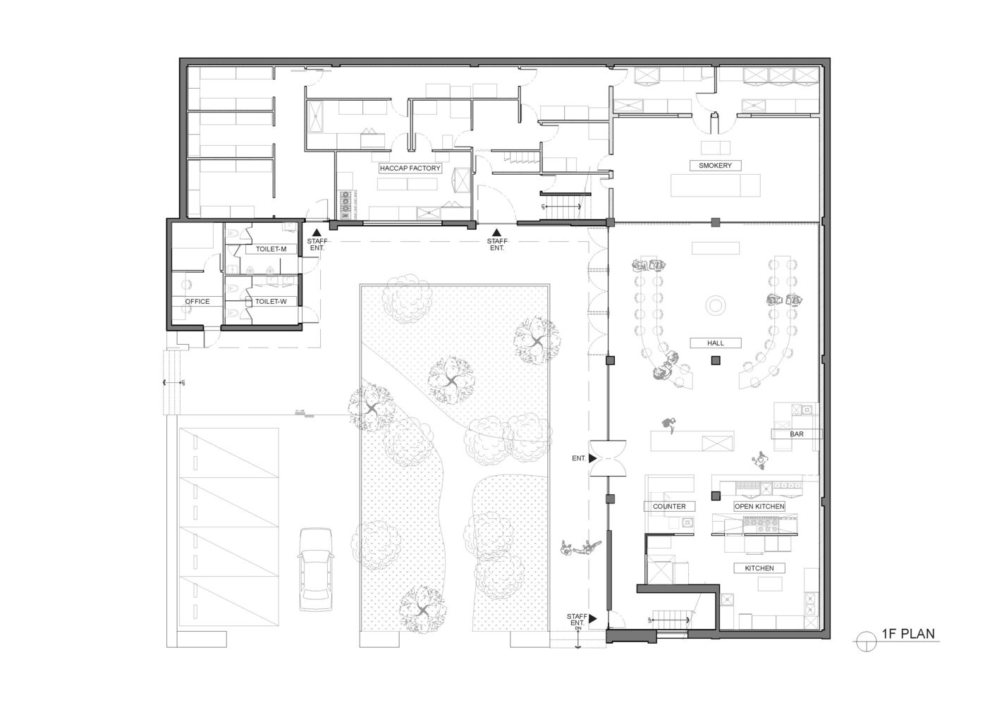
Slowyard項目通過創造性地利用一棟廢棄已久的建築和一個寬敞的場地而得以實現。這個空間已轉變為一個特殊的場所,可滿足尋求正宗感官燒烤體驗的不同顧客的需求。重點是通過吸煙香氣、音樂和氛圍的和諧來提供難忘的體驗。
室內外一體化——
現有的一樓停車場被改造成寬敞的綠色草坪,在庭院和用餐區之間形成自然的流動。一樓的外窗設計為季節性消失,消除了室內和室外空間之間的界限,讓顧客全年都能享受傳統的德克薩斯燒烤文化。
自然流動、用餐空間的多元魅力——
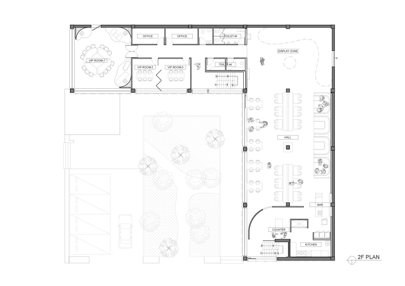
從一樓通向二樓的樓梯自然地引導顧客,而二樓入口處的弧形牆則增強了人們對前方的期待。Slowyard的用餐空間充滿了多樣的魅力。靠窗的座位提供清新的自然光和美麗的景色,設有長凳式座位,可以重新安排以供團體用餐。相比之下,中間的座位是多功能的,可以容納不同的人群,因為桌子可以移動以滿足不同顧客的需求。這些座椅的設計類似於堆疊的燒烤木柴,提供獨特的氛圍,讓您品嚐燒烤的精髓。此外,最裏麵的包廂座位在開放的空間中營造出舒適的氛圍,讓人想起第一代家庭餐館的溫馨。
原材料 –
Slowyard 致力於提供高檔的用餐體驗,同時保留燒烤的原始風味。設計采用三種主要材料:大理石、木材和金屬。紅色大理石呈現出美麗的紅色色調,其大理石紋理讓人想起燒烤的橫截麵。木材和金屬的靈感來自於燒烤用的木柴,並以其原始形式呈現。此外,為了加強外牆的結構,安裝了金屬窗框,將老化的外觀改造成與室內無縫融合的現代立麵。這種設計創造了精致與自然本質的和諧融合。
∇ 平麵圖
∇ 軸測圖









































