“野芳發而幽香 , 佳木秀而繁陰。風霜高潔 , 水落而石出者 , 山間之四時也。”
——《醉翁亭記》宋·歐陽修
緣起
藍田將軍嶺在地域上是一個重要的界標,以東為山區,以西則是蘊含著五千年豐富文化積澱的白鹿原。若逢秋獲雨後時節,白鹿原天高氣爽,禾穗含露,金穀玉米,殷實碩壯,因景色奇妙故作藍田八景之一 ——“鹿塬秋霽穗通天”。項目基地距離西安中心城區約有50公裏車程。此地群山環抱,經由一條蜿蜒山間的鄉道通往市區主幹道。原居民村落依山勢而建,順林田而居。
項目之初,如何實現城鄉融合,循環共生是我們首要思考的問題,設計應當充分尊重鄉村,基於在地特點實現鄉村營造。將軍故裏模式是我們團隊對於鄉村振興的一次探索實踐:“以鄉村振興為核心,以農旅融合發展為基礎,運用城市資本重塑鄉村發展動力。著力於規劃全局,深挖場域文化曆史以及自然生態,為將軍村創造新場景,構建新產業,打造藍田全域旅遊形式的民宿驛站。”
山·盒·驛
基地周邊密林環抱,群山為屏,麥田相傍,蔥蔚洇潤,餘霞成綺。我們希望盡可能借助場地自身的環境優勢,使得室內空間與外部環境聯結互動,內外交融。基於此,我們提出“山·盒·驛”的設計理念。
“山”—— 宗旨在於打造兼具傳統民居特色與當代舒適享受的山居體驗,以及由此延伸的山野體驗性趣玩功能。
“盒”—— 建築形式如同搭積木,通過不同尺度的盒子,圍合錯落卻又彼此避讓。布局上采取傳統民居的圍合形製,以現代的設計語言表達。建築間的空隙使室內空間與自然環境相互滲透,形成共生關係。
“驛”—— 代表著古代行軍打仗途中,軍隊休整停歇的居所,此功能與項目之初的設計規劃不謀而合。
造物
總體布局上,我們規劃了五個相對獨立的院落,順地勢而建,南北相互錯開。遊園小徑營造出豐富空間體驗的同時,有效連接起各個院落之間的動線。
第一個院落作為接待中心,使得公共區域的各項功能相對集中,配有精釀酒吧、機車展示區、書吧和餐廳。為了呈現出一種友好歡迎的姿態,同時更好的朝向景觀麵,在體塊上做了一個角度上的偏轉,讓整個建築變得更加活潑。入口處有一層薄薄的靜水,微風吹動,動態的水麵和搖曳的樹影可透過落地窗映射到室內。
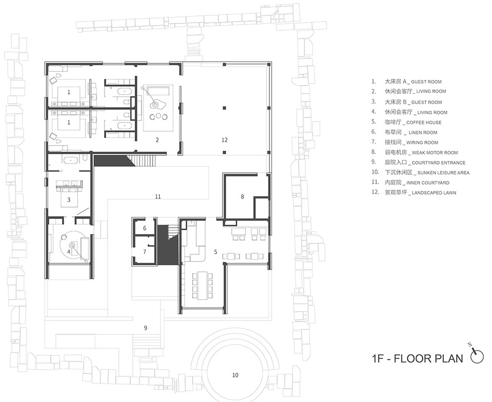
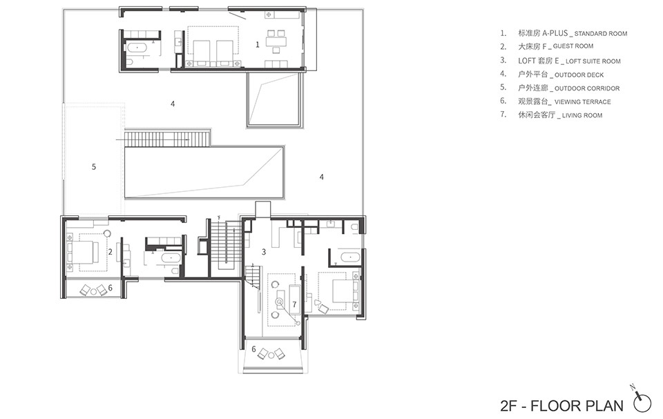
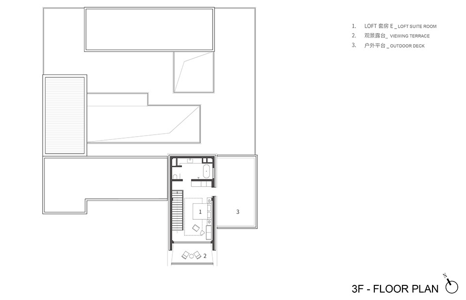
其間三個院落則作為客房區域,提供20間客房,另配有咖啡廳、會客廳、茶室和公共更衣洗浴區域等。住客由院中樓梯通往二層的客房,確保每間客房都有良好景觀麵的同時兼備必要的隱私性,大麵的落地開窗使外部自然山景層層滲透進室內,極大地增加了室內宜居感與舒適感。二層戶外露台形成了連續環繞的外部灰空間,使得每間客房門口都有獨屬的休憩空間,引導住客停頓、交流、遠眺、休憩,強化了建築與自然之間的互動。
∇ 分解軸測圖
最後一個院落為康養中心,用於私人接待,同時配有4間客房,院內帶有一個康養湯池。建築盒子相互交錯圍合,環繞出了一個帶火塘的下沉式內院,一層會客廳和餐廳的推拉移門可完全打開,消弭室內外界限。視覺的互動、場景的關聯,共同模糊邊界,拓展了體驗的連貫性。
∇ 設計爆炸圖
材質
建築牆麵采用白色肌理塗料作為主要材質,局部跳色、搭配粗石和青瓦,使得每個建築呈現出簡潔幹淨的外觀,樸素卻不失質感。康養中心外立麵則以燒杉板包裹而成,木材作為天然原料不僅在質感上與環境融合度更高,觸感上也更加柔和溫暖,讓人倍感暖意和溫情。
建築室內公共空間部分,整體以白色簡約為主,牆麵和天花采用白色肌理塗料,地麵鋪設水磨石瓷磚。咖啡廳軟裝使用的編織物和青瓦是從當地的民居收取而來,經過粗加工後應用於項目中,外材內用,使得自然肌理在室內得以延續。建築室內客房部份,選用柔和自然的材質,牆麵和天花采用帶有肌理的塗料,地麵鋪設木地板,衛生間和廚房區域則使用瓷磚鋪設,增加空間肌理質感的同時具備防滑效果。沿樓梯步入二層的臥室區域,包裹的木質飾麵從一層延伸至此處,明淨舒適、溫潤自然。
遠離喧囂的都市,依山傍水,使住客感受到精神上的放鬆,是一種遠離世俗紛擾,離世而居的狀態,城市的喧囂在這裏不複存在,取而代之的是一方暫且歸隱的天地。
∇ 2#院落1F平麵圖
∇ 2#院落2F平麵圖
∇ 2#院落3F平麵圖
∇ 總剖麵圖
∇ 2#院落剖麵圖
∇ 3#院落剖麵圖
項目信息
項目名稱:將軍故裏·疙瘩村民宿
項目類型:民宿
設計方:集木德空間設計工作室
項目設計:2021
完成年份:2023
設計主創:李子奇/陳曦
設計團隊:郝佳/李想/洪斯怡/羅英傑/常新宇/史誌萍
項目地址:陝西省西安市藍田縣前衛鎮將軍村
建築麵積:3517.36㎡
攝影版權:劉青
合作方:方土環境規劃設計
材料:夯土掛板 燒杉板





































