粵讀
濃縮、轉譯漫步城市的浪漫
廣州樣貌多元,地理位置及工商屬性造就南北交會、東西並存的喧騰,古今相偕,雜而有味。透過敘事的擇與譯,曆史風俗借建築材質色彩或軸線布局,轉為符號性更強的純粹元素,和諧捏塑出賞粵當代路徑。
翻轉合院及洋樓留白架構,鬧中取靜
翻閱嶺南城市風土,因商港之便早早傳入外來審美,建築景觀有東南西北多方族群脈絡,傳統合院聚落與西式垂直樓房的騎樓連廊,相伴為鄰,兼容並蓄。熱騰不止的飲茶食宴、燈會遊園、觀戲聽曲,豐富城市生命力,更賦予建築連結情感的深刻意涵。
負責此案的水相設計欲將城市印象濃縮為空間體驗,認為與其複刻建築元素,不如由簡入繁、鬧中取靜,改從中、西式建築的「留白」思考優化空間層次的要訣。例如古代合院對稱布局,多透過天井拉開廳廂距離;西洋樓宇常見一樓內縮釋出騎樓或連廊,向街角敞開共享空間,二樓以上才全為室內所用。這些都是龐雜城市生活裏,因追求生活美感而出讓的空間哲學。
以此為核心,我們將天井和連廊兩種形式疊架出室內回遊動線,二樓入口迎賓、展示資料以回字結構布局,中心環繞貫穿一二樓的天井,明亮地串起兩層樓麵關係。透過軸線與雕塑布局,合院與洋房騎樓的建築經驗成為整合場域水平、垂直關係的橋梁。
無需詳盡重現各時期建築雕飾才能再現廣府情懷,俐落闊朗的現代場域,也若有似無地模擬天井采光、廳堂層次、屋簷避雨,淡雅連結傳統日常。
記憶裏的砂紅,以新語彙寫入空間
入口右側長型天井下則另有風情,一樓是對外營業的咖啡廳,主牆向上延伸完整立麵,連同造型如劈裂岩塊的內梯、吧台工作區,全以砂紅軸線塑造視覺份量,相較於室內其他中性、低彩度環境,色澤溫暖但帶著豐富紋理的材質,重重烙印出視覺記憶。
紅砂岩屬嶺南特產,作為傳統建築重要構件已成廣州潛意識,循此文化線索,我們挑選中東地區的紅洞石,一方麵重現砂紅色澤,借天然紋理敘述時光淬煉的價值;另一方麵,向西取材的跨地域性,也呼應廣府兼容開放、脈絡多元的曆來城市麵貌。
靈感、取材象限橫跨地域
櫃台後方斜切大尺度立麵即以砂紅紋理,在簡淨場域劃出視覺主軸,兩道斜牆構築入口迂回,概念源自傳統建築正門內的「屏門」,控製動線之餘也保留內部環境隱蔽性。
連結文化習性與現代審美的翻轉手法,亦見於二樓半獨立茶室,結構上略浮於地麵強調獨立性,周圍再以茶色玻璃夾紗隔開視線。雖是東方茶席概念,但改變光線色調的濾鏡效果,卻是西洋彩繪玻璃的變體。
與主動線拉開距離的私宴廳,座落在天井另側角隅,屏蔽靈感來自花牆的鏤空砌磚法,但改以木製格柵創造疏密層次,兼顧采光及隱私。周圍水景圍繞,需行過蜿蜒步道進出,儀式行為易聯想到園林曲橋,往昔諸多設計不都是為了賦予距離美感。
兼容多元的傳統濃縮為抽象意境
除了材質,文化活動亦是連結人們經驗的重要環節,海納百川、靈活多變的粵劇,舞台上下交換著民生百態,過往是居民齊聚交流的動能。我們將此脈絡轉至空間來訪者最常接觸的場域,同是圍繞觀看、穿梭流動,替探訪行為串接起過往風華。
展演廳位於墊高台麵座落軸線中央、承接四方目光,跨距不等的踏階環繞出戲台氣氛;一旁兩道矮牆劃出軸線,分隔資料展示區及銜接至洽談區通道,類似演出轉場的後台路徑,參觀時宛如迂回切換於幕前幕後。
傳統節慶是文化的精華,入夜後城市張燈結彩則閃耀著不同柔情,宮燈、燈籠映照歡慶之趣。春江秋池,人影綽綽,燈火散作滿河星,盡是引人懷念的人文風景。我們擷取意境,將象征物件轉為輕透俐落的玻璃燈柱,映襯水景倒影,讓似曾相似的河畔賞燈、鏡花水月牽引更生動的想像。
透過建築,重新檢視廣州可見可感的記憶,彙整為現代審美底蘊,待人細細覺察,緩緩回味。
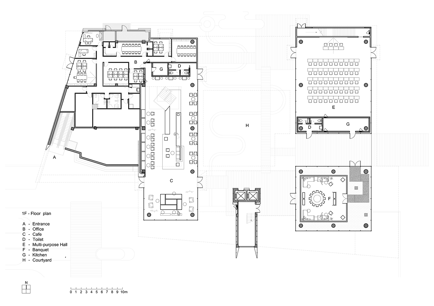
∇ 1F平麵圖
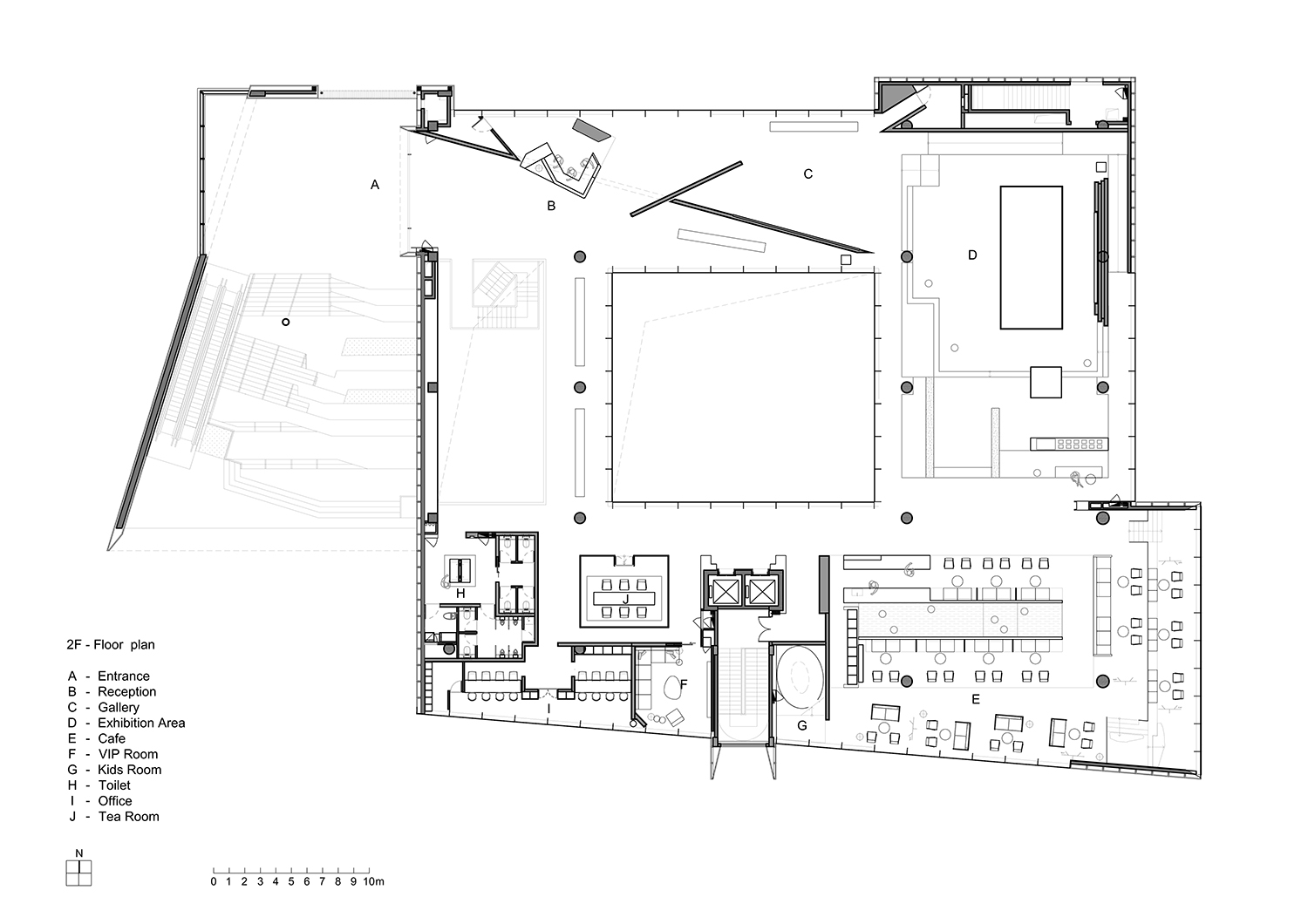
∇ 2F平麵圖
項目信息
項目名稱:長隆萬博悅府
空間設計:李智翔、葛祝緯、林其緯、陸安妮、黃雅琳 /水相設計
項目業主:華潤置地廣州公司
業主團隊:程曉曦、江久懷、吳浩、周揚、劉鑫、陳惠娟、陳天、林振敏、杜盛勇
座落位置:廣州
室內麵積:2164平方米
空間格局:接待區、洽談區、品牌展示區、品茗區、中庭、宴會廳、辦公室、衛生區、多功能區
設計時間:2023.05~2023.06
施工時間:2023.06~2023.09
主要材料:花梨木、紅洞石、聖羅蘭黑金磚、鑿麵大理石、茶色夾紗玻璃、馬鞍皮革
項目攝影:一千度視覺








































