以社交場景為驅動力,艾舍爾設計打造綾致時裝杭州直播空間
BESTSELLER HANGZHOU LIVE STREAM SPACE by A3 VISION
綾致時裝杭州直播空間位於浙江杭州濱江的一個雙碳技術科創園區內,由兩幢三層的裙樓組成,擁有麵向街區和內院的三麵落地玻璃,明亮通透,且每層均有露台,呈現向城市開放的特征。
Bestseller Hangzhou Live Stream Space, located in a dual-carbon technology science park in Binjiang, Hangzhou, Zhejiang Province, consists of two three-story podiums with three sides of floor-to-ceiling glazing facing the neighborhood and the inner courtyard, making it bright and airy and with terraces on each floor, the character of being open to the city is presented.
A3 VISION 艾舍爾設計回應綾致時裝提出的“打破傳統型辦公模式、注重員工體驗”訴求,雙方共同創造一個麵向未來,促進團隊協作,以幸福體驗為驅動力的工作場所。
A3 VISION was designed to meet Bestseller’s demand to break away from the traditional office model and emphasize the employee experience, and the two parties worked together to create a future-oriented workplace that fosters teamwork and demonstrates that well-being is the driving force behind the workplace experience.
∇ 設計概念 © A3 VISION 艾舍爾設計
Design concept © A3 VISION
∇ © Schranimage
∇ 從街區看向建築 © Schranimage
Looking from the street © Schranimage
∇ 主入口 © Schranimage
Entrance © Schranimage
∇ © Schranimage
01 交通動線
Circulation
原本兩個獨立的單元互不相通,在空間使用上非常不便利,在規劃樓層動線時,首先將兩幢樓打通,在水平交通上建立了連接,再與垂直的電梯、步行樓梯構成立體交通網格,讓各樓層之間的協作變得更通暢,促進團隊和跨團隊協作。
Two separate units were not connected to each other, resulting in a very inconvenient use of space. Now, when planning the floor dynamics, the two buildings are first opened up to create a connection in horizontal transportation, and then with vertical elevators and walking stairs to form a three-dimensional transportation grid, which enables collaboration between floors to become smoother, and the same time facilitates team and cross-team collaboration.
∇ 交通動線 © A3 VISION 艾舍爾設計
Traffic flow © A3 VISION
∇ 水平動線,通道 © Schranimage
Horizontal dynamic line, passage © Schranimage
∇ 水平動線,走廊 © Schranimage
Horizontal dynamic line, Corridor © Schranimage
∇ 垂直動線,電梯 © Schranimage
Vertical dynamic line, elevator © Schranimage
∇ 垂直動線,樓梯 © Schranimage
Vertical dynamic line, staircase © Schranimage
02 直播間
Live streaming rooms
每層的直播間分布在樓層的角落和邊緣,其他協同業務位於樓層中心視線最佳位置。直播間以一個個獨立的盒子來呈現,外部由U型發光玻璃、氧化鋁、木三種不同的材質組成,在整個空間內表現得醒目且不單調。直播間麵向街道的立麵以發光玻璃呈現,在視覺上保持項目整體的開放與透明性。
Live streaming rooms are located at the corners and edges of each floor, with other collaborative operations optimally located at the center of the floor. The appearance of rooms are presented as freestanding boxes, and their exteriors are composed of three different materials – U-shaped luminous glass, oxidized aluminum, and wood – that stand out and are not monotonous throughout the space. The side of the booth facing the street is made of luminous glass to keep the project visually open and transparent.
∇ 軸測圖 © A3 VISION 艾舍爾設計
Axonometric drawing © A3 VISION
∇ 直播間材質示意圖 © A3 VISION 艾舍爾設計
Material schematic diagram of the live room © A3 VISION
∇ 辦公區與發光玻璃盒子直播間 © Schranimage
Office area and luminous glass box live streaming room © Schranimage
∇ 辦公區與木盒子直播間 © Schranimage
Office area and wooden box live streaming room © Schranimage
∇ © Schranimage
∇ 直播間內部 © Schranimage
Interior of the live streaming room © Schranimage
03 混合工作模式
Hybrid working mode
新工作場所可容納約200名員工,采用工作區、茶水區和休息區混合布局模式,動態的工作環境為員工提供了各種靈活的辦公形態,使員工能夠創造性地、流暢地工作。直播間和會議室因為工作性質需要獨立外,其他均為開放式空間,這樣的設計除了提升溝通效率外,也能將更多的空間釋放出來提升工作的舒適度,成為一個引人入勝的空間,塑造未來理想的工作環境。
The new workplace can accommodate approximately 200 employees and is a mix of work, refreshment, and breakout areas. The dynamic work environment provides employees with a variety of flexible work formats, which enables them to work creatively and fluidly. The live room and meeting room are all open spaces except for the need to be independent due to the nature of the work. In addition to enhancing communication efficiency, this design, at the same time, frees up more space to enhance the comfort of the workplace, and endeavors to become an intriguing space that shapes the ideal working environment in the future.
∇ 會議室 © Schranimage
Meeting room © Schranimage
∇ 辦公區與茶水區結合的空間 © Schranimage
Space combining office area and coffee area © Schranimage
∇ © Schranimage
∇ 鄰窗的空間 © Schranimage
Lounge space next to the window © Schranimage
∇ 鄰窗的休息區 © Schranimage
Lounge space next to the window © Schranimage
1F入口取消了傳統的接待台和訪客等候區,設計成開放式的茶水區,讓整個氛圍更加輕鬆與自在。3F咖啡混合辦公區非常具有視覺美感,純黑色係的木質咖啡桌椅,與冰雕一般的磨砂樹脂玻璃格柵天花結合,營造出一種輕盈冷靜的美感,多元的座位組合模式,滿足各種社交活動和工作場景需求。與我們習慣的典型企業辦公室美學不同,促進幸福感的活動是員工體驗不可或缺的一部分。
The traditional reception desk and visitor waiting area at the entrance of 1F has been canceled and designed as an open tea area, which makes the whole atmosphere more relaxing and comfortable. 3F Coffee Mixed Office Area is very visually beautiful, with pure black wooden coffee tables and chairs, combined with the frosted Plexiglas grille ceiling like an ice sculpture, to create a light and calm sense of aesthetics, and diversified seating combinations to meet the needs of various social activities and work scenarios. The multiple seating combinations meet the needs of various social activities and work scenarios. These designs are a departure from the typical corporate office aesthetics we are accustomed to, and these activities that promote a sense of well-being are an integral part of the employee experience.
∇ 1F主入口茶水區 © Schranimage
1F main entrance tea area © Schranimage
∇ © Schranimage
∇ 3F-辦公區與咖啡區結合的空間 © Schranimage
3F – space combining office area and coffee area © Schranimage
∇ © Schranimage
∇ 多元的座位組合模式,滿足各種社交和工作場景需求 © Schranimage
Diversified seating combinations can meet the needs of various social and work scenarios © Schranimage
04 自由組合的工作站模塊
Freely combination of workstations
為了滿足綾致時裝的工作文化和實際運營需求,A3 VISION 艾舍爾設計為此項目設計了梯形工作站模塊,可以根據需要自由組合出不同的形態,以滿足各種協同辦公的需求。
A3 VISION created a trapezoidal workstation module for this project to meet Bestseller’s work culture and operational needs, not only in terms of its ability to be freely configured as needed but also in terms of its ability to accommodate a wide range of coworking needs.
∇ 辦公工作站 © A3 VISION 艾舍爾設計
Office workstations © A3 VISION
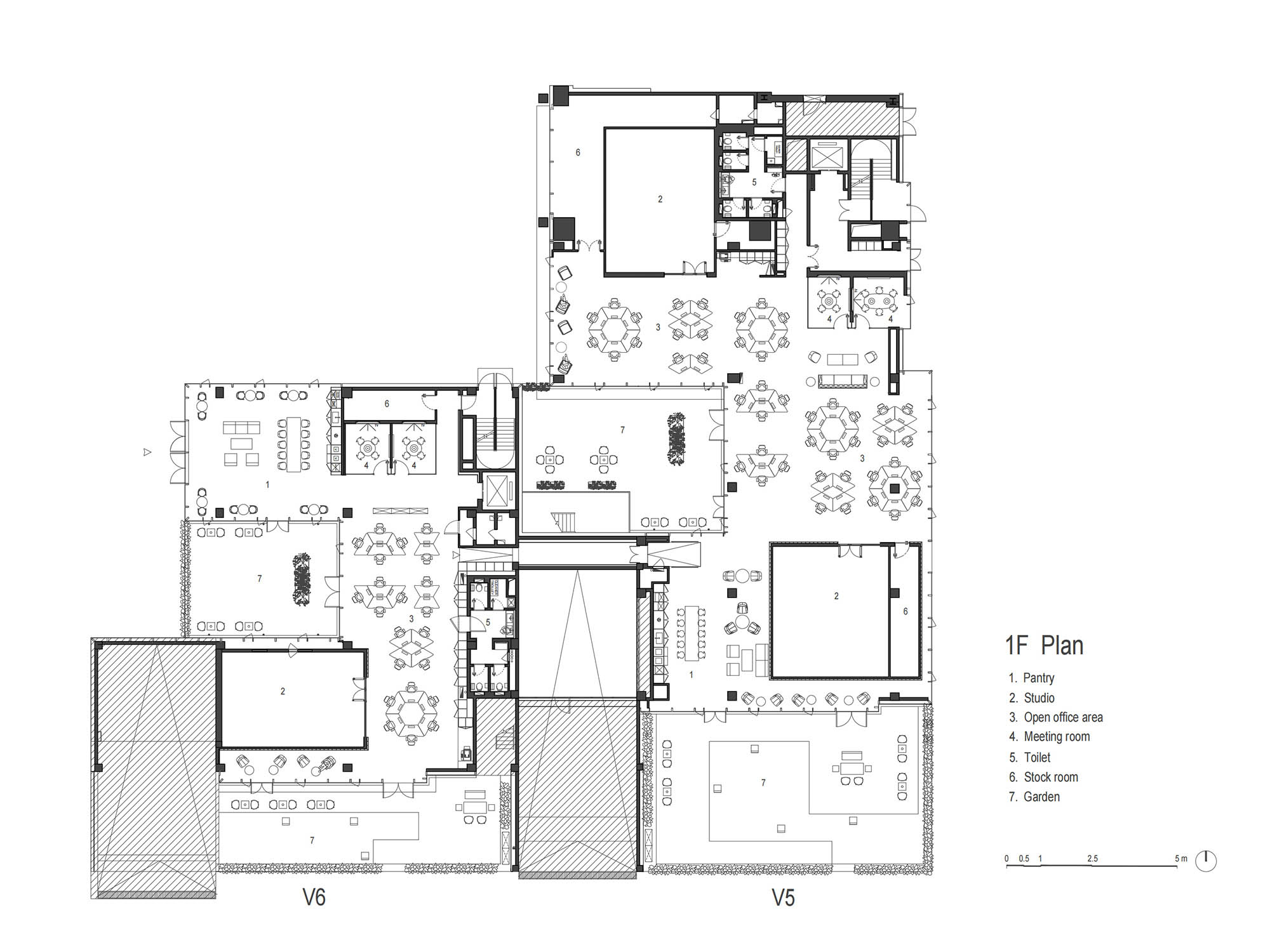
∇ 1F平麵圖 © A3 VISION 艾舍爾設計
1F Plan © A3 VISION
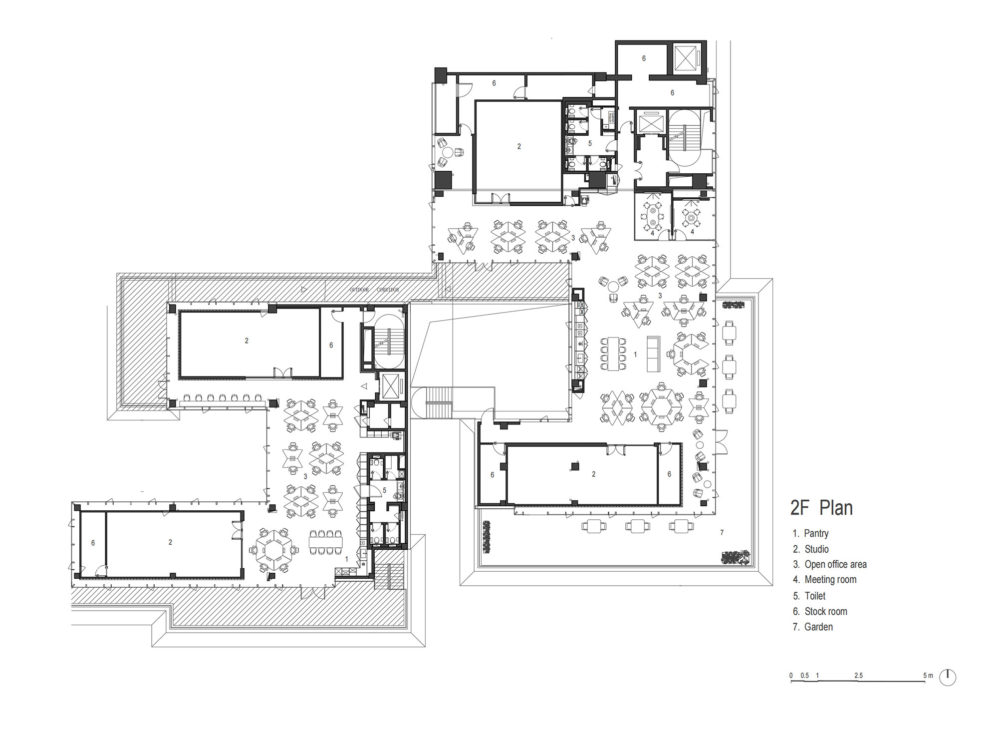
∇ 2F平麵圖 © A3 VISION 艾舍爾設計
2F Plan © A3 VISION
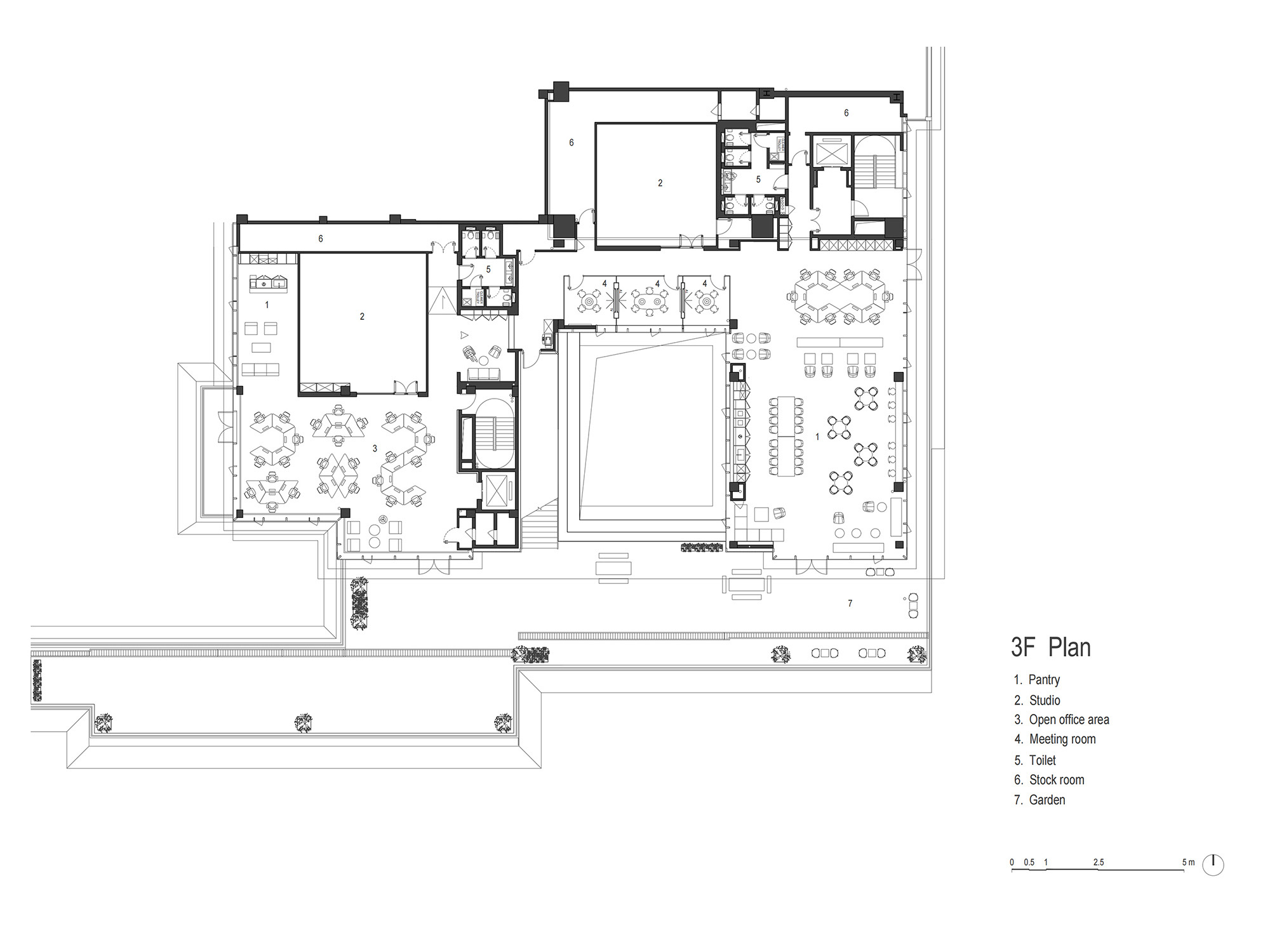
∇ 3F平麵圖 © A3 VISION 艾舍爾設計
3F Plan © A3 VISION
項目信息
項目名稱:綾致時裝杭州直播空間
項目地點:浙江省杭州市濱江區聚業路興耀科創城V5+V6
項目時間:2023年
項目業主:綾致時裝(天津)有限公司
項目內容:室內
建築麵積:33,00平方米
設計公司:A3 VISION 艾舍爾設計
創意總監:王誌峰
執行總監:範進
設計團隊:謝佳秀、易媛、丁愈傑、孫韜、朱興平
合作設計:Bestseller
合作設計團隊:朱順麒(負責人)、程金鋒、劉斯滕、李爽
主要材料:氧化鋁板、U型玻璃、橡木、水磨石
家具品牌:HAY、&Tradition、FLOKK
燈光顧問:彩曦照明設計(上海)有限公司
施工總包:北京格林貝斯裝飾工程有限公司
攝影攝像:是然建築攝影Schranimage
Name: Bestseller Hangzhou Live Stream Space
Address: Xingyao Science and Innovation City V5+V6, Juye Road, Binjiang District, Hangzhou, Zhejiang, China
Project Period: 2023
Client: Bestseller
Design Scope: Indoor
Building Area: 33,00 square meters
Design Firm: A3 VISION
Creative Director: Wang Zhifeng
Executive Director: Fan Jin
Design Team: Xie Jiaxiu, Yi Yuan, Ding Yujie, Sun Tao, Zhu Xingping
Co-designer: Bestseller
Co-design Team: Zhu Shunqi (Principal), Cheng Jinfeng, Liu Siteng, Li Shuang
Main Materials: Aluminum oxide plate, U-shaped glass, oak, terrazzo
Furniture Brand: HAY, &Tradition, FLOKK
Lighting Consultant: Caixi Lighting Design Shanghai Co., Ltd.
Construction General Contractor: Beijing Greenspace Construction & Design Co., Ltd.
Photography: Schranimage










































