該項目位於福州倉山區倉前路129-131號,是一棟沿街的三進式宅院。原建築由清光緒末年福州的橄欖大王、第一個開發出多種橄欖製品的福州人、有著“橄欖五”之稱的鄭則銘興建。因此它也得名“橄欖五大厝”。
結合鄭家後人回憶及建築形態考證,建築始建於清光緒年間,完工應晚於1900年。經曆了上世紀50年代的“公私合營”、“社會主義私房改造”,以及1970年代特殊曆史時期倉前新村的建造,它的功能和歸屬權不斷發生切分、流轉。百十年的時間裏,它可以說見證了一個家族、街區,甚至一個時代的興衰起落,自身也在缺乏修葺的時光裏日漸凋敝。近年得益於煙台山區域的整體改造,才又顯露出容貌。
如今它的新委托方,是一個同樣起源於福州的食品品牌——“馴”。雖然上百年來不論是這座城市的食品行業、加工技術,還是福州人的飲食習慣、生活方式都發生了巨大變化,但“橄欖五大厝”和這個專注於野生酵母(Sourdough)發酵、尊重天然本味的烘焙品牌之間,仍然存在著一種冥冥的連結。
我們的設計因此承擔了在過往和當下中間建立起這種連結的使命。充分了解它、修繕並複原出它最好的狀態、在此基礎上融入功能需求、當下的材料、工藝和設計語言,比重新去搭建一個符合現代審美的消費場景,更應該成為我們的工作共識。在這點上,品牌方也給予了充分支持。
而當它的表皮被一點點剝開,露出建築和時間共同的肌理,它也給了我們正向的反饋。我們將更多精力花在了找到以前的工藝修補,以及用現代技術去保護它原有的沉靜和溫度感,或者用一些新材料去輔助它將自己的氣質散發出來,而不是過分矯正咯吱作響的木樓梯,或者沒有任何一條直線的牆麵。這些鬆動同樣可以視為它的一部分,既是閑適的,也是不那麼理所當然的。金屬細線結構被引入到這些鬆動當中,也克製了鬆動。
後來品牌方告訴我們“馴”的含義,是敬畏、尊重,是一個相互的過程,而非馴化,它與設計動機相謀合。
另一個我們的共識是:比起一個閉塞的消費空間,我們更希望它是足夠開放的,因此你會看到這個三進式宅院的第一進被充分展示給了街道,入口釋放了它遞進式的結構,大的櫥窗將街上的人輕鬆引入。隻有少量的商品在第一進被展示,人們走進這座百年大宅裏閑逛、休息、觀看
傳統的建築結構,比起商鋪它更像一個具有公共功能的空間,但這種“奢侈”的空間使用也將激發進一步探索的好奇心。
一二樓之間、一二進之間,被天井、拉窗、連通廊打通。原本狹小封閉的“柴欄厝”(柴樓)被打開,寬的窗台成為座位區,柴樓和大埕之間過大的高差則被階梯座椅消化,整個戶外是貫通的,人可以隨意就坐下。而原用於晾曬橄欖的大埕,如今是自然粗糲的景觀。我們壘砌石塊、撒下石礫和草種,下次再去時,繁茂的植物已經從石礫中冒出來,將一條小路藏在其中了,我們希望它不同於別致的園林和精致刻畫的造景。
家具的使用上,戶外家具和立麵整理一樣,呈現了一定的秩序感,室內家具則雜糅了現代設計師家具、傳統的庭院石台、工匠手打的鐵桌、上世紀七八十年代的中古家具或更有年代感的歐洲椅子。溫潤的磚、木、草木灰牆和這棟建築的曆史都足以包容不同時期、風格的混合。
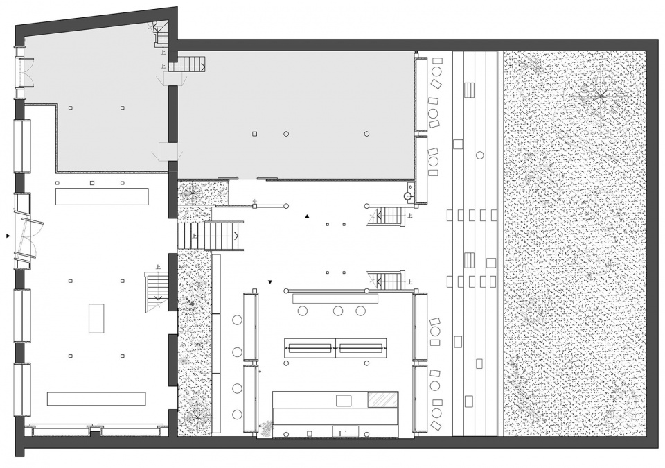
∇ 一層平麵圖
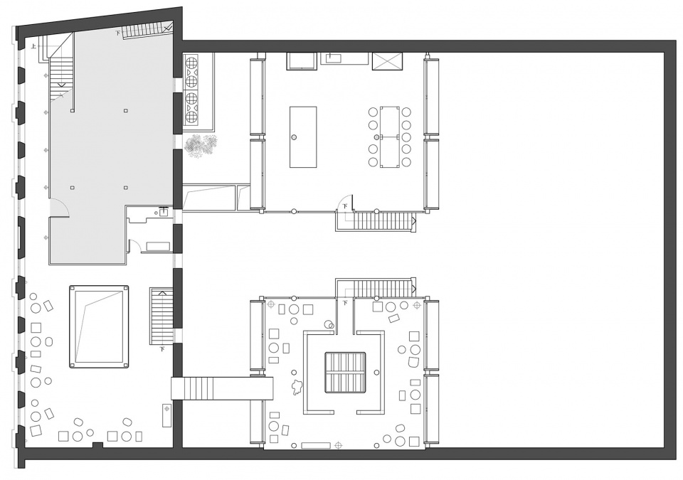
∇ 二層平麵圖
項目信息
項目名稱 :馴 · 烘焙(煙台山)
業主:馴 · 烘焙
項目地址:福建福州
主創設計:湯建鬆、王琦
設計團隊:黃龍濤、林程輝、王二璿、張鈺涵、Kaki
項目麵積:1800㎡
項目時間:2023年10月
主材:亂紋不鏽鋼 泉州白石 老杉木 石灰塗料
項目攝影:鄒訓楷
施工方:EMCC結廬
景觀工程:老白
燈光設計:ELA尋光















































