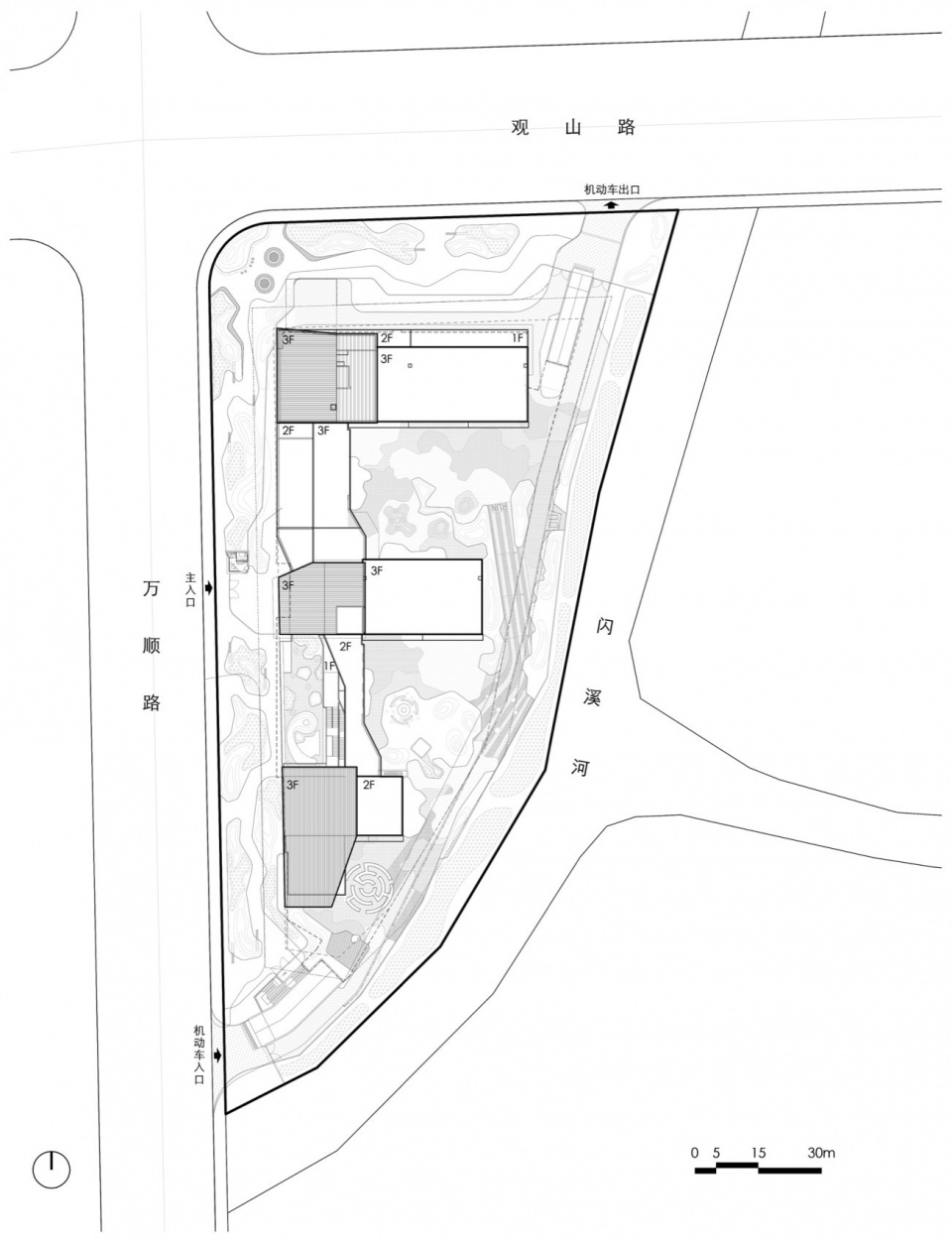
基地位於無錫市經開區,北臨觀山路,西麵萬順路,地塊呈三角形緊鄰東南側的閃溪河。根據地塊形狀,公共空間布置在臨街一側,教室單元位於東側,兩兩相對圍合出麵向自然河道的活動場地。
內部流動空間
門廳中庭處的大台階在半層分為兩支導向東西向教室單元,再經由體塊層疊向上,挑高門廳空間,以或凹或凸的平台交織出豐富的空間體驗,通過層疊孔洞的假山意象創造出流動的空間感受。
∇ 軸側圖
∇ 門廳假山軸側分析圖
室外庭院空間則擬用山形,分隔以半透明穿孔網簾,使步道交叉並列,平台層級後退,模糊內與外,聯係此處與他處,構建出錯落有致的活動場所,從而引導出視線、感知和行為的交織,為孩子們創造自由交流的氛圍。
自然環境
“在任意空間位置中,隻要某一點能同時處在兩個或更多的關係係統中,透明性就出現了。這一空間位置到底從屬於哪種關係係統,暫時懸而未決,並為選擇留出空間”——伯納德·霍伊斯裏
∇ 庭院假山軸側分析圖
走廊必定會有一個室外活動場地與之相鄰,而這個室外活動場地則通過平台或台階的設置逐層引導人們進入室內空間。自然環境與室內空間的過渡和轉換,使幼兒園內部形成了一個無邊界的活動樂園。
朝西的屋頂平台和內部庭院通過半透明的材料圍合出一個隱秘的兒童堡壘,減少了與自然環境的隔閡,增加了活動的樂趣。而針對場地南北向的狹長特性,設計上利用教學單元圍合出多個麵向河道的半開放庭院,供孩子們活動使用。
空間的錯動引入了自然光線的變化,從而形成了連續的卻又不盡相同的空間印象,為孩子們帶來專屬的場景記憶。
城市尺度
作為城市公共建築的一部分,教育建築應當成為一種更具普適文化意義的存在,影響到使用該建築的人以及周邊的居民。
半透的穿孔網簾橫亙在東西向立麵之上,結合不同節點的開窗,串聯起城市界麵,並柔和了校園與城市之間的明顯分割,為建築附上公共與人文屬性。
設計通過退讓的城市空間創造了線性公園,提供家長等候區的同時,利用景觀打造了宜人的漫遊路徑,創造出安全的兒童步行係統,提高了城市街道的舒適度和連續感。
教育建築具有其多重屬性——從兒童角度出發,我們希望創造多樣化的模糊空間;從城市尺度出發,我們希望教育建築能夠成為城市公共體係的一部分,發揮其社會功能,成為城市的文化現象。
∇ 總平麵圖
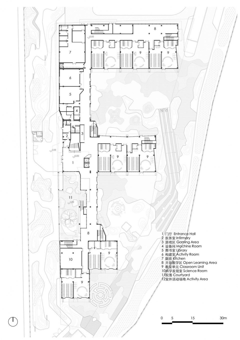
∇ 一層平麵圖
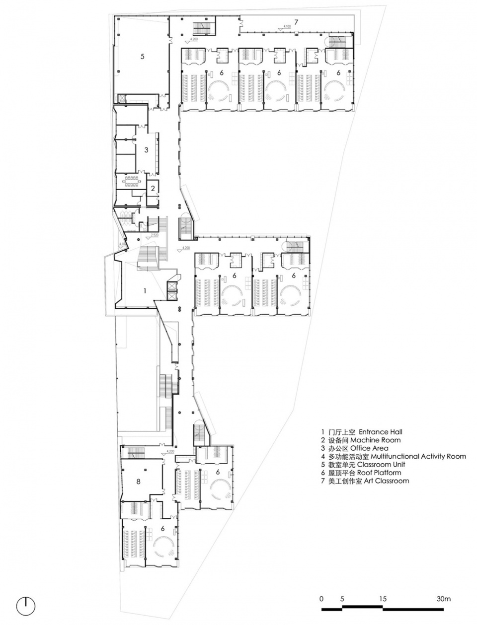
∇ 二層平麵圖
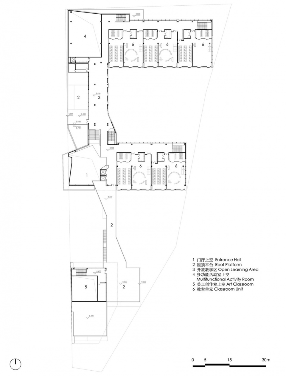
∇ 三層平麵圖
∇ 屋頂平麵圖
項目信息
項目名稱:無錫和韻幼兒園設計
項目類型:教育建築
設計方:STWD十拓建築
項目設計:2019-2020
完成年份:2022
設計團隊:王綱,劉飛,李睿,周鵬飛,曹明明,王寧,張麗君,張姝,孫楠
項目地址:江蘇省無錫市經開區觀山路與萬順路交叉口
建築麵積:16,600㎡
攝影版權:山間影像,STWD
合作方:江蘇博森建築設計有限公司
結構設計: 江蘇博森建築設計有限公司
景觀設計: 蘇州致朗建築景觀設計有限公司
施工方: 江蘇揚建集團有限公司
客戶:無錫經開區建設局











































