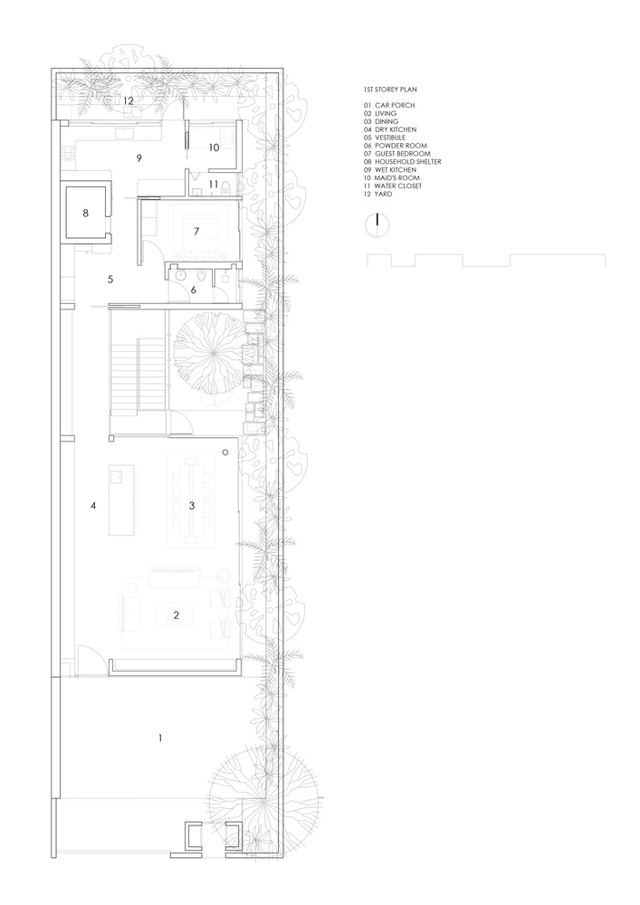
這個項目的要求是為一對帶著孩子的年輕夫婦建造一棟有四間臥室的實用住宅,並與自然保持密切聯係。該場地的背景是一條麵向前方的繁忙街道,車流量大,並且有一條公共巴士路線沿其運行。從一開始,隱私就至關重要,設計師特意決定用堅固的牆體封閉麵向街道的一層起居空間,創建一個內部庭院,房子的朝向將在該庭院上進行。
關鍵的建築反應是將視野轉向開放式私人庭院花園,該花園垂直跨越三層,增強了熱帶生活的感覺。景觀經過專門設計,以類似於森林綠牆的方式從頂部到底層的花盆層疊。從一樓向庭院望去,有一種置身於自然鬱鬱蔥蔥的山穀中的感覺,爬山虎從高處垂落。庭院還將自然采光、通風和自然景觀引入到所有樓層的房屋深處,同時提供安全感和隱私感。
起居室、餐廳和幹燥廚房被設計為一個單一的開放空間,充分最大化以獲得寬敞的感覺。它背對庭院,正麵遮擋了主要街道和西邊的陽光。人們通過客廳進入房屋,然後穿過餐廳和幹燥廚房到達樓梯,將居住者帶到上麵的樓層。樓梯位於庭院旁邊,讓居住者在穿過樓層時沉浸在大自然中。樓梯的設計在於其開放性,采用黑色漆鋼和開放式木踏板,以實現最大程度的光線穿透。在建築立麵上,大型實木樞軸屏風用於轉移下午的熱量,並為麵向主要街道的臥室創造隱私。
∇ 平麵圖
版權聲明:本站所有文章除投稿授權發布外,其他文字內容均為原創,享有著作權保護,未經許可不得以任何形式進行轉載(包括且不限於:媒體、網站、公眾號等)。所有項目照片/設計圖形版權歸原作者所有。本站部分內容源自網絡公開資源或用戶分享,如若侵犯了原作者的合法權益,可聯係我們進行處理。
































