該別墅位於阿根廷布宜諾斯艾利斯市的一個綜合社區,該別墅的設計優先考慮日常使用的舒適性,並產生寬敞明亮的空間。在形態層麵上,別墅建築由兩個疊加的體量組成,其中進行減法運算以生成內部庭院並連接不同的空間。這些露台為室內提供照明和通風,同時給別墅帶來室內外的感覺。
混凝土、鋁型材和瓷磚等低維護材料被用於簡單的中性色調。一係列滑動鋁製百葉窗根據太陽的方向和一年中的時間為房子的不同空間提供遮陽。安全和隱私是業主的首要任務,因此大門保護前立麵不暴露在街道上。同時,立麵上的垂直格子為內部提供了隱私。這些決定賦予了房子一種純粹和簡約的語言,向前封閉,但向後和側麵開放。
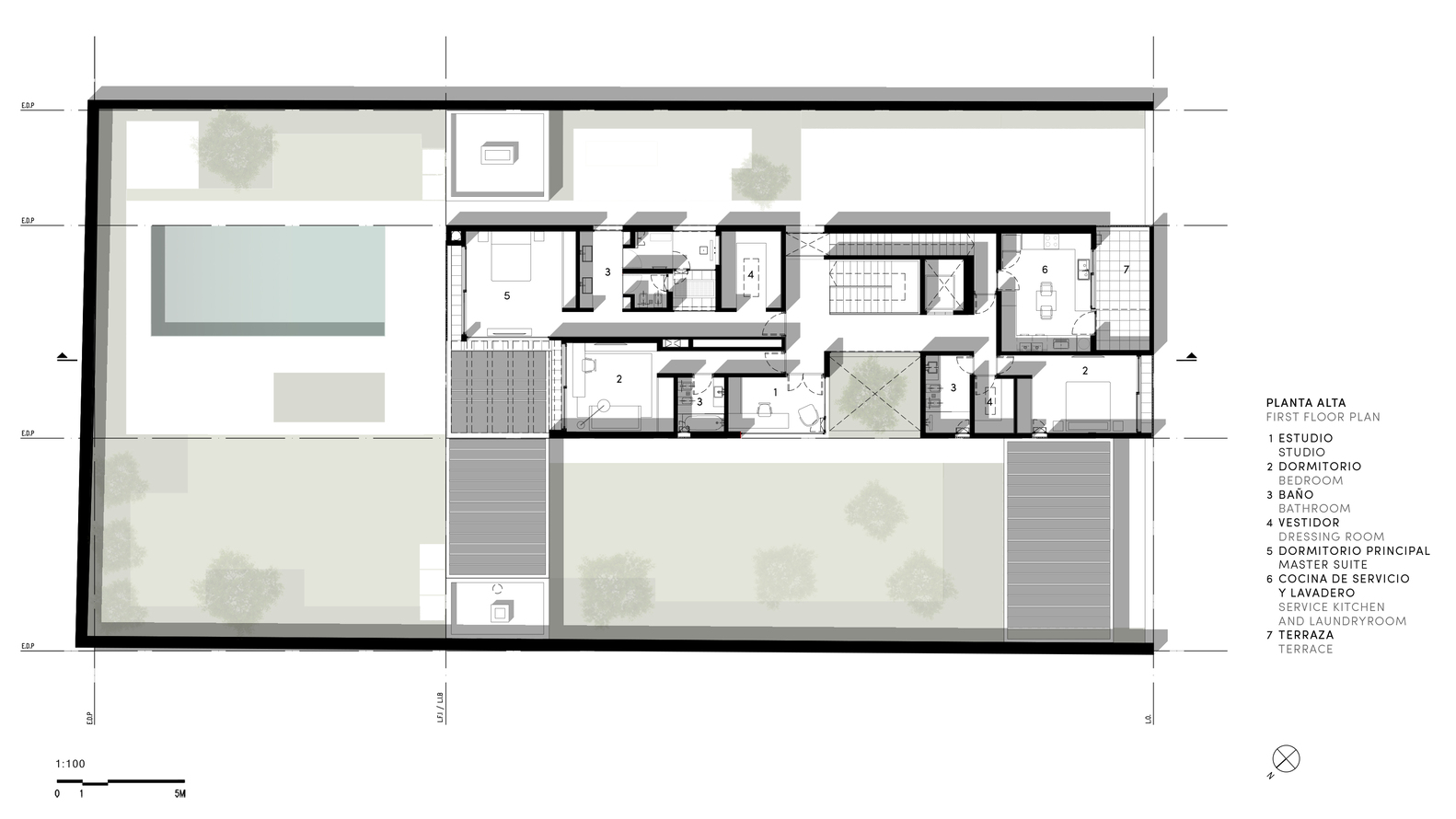
∇ 平麵圖
∇ 剖麵圖
∇ 通風光照分析圖
版權聲明:本站所有文章除投稿授權發布外,其他文字內容均為原創,享有著作權保護,未經許可不得以任何形式進行轉載(包括且不限於:媒體、網站、公眾號等)。所有項目照片/設計圖形版權歸原作者所有。本站部分內容源自網絡公開資源或用戶分享,如若侵犯了原作者的合法權益,可聯係我們進行處理。









































