在一塊寬9米、長38米的狹長地塊上,一棟三層半的半獨立式住宅矗立在一個細長的整體上。該設計位於路口正前方,外部景觀極少,旨在為熱衷園藝的房主及其新婚子女提供一個具有氣候意識且獨特的內向型住宅。在打造多代人居住的住宅時,設計力求避免形成完全隔離的私人區域。相反,它的目標是創造一個共享空間,讓偶遇和聯係感得以蓬勃發展。
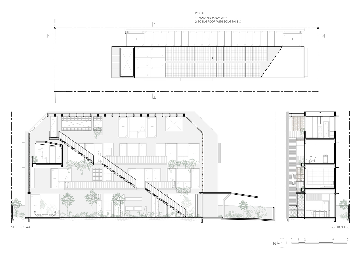
一座高聳的四倍容積中庭是這座房子的主通道。中庭利用其南北方向的優勢,由混凝土防風塊圍成,允許全年交叉通風。選擇錐形異形微風塊以最大限度地發揮風洞效應,並作為生物氣候立麵,過濾日光和雨水。頭頂上的一係列深框天窗以及各個樓層鬱鬱蔥蔥的綠色植物的融合,使這個特色空間的親自然體驗更加完整。
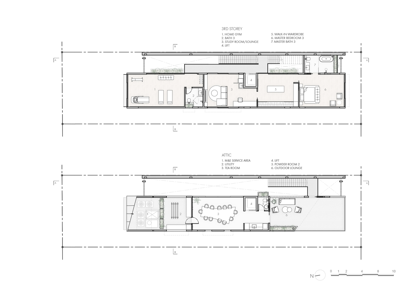
外部元素的享受並不局限於中庭,還延伸到了生活空間的其他部分。每個樓層都由單獨的家庭單元占據,中庭旨在通過兼作開放和共享的流通空間來促進日常互動。為此,穿孔金屬網樓梯被設計為一個連續的元素,沿著房屋的內部立麵橫貫並通向頂部。中庭內牆采用全高滑動玻璃,進一步建立了起居空間的視覺連接和交叉通風。
可持續元素被巧妙地整合在一起,屋頂上排列著太陽能電池板,而核桃木片則由建築殘餘物重新利用,嵌入微水泥茶室地板中。最終,這座房子的目標是成為一個熱帶共享空間,讓多代人可以在未來的許多年裏一起成長。
∇ 平麵圖
∇ 立麵&剖麵圖
版權聲明:本站所有文章除投稿授權發布外,其他文字內容均為原創,享有著作權保護,未經許可不得以任何形式進行轉載(包括且不限於:媒體、網站、公眾號等)。所有項目照片/設計圖形版權歸原作者所有。本站部分內容源自網絡公開資源或用戶分享,如若侵犯了原作者的合法權益,可聯係我們進行處理。

























