這間325㎡的庭院別墅坐落在希臘狄奧尼索斯Penteli 山的北坡,坐落在寧靜的鬆樹覆蓋的社區之中。該項目旨在回應現代生活方式,同時喚起原始“洞穴避難所”的保護感和熟悉感。設計過程的靈感來自原始庇護所的原型。這種原型深深植根於人類曆史,與“居住”的概念聯係在一起,塑造了幾代人的空間偏好,凸顯了人類與家的觀念聯係的持久影響。
通過幾何定義的、構造的和多立克式的整體來呈現建築表達——一個建築上組成和有凝聚力的整體,其特點是神秘的簡單性。懸浮的整體體量由裸露的混凝土製成,是主要的綜合姿態。棱柱形外殼包圍了住宅的私人空間。精心設計的鋁板可以控製與外部環境的相互作用。
裸露混凝土的使用允許創建一個整體體積。混凝土質樸而永恒,其質地粗糙,具有深刻的象征意義。在地麵層,起居空間的組織方式與戶外直接相連。空間的兩種相互矛盾的品質通過充當中間空間的中庭連接起來。
地塊的朝向和住宅沿東西軸線的排列使自然光塑造和形成了空間體驗。隨著時間的推移,每個小時、每個季節,不斷變化的自然光通過照亮建築的不同方麵來不斷改變空間。
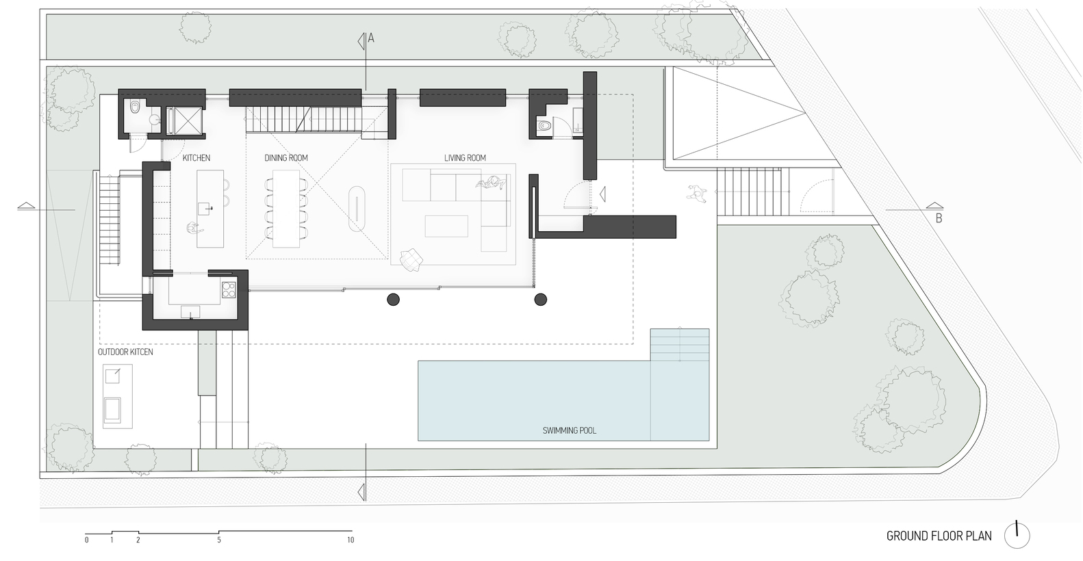
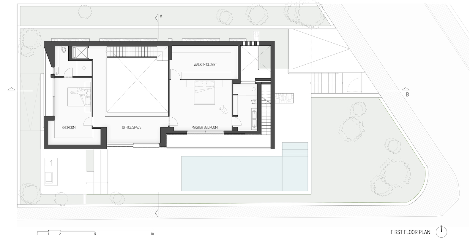
∇ 平麵圖
∇ 剖麵圖
∇ 立麵圖
版權聲明:本站所有文章除投稿授權發布外,其他文字內容均為原創,享有著作權保護,未經許可不得以任何形式進行轉載(包括且不限於:媒體、網站、公眾號等)。所有項目照片/設計圖形版權歸原作者所有。本站部分內容源自網絡公開資源或用戶分享,如若侵犯了原作者的合法權益,可聯係我們進行處理。











































