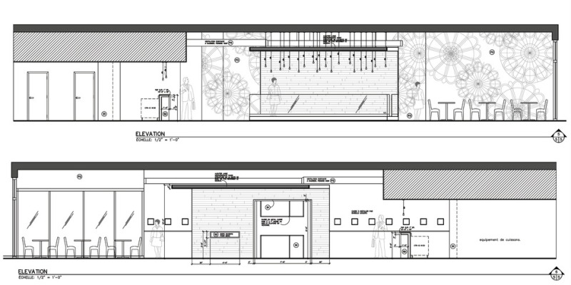
Kinoya酒館位於加拿大蒙特利爾Saint-Denis 街,麵積為139平方米,由設計師Jean de Lessard精心設計。Kinoya酒館室內的設計運用了大量的日本文化元素,處處洋溢著日本料理的味道。
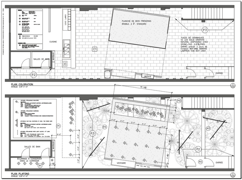
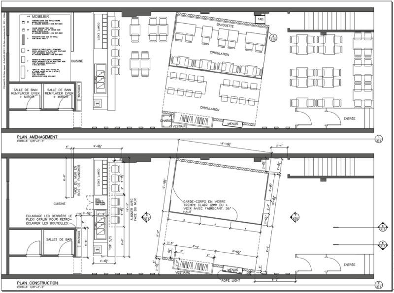
餐廳室內設計給了我們一個不同尋常的創造性設計,給顧客帶來一種休閑時尚的感覺。設計師賦予了一個純實木結構的傳統“榻榻米”房間,這是一個潔淨和帶有柔和燈光的就餐空間。餐廳室內設計地板上巨大的花紋圖案,牆壁和天花板的圖案將帶領我們進入一個夢幻和充滿詩意的境界。
Jean de Lessard官方網站:Jean de Lessard
Photos © M David Giral
Content Copyright © www.online4teile.com
版權聲明:本站所有文章除投稿授權發布外,其他文字內容均為原創,享有著作權保護,未經許可不得以任何形式進行轉載(包括且不限於:媒體、網站、公眾號等)。所有項目照片/設計圖形版權歸原作者所有。本站部分內容源自網絡公開資源或用戶分享,如若侵犯了原作者的合法權益,可聯係我們進行處理。





















