住宅主人是一家三口,年輕夫婦正經曆著邁向不惑之年的人生旅程,與孩子的美好童年相伴。他們期望未來十幾年三口之家的生活,能在這座200㎡的大平層中紮根生長,留下珍貴的共度記憶。得益於三麵環窗、開敞通透的建築條件,空間序列有機會圍繞生活淋漓鋪陳。設計主軸聚焦為家庭成員營造內外向兼顧的共生場域,兼備格調提升。
The homeowners are a family of three—a young couple navigating their journey towards their forties, accompanied by the beautiful childhood of their child. They envision the next decade or more of their family life taking root and flourishing in this 200㎡ open-plan apartment, creating cherished memories together. Thanks to the building’s open, well-lit layout with windows on three sides, the spatial sequence unfolds seamlessly around their daily lives. The design focuses on crafting a symbiotic environment that balances inward and outward connections for the family, while elevating the space’s aesthetic appeal.
∇ 意向分析 Intent Analysis
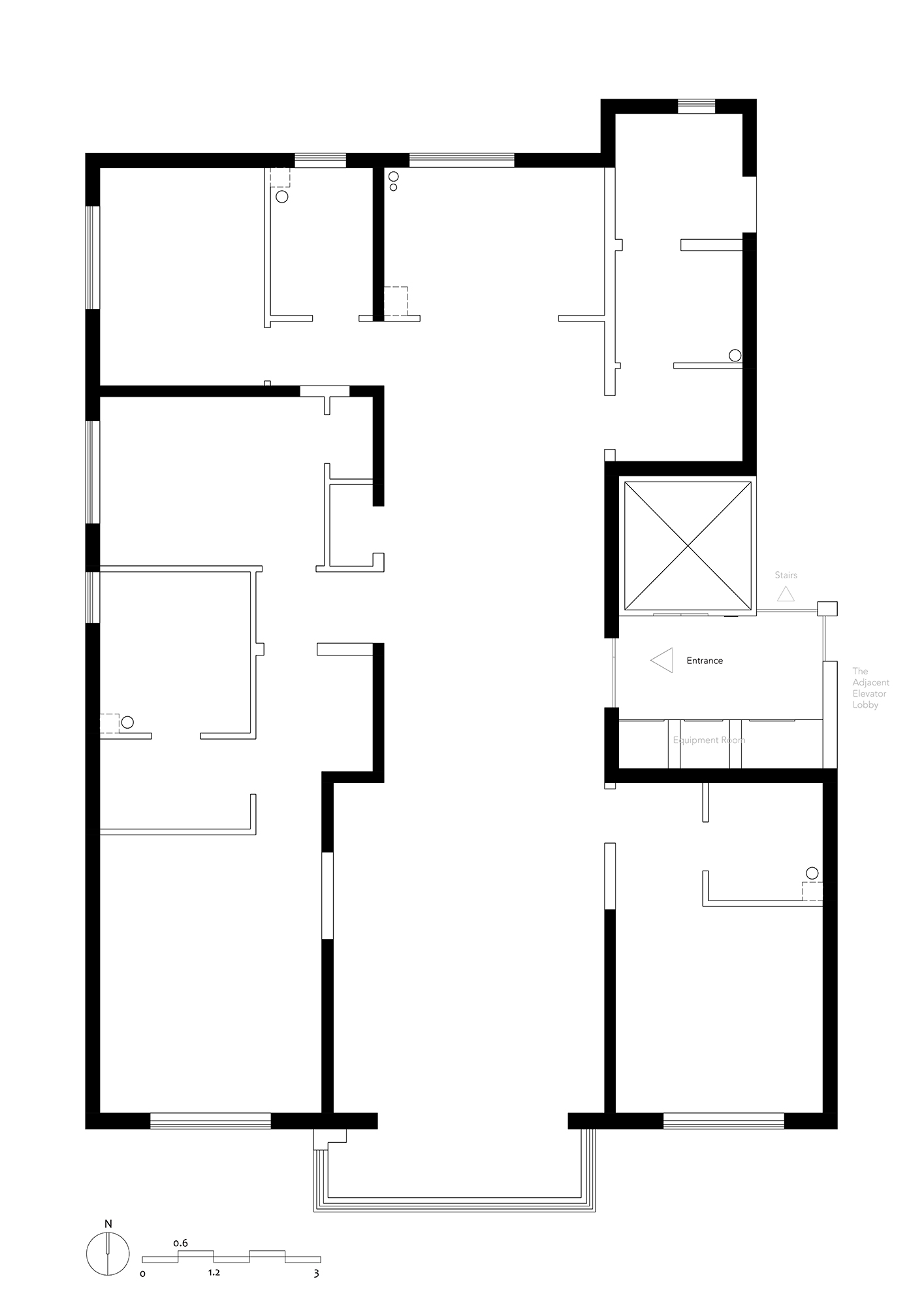
以南北中軸為界對仗公私區:東為公,柔性邊界串聯起5個「相望而不相擾」的生活場景。既回應了中國人的含蓄情感表達,又將傳統中國院落中「移步易景」的觀遊趣味轉譯到這個當代大平層中。西為私,獨處空間隔而不絕、開合有度,讓原本隻能發生在公區的家人相遇在這裏延續。一座可以永居的房子,見證居住者的幼有所長、壯有所成、老有所養,四時更迭的光線變幻溫暖了生活痕跡,空氣中流淌著家的「所有」。
The layout is divided along a north-south central axis into public and private zones: the east serves as the public area, where soft boundaries link five distinct yet harmonious living scenarios—”connected yet undisturbed.” This approach responds to the subtlety of Chinese emotional expression while reinterpreting the traditional courtyard concept of “scenery changing with every step” in a contemporary flat. The west is dedicated to private spaces, designed to be secluded yet interconnected, allowing moments of family connection—typically reserved for shared areas—to extend into these intimate zones. This is a home meant for lifelong dwelling, witnessing its inhabitants grow from childhood to adulthood, thrive in their prime, and age with grace. The shifting light of the seasons warms the traces of daily life, and the air flows with the essence of ” permanences ” that makes a home.
設計前
Before
公私區序列無章,空間各自為陣,動線曲折、功能單一、采光受阻、互動性不足。入戶開門見廳,私密性缺失。
The division between public and private areas is disorganized, with spaces operating in isolation. Circulation paths are meandering, functions are monotonous, natural light is obstructed, and interactivity is insufficient. The entrance directly exposes the living room upon entry, lacking privacy.
∇ 設計前 Before
設計後
After
重構空間秩序:打開公區,建立五進關係,動線流暢、效能豐富、光線穿透;梳理私區生活場景,獨處體驗舒適,合理共享。
Open up the public zone to establish a five-step spatial sequence, ensuring smooth circulation, enriched functionality, and unobstructed light penetration. Meanwhile, refine private living scenarios for secluded comfort while maintaining balanced shared interactions.
∇ 設計後 After
玄關
Foyer
以皮質格柵屏風做入戶影壁,光影綽綽,隔而不阻的構成形式兼顧通透與隱私。懸空櫃方便置物、體量輕盈。木材與細布的細膩觸感自此開啟,歸家的溫暖體驗向內延綿。
The use of a leather grille screen as an entryway partition creates a play of light and shadow, offering a semi-transparent yet private structure that balances openness and seclusion. The floating cabinet provides convenient storage while maintaining a lightweight presence. The delicate textures of wood and fine fabric begin here, extending the warmth of homecoming inward.
∇ 玄關可調節屏風 Foyer Adjustable Screen
∇ 玄關收納櫃 Entryway Storage Cabinet
∇ 玄關看向客廳 Foyer looking into the living room
相關文章推薦




















評論(0)