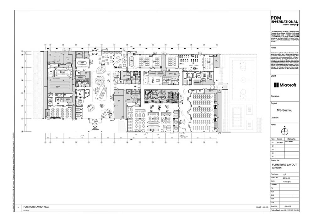
這個33.9萬平方英尺(約3.1萬平方米)的辦公大樓是一個明亮的、充滿活力的空間,由九層樓高的中庭和靈活的工作空間構成,有多達1500名員工。 受到中國著名的蘇州園林啟發,設計者希望打造一個與自然和諧統一的空間。辦公樓裏有一個巨大的自助餐廳和豐富的娛樂空間,包括室內體育館、遊戲室、室外運動場、和健身房。
設計團隊的目的是創造一個驚豔的、吸引人眼球的設計,能夠強調微軟連接的工作模式,幫助公司吸納更多人才。
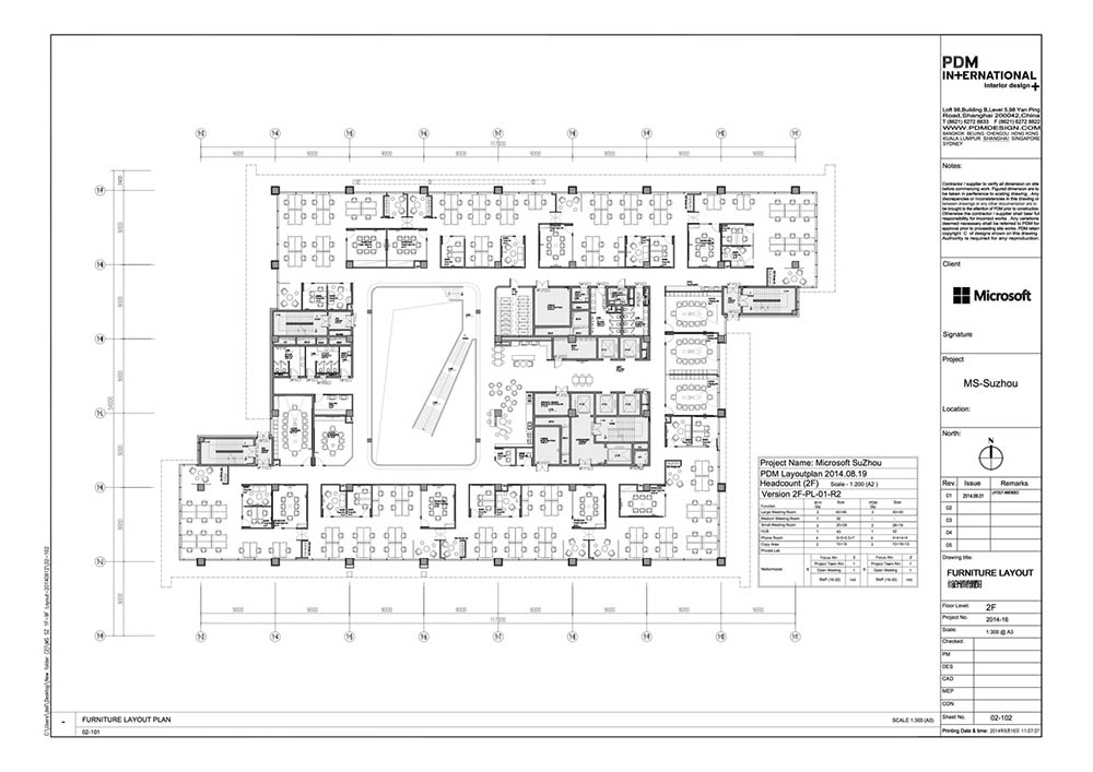
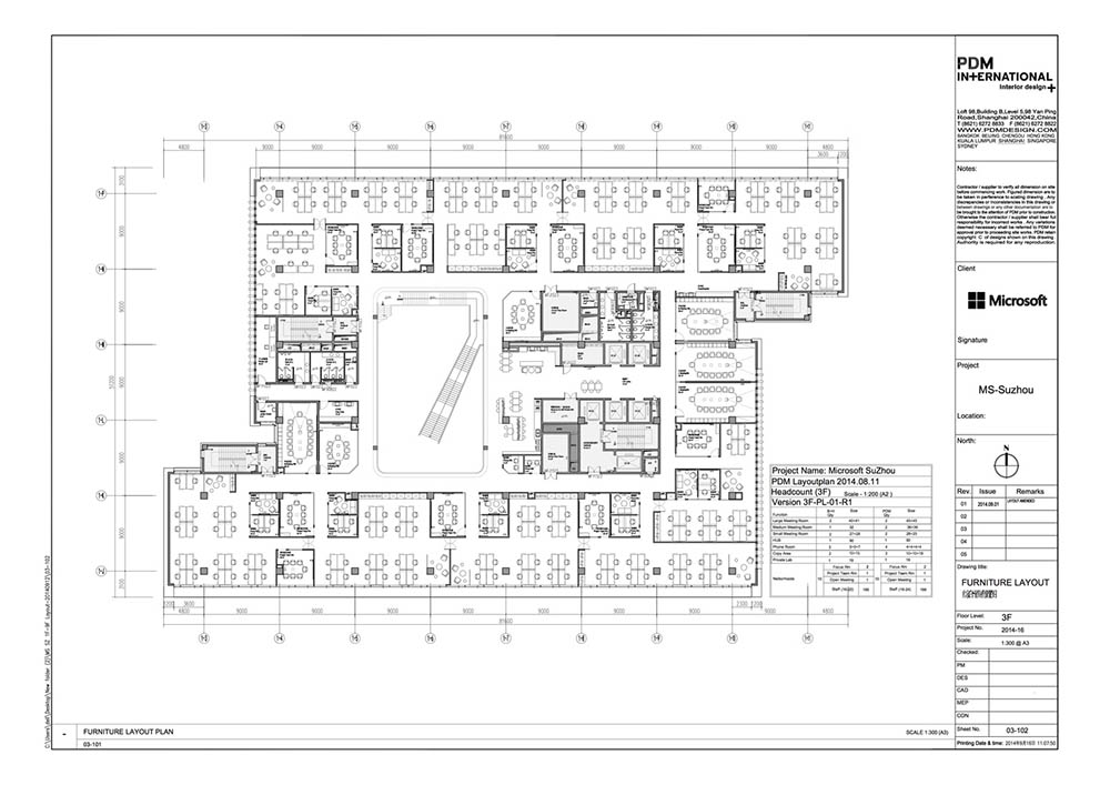
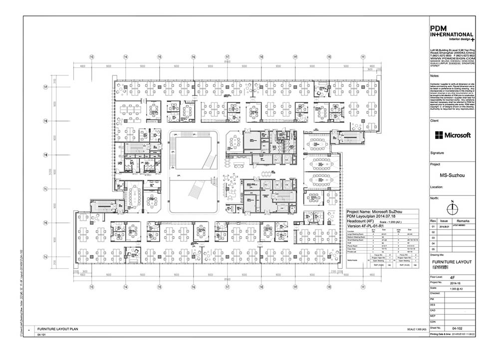
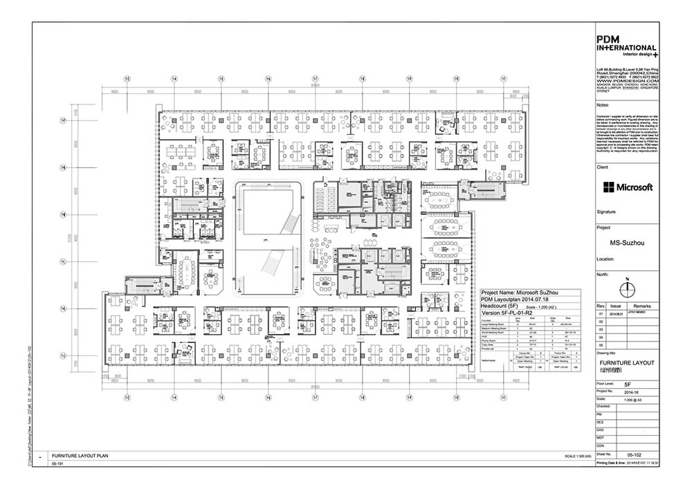
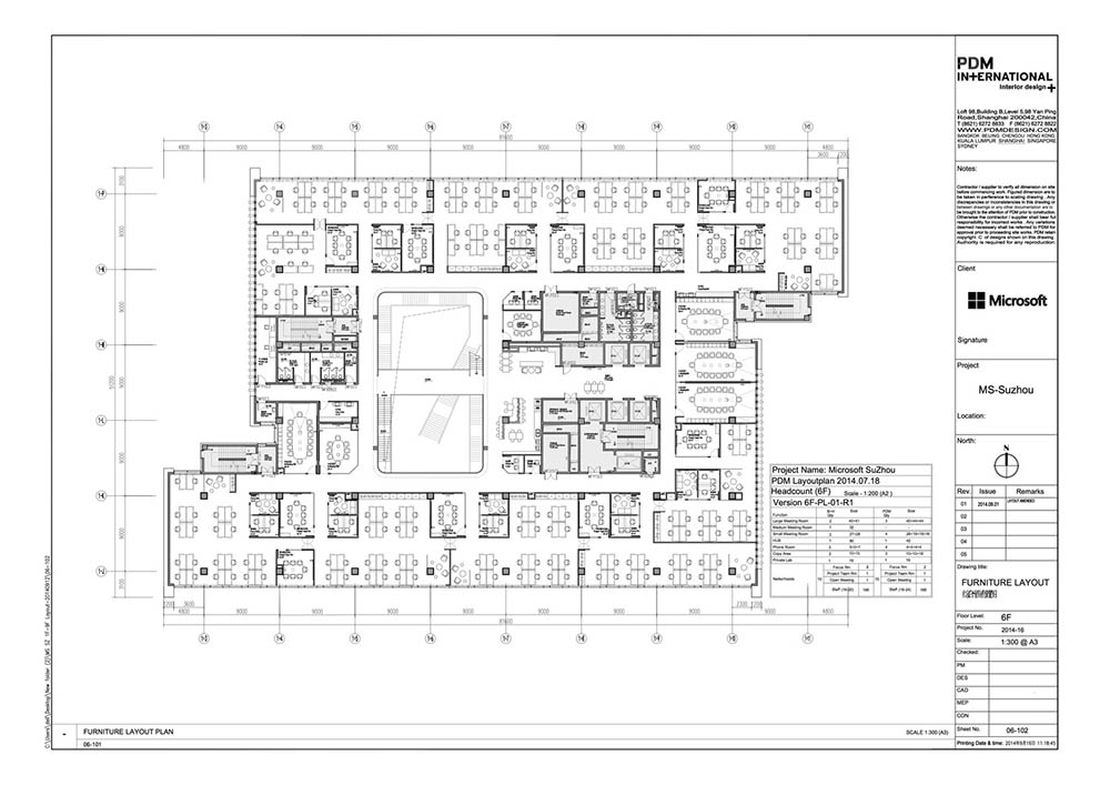
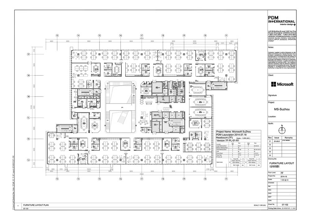
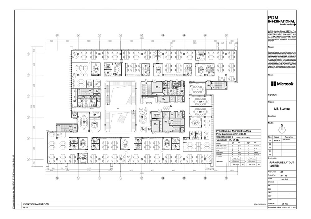
“室內設計的概念是連通性,” 室內設計公司PDM的負責人Julius Kanand表示。這個主概念由九層樓高的建築和它的大中庭所組成,通過一個中央樓梯和四層樓的橋接連接起來的。
設計團隊發掘了蘇州的豐富遺產。蘇州是一個以其經典的蘇州園林而聞名的貿易港口,可以追溯到公元前6世紀。蘇州有九座“山水”園林,以其精湛的工藝、藝術的典雅和豐富的文化內涵而著稱。設計的宗旨是創造一個與自然完美和諧的空間,在可能的地方增加綠色植物,比如在一樓設計一個小花園,並在餐廳中模擬樹木。
為了給空間帶來衝擊和活力,他們決定讓九層樓的中庭充滿色彩和活力,在地麵上使用赭色來模擬地球的土地,逐漸過渡到樹木的綠色,然後用充滿活力的藍色來表示天空。
中庭要求有60種不同顏色的玻璃,每一種顏色都是不同的顏色,每一種都是像素化的圖案,就像一個電腦像素的紋理。自然光從中庭的透明玻璃天花板中流進來,在白天注入能量,並在太陽逐漸消失的時候使它平靜下來。
設計師還在靠近中庭的地方創造了共享空間,鼓勵人們走樓梯,使用橋梁,連接不同的群體。團隊空間裏全部是專門的工作站,並包含了他們自己的會議室和電話亭。為了分離團隊空間,他們創建了兩個開放的協作區域,並通過一堵牆,滿足團隊安全和私密性的需求。
© PDM International



























