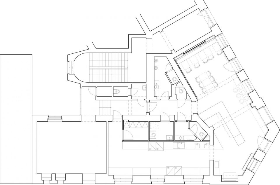
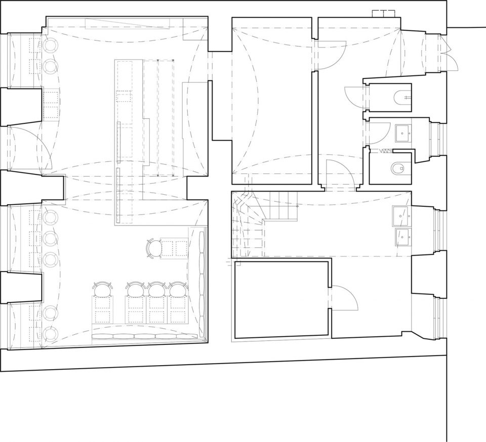
捷克布拉格新開了一家墨西哥餐廳Burrito Loco,它的特色是仙人掌主題。Burrito Loco是一家墨西哥風情連鎖快餐廳,它在布拉格有著悠久的曆史。這家Burrito Loco餐廳由Formafatal工作室設計,仙人掌元素在空間裏以各種各樣的形式出現,如牆麵,藝術裝置和雕塑等。
photos © Jakub Skokan and Martin Tuma / BoysPlayNice
版權聲明:本站所有文章除投稿授權發布外,其他文字內容均為原創,享有著作權保護,未經許可不得以任何形式進行轉載(包括且不限於:媒體、網站、公眾號等)。所有項目照片/設計圖形版權歸原作者所有。本站部分內容源自網絡公開資源或用戶分享,如若侵犯了原作者的合法權益,可聯係我們進行處理。
















