雁舍,顧名思義:大雁的家。一語雙關,也暗指人們的棲息生活的場所。大雁歸巢,遊子回家。大雁歸巢是雁之本能,遊子回家是人之本性。這就是“雁舍”名字的由來。作為傳統湘菜,雁舍餐廳怎麼從厚重的文化中“擺脫出來”?也許擺脫這個詞用的並不恰當,但確實有很多傳統的東西深陷文化的泥潭而不能自拔。湘菜也同樣麵臨著這個問題,怎樣把雁舍的湘菜發揚光大?那就隻有創新,環境設計也是皆同一理,雁舍想要在環境上有所突破那就是要擺脫符號化的設計。
用空間來表達文化,用空間來改變人的生活方式,這才是設計,這才是我們要解決的問題。本案的平麵是一個矩形場地。完美的場地並沒有給設計師帶來設計靈感,越沒有矛盾的空間就越難找到設計的切入點。房子和樹是雁舍的視覺語言,即使找不到設計突破口,也不能用粗暴的視覺手法來解決問題,設計師希望能用空間來表達更深遠的意義。
中國人自古以來就有內斂的性格,炎黃子孫向來是一支勤勞善良的民族,所以從秦朝以來我們不斷地建設萬裏長城來防禦異族的入侵,那麼無論是萬裏長城,還是故宮紫禁城,乃至四合院,空間上都是一種圍合的內向型空間(當然四合院從氣候有防止風沙的作用)。
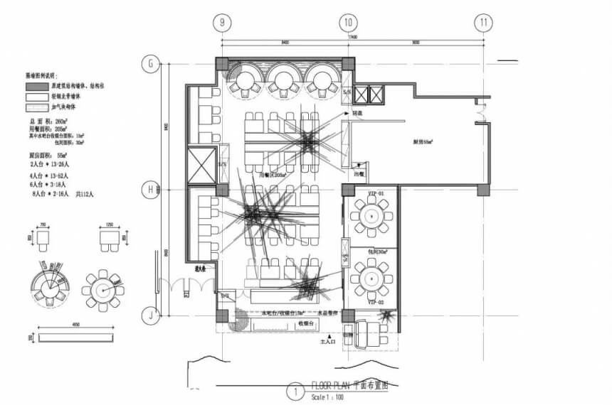
雁舍的場地結合功能正好符合四合院的空間特點。吧台的設計代表倒座房,後麵的三組圓卡座代表正房,左邊的兩組長卡座代表著西廂房,右邊的廚房和兩個包間代表著東廂房。很多的事情都是可遇而不可求,那麼雁舍的空間設計就偏偏遇上老北京四合院,院子中間的幾棵樹便成了空間的點睛之筆。
鳥巢的設計是後加上去的,現在想來有些多餘,很多的事情需要點到為止,如果能給人更對想像的空間豈不更為美好。當你來到雁舍的時候就會被她的味道所融化,不是剁椒魚頭,也不是肉湯泡飯,隻是因為她能夠成為你心靈的棲息之地——雁舍
design © 古魯奇設計































