TIAGO SELECT是一家占地250平方米的餐廳,位於北京時尚區的核心地帶。空間被設想成一個可以發現的秘密巢穴,隱藏在其中的城市亞文化事件隨時可能發生。空間的設計靈感來源於賽博朋克的想象,霓虹燈,金屬反射,彩虹和熒光振動。
tiago select is a 250 square meters restaurant in the core of a fashion district in beijing. studio ramoprimo has conceived the space as a secret den to discover, where hidden urban sub-cultural events may happen at any time. the design is inspired by cyberpunk imaginary, with neon lighting, metal reflection, iridescence, and fluorescent vibrations.
直射的光線穿過鋼波紋天花板,點綴著浮動的霓虹燈標誌,暗示著未來可能的目的地。兩幅由歐洲城市拚裝而成的大型三維雕塑地圖,定義了兩邊的主牆。一個半透明的神秘盒子占據了整個空間,其多孔鋁板表麵,將獨立的房間包圍起來,就像從上方飄來的雨點一樣浪漫。
Straight lighting lines are crossing the steel corrugated ceiling, dotted by floating neon signs suggesting possible future destinations. Two large three-dimensional sculptural maps, made of assembled parts of European cities, are defining the main walls on both sides. A semitransparent mysterious box dominates the space with its surface of perforated aluminium plates, enclosing a detached room with a romantic effect of a lighting rain from above.
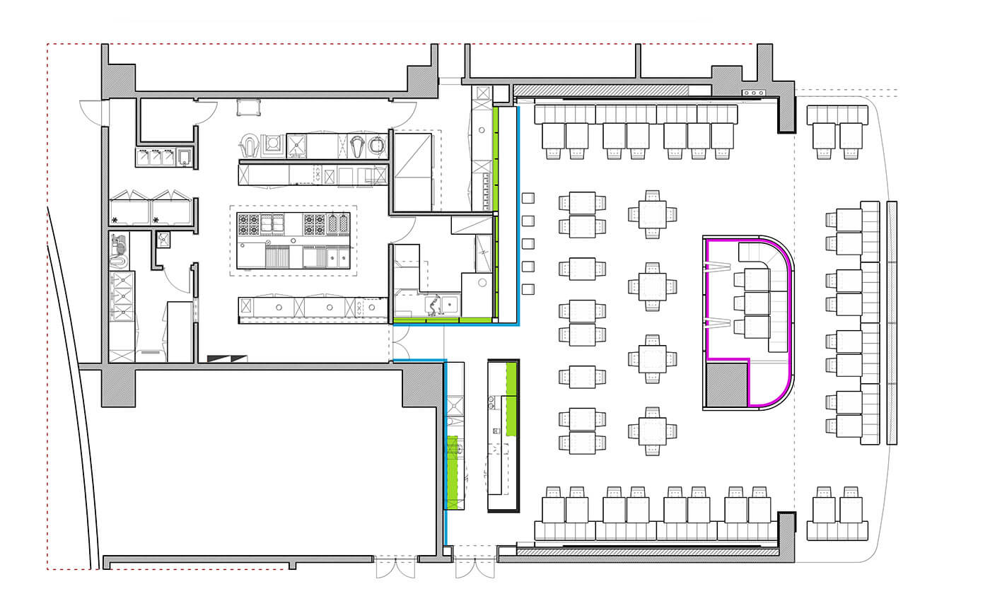
後牆包含了所有的技術空間:它是一個很大的深色的普通方形瓷磚表麵,由氟彩矽灌漿線照亮。發光的丙烯酸線框架薄金屬板架子定義廚房的入口和功能空間的比薩餅區和雞尾酒吧。藝術裝置、照明和家具都是定製的。陽極氧化鈦塗層已應用於鋼椅上,根據彩虹色調創造出充滿活力的不斷變化的反射。
The back wall contains all technical spaces: it is a large an darker surface of regular square tiles enlighten by fluo colored silicon grout lines. Glowing acrylic lines are framing thin metal plate shelves defining the kitchen’s entrance and functional spaces of pizza area and cocktail bar. Art installations, lighting and furniture have all been custom-made. Anodized titanium coating has been applied on steel chairs to create vibrant ever-changing reflections based on a rainbow palette of colors.
完整項目信息
項目名稱:TIAGO SELECT
項目類型:餐飲空間
項目地點:北京市
設計單位:RAMOPRIMO
攝 影:RAMOPRIMO & Zhang Hui

































