FERRO & ASSOC. Architects最近完成了Lucciano’s的旗艦店設計,這是一家手工冰淇淋咖啡館,服務於對手工冰淇淋要求較高的顧客。
FERRO & ASSOC. Architects have recently completed the flagship store of Lucciano’s, an artisan ice cream cafe.
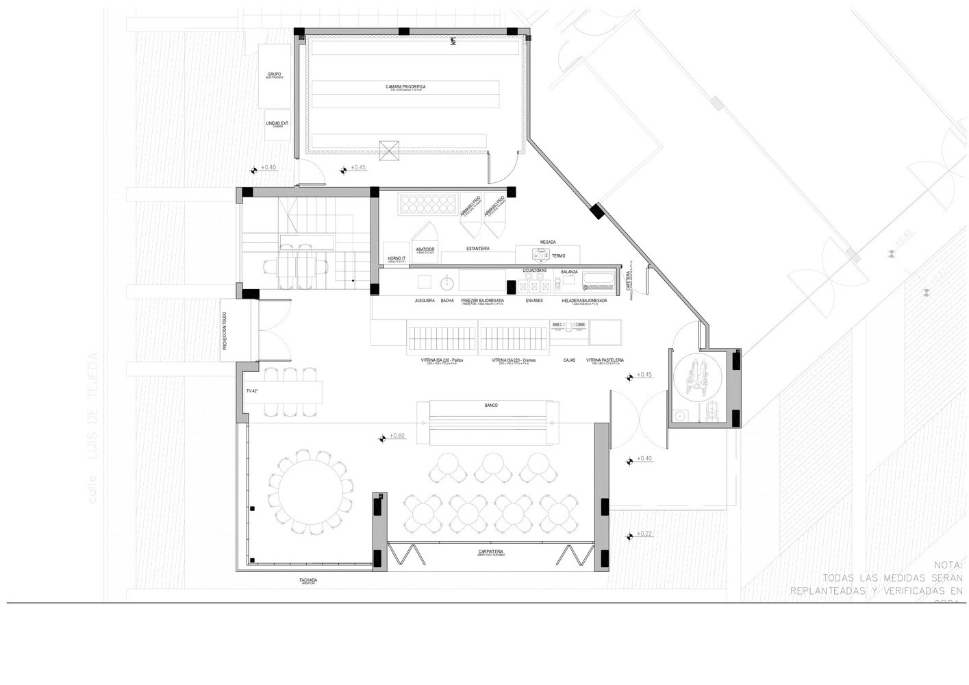
Ferro Assoc.建築工作室在設計中尊重每個商店周圍的環境,在尋找其他商店之間的視覺異質性時增強它,同時保持它們之間的統一性。該工作室在現在這個地點開展了Lucciano’s旗艦店項目的設計,保留了一些元素,例如該地區廣泛使用的Patagonico斑岩材料,入口的門和水泥地板也被保留下來。
The image of the premises, in charge of Ferro Assoc. Architecture Studio has the baseline of the company but with a particular treatment for this location. Because each store is designed respecting its immediate surrounding, enhancing it in the search of a visual heterogeneity between the rest of the stores but maintaining the sense of unity among them. The brand carried out the project in an existing location, where some elements were maintained, such as the porphyry “Patagonico” as it is a material widely used in the área. Access doors and cement floor were also preserved.
在餐廳的外麵,有兩個巨大的鐵鳥籠,無意中,它們成為一個有價值的營銷工具,因為它作為一種有趣的體驗,人們想要在網絡上與他人分享它。建築設計兼收並蓄,在現有建築的空間幹預中,設計師試圖將現代元素與不同年代的風格融合。
On the outside, two iron giant birdcage are there to seat but, unintentionally, they are a valuable marketing tool because as being a fun experience, people want to share it with others in the networks. The architectural design is eclectic, trying to merge modern aspects with styles of different decades in spatial interventions of existing premises.
在材料方麵,分為兩大類:一類是用於所有的項目,以呈現出整個商店的設計外觀;另一類是針對性使用,目的是讓每個地方都成為一個獨特的部分。特別使用了水泥、石頭、木頭、陶瓷、大理石、鐵等材料。
In reference to materials, the resource is to divide them into two large groups: those used in all projects, to consolidate the image of the Company, and those used occasionally with the purpose of making each place a unique piece. This location particularly uses cement, stone, wood, ceramic, marble, iron, etc.
完整項目信息
項目名稱:Lucciano’s冰淇淋旗艦店
項目位置:阿根廷科爾多瓦
項目類型:商業空間/冰淇淋旗艦店
完成時間:2018
項目麵積:224㎡
使用材料:混凝土、石磚、木材、陶瓷、大理石和鐵件
設計團隊:Juan Ignacio Chiessa
設計公司:FERRO & ASSOC.
攝影:Gonzalo Viramonte




































