眾所周知,三裏屯是北京最活躍的商業中心區。 這裏經曆著零售空間的更替浪潮,絡繹不絕的消費者在這裏尋找著層出不窮的潮流熱點。芝作室受到樂純酸奶品牌委托,在三裏屯路和雅秀北路人流熙攘的交叉口設計一家輕食店。這次的設計目標是營造一個鬧中取靜的簡約空間,讓來往的人們在喧囂的商業氛圍中享受一份寧靜。
店鋪位於一幢名為“那裏花園” 的中層建築地麵層的東南轉角。該建築外立麵由一係列白色外凸半圓形體塊造型構成。由於原有外立麵門洞無法移位,芝作室將這一限製轉化為契機,將場地現有的光影模式轉譯成為空間概念。原有基地被視為一個灰色方形體塊,與大樓的圓形標誌分開;而原有門洞被視為體塊間隙,也是光線傳入之處。
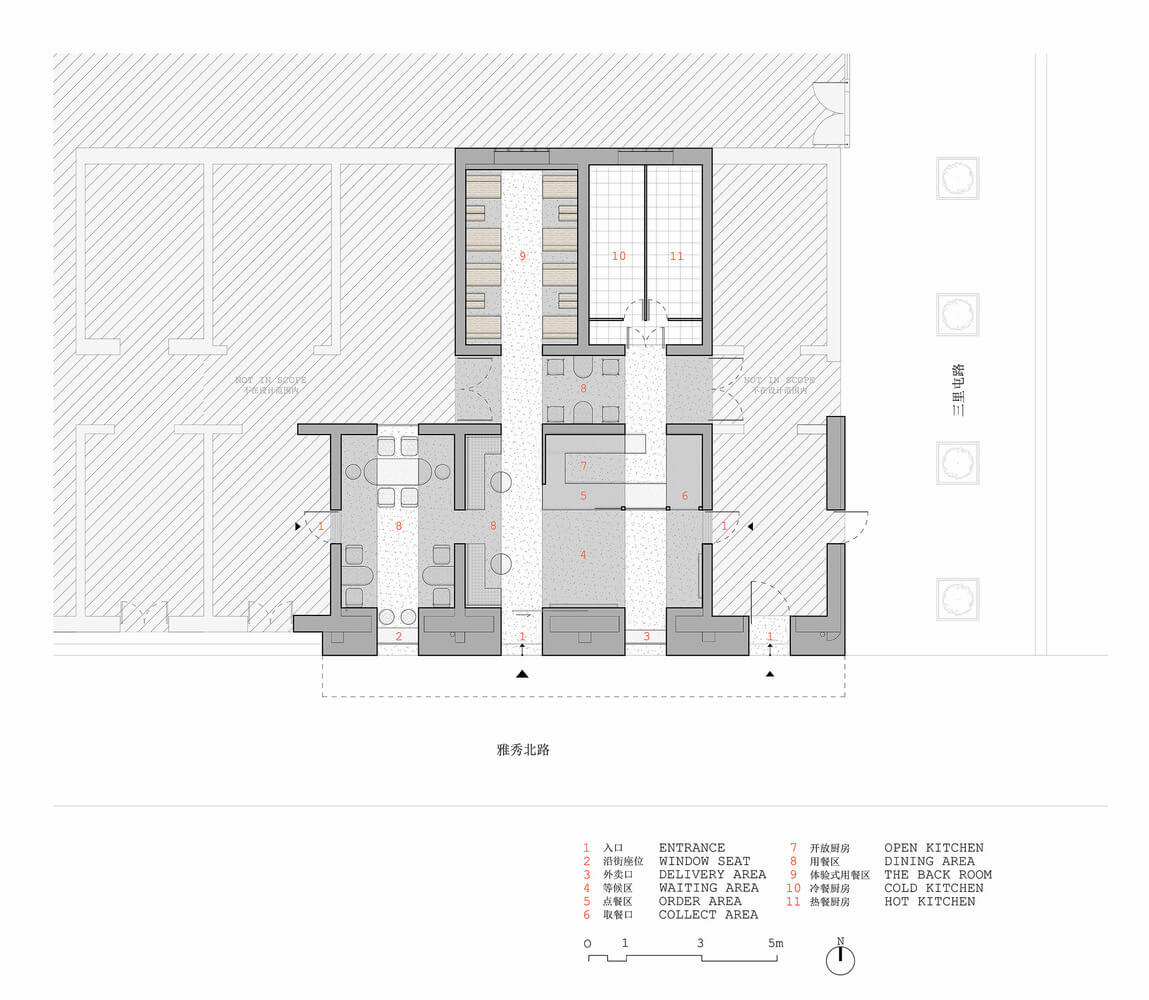
空間設計運用白色材質強調光的路徑,將原本不規則的平麵劃分成井然有序的區域。每一道“間隙”各承擔不同的功能:一組沿街座位,一個店鋪主入口,一個外賣站以及一個通入建築內部的入口;而灰色體塊則承載了吧台,等位,用餐體驗等店鋪基礎功能區。
為了傳達與品牌內核相呼應的“純粹”理念,整個店鋪以內斂的色彩和材料來呈現。“灰色體塊”運用灰色水磨石對外立麵及室內表麵進行包覆的方式體現,而 “光的路徑和間隙”則為白色水磨石地鋪和白色石膏板天花。為了體現 “光線”會穿過物體以及“投射”在牆麵上,空間中的家具和垂直麵也同樣運用了灰白材質分界的效果。
店鋪中設有兩個氛圍不同的休息區,以滿足三裏屯多元的客戶需求。臨近主入口的等候區和用餐區設立了不同的座位形式,營造出一個輕鬆約會的場地;空間盡頭的體驗式用餐區,則利用規整的座位形式創造出靜謐內斂的氣氛,更適合隻身前來的顧客沉浸其間。鏡麵材質被巧妙分布在兩個休息區的不同位置,在視覺上增大了狹小空間的尺度。
在體驗式用餐區,芝作室將鏡麵材質運用在空間的前後,反射效果使白色“間隙”在空間中無限延伸。此外,在前方的鏡顯玻璃後還設置了屏幕,能播放視頻或傳遞信息,使這空間得以更靈活地配合不同的活動。由於缺乏自然光照條件,芝作室在牆麵 ‘引入’ 了一係列光束,在增加照度的同時也回應了空間設計概念。定製木桌椅以朝聖空間中的家具為靈感而設計,為這小房間增添了獨有的儀式感。
芝作室深信任何場地都有其有待挖掘的獨特魅力,通過設計的巧思,打破種種限製達到煥然一新的效果。通過細心體會場地特征,應用建築體塊,挖掘光影關係,芝作室不僅揭示了這個場地所具有的空間潛能,更為品牌創造了別具一格的體驗。
完整項目信息
項目名稱:「樂純」北京三裏屯店
項目位置:北京三裏屯
項目類型:餐飲空間/甜品屋、咖啡館
項目麵積:110㎡
完成時間:2018
設計公司:芝作室
主創設計:陸穎芝
設計團隊:林溢曄、吳正豪、丁怡人、王峰、楊軼超、沈思韻、張雯雯
攝影:CreatAR Images































