twin peaks位於舊金山的Mount sutro開放保護區,受山坡和田園花園的啟發,業主和建築師共同努力,通過開放原分隔的主樓,將其提升為一個現代化的改造項目,目的是在視覺和物理上連接到寬敞的後院。
overlooking the natural elegance of the mount sutro open reserve in san francisco, feldman architecture situates the twin peaks residence. inspired by the sloping hill and bucolic garden, both client and architect worked together to elevate the property into a modern transformation by opening up the original compartmentalized main floor, with the goal of visually and physically connecting it to the spacious rear yard.
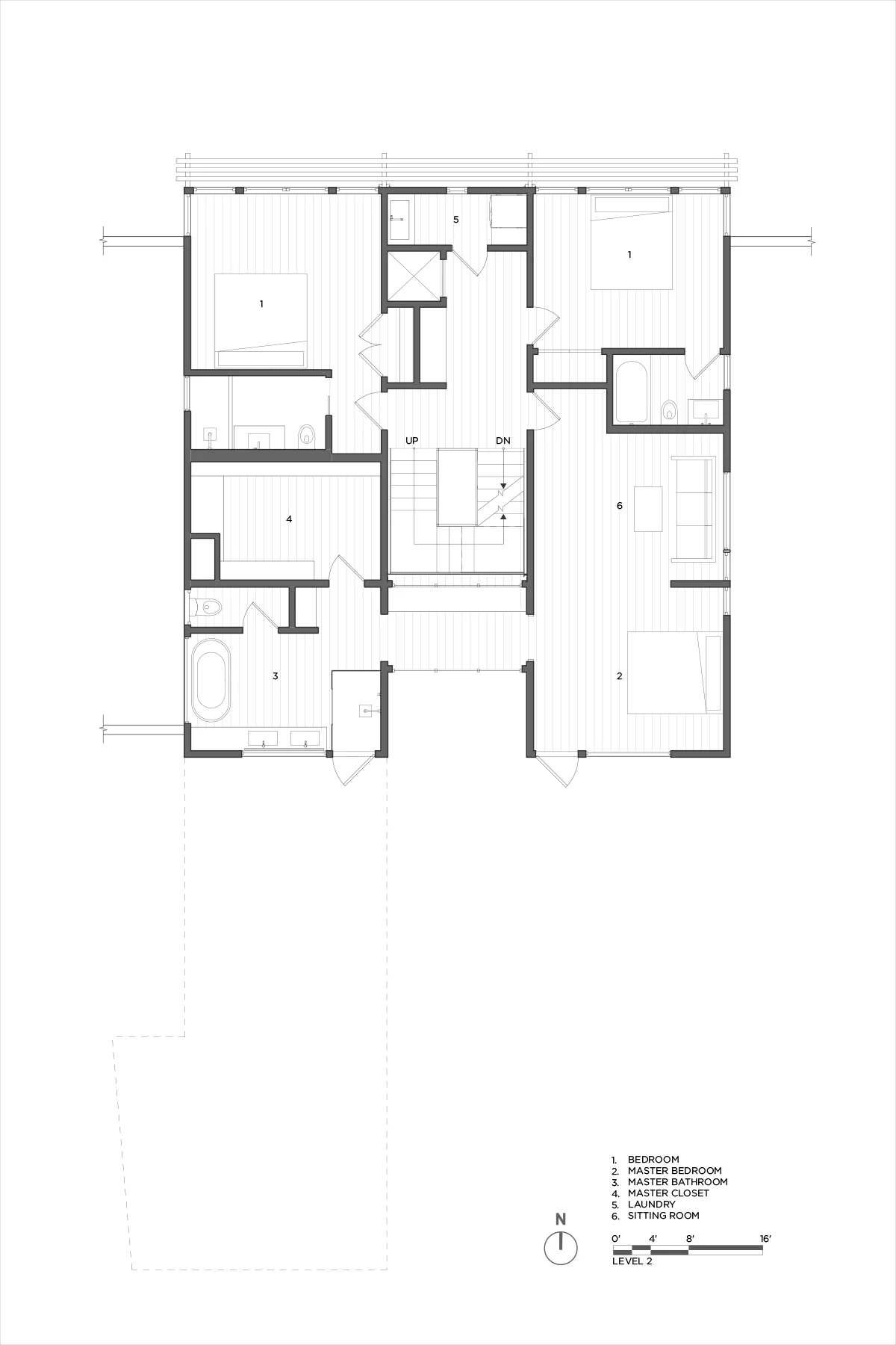
在feldman architecture改造之前,這棟房屋的方向混亂,光線暗淡,體現在連接三層樓的狹窄、蜿蜒的樓梯上。現在,光線充滿了生活區的每一個角落,使它成為一個舒適、方便、美麗的空間。房子的結構基本保持完整,空間有著裸露的橫梁、高高的天花板和日式滑雪小屋式的設計。住宅中新添加的淺色灰泥,和住宅精雕細琢的材料細節完美地結合在一起,增強了小屋的魅力。
before the renovation by feldman architecture, the home was disorienting and dim, manifested in the tight, winding staircase connecting the three floors. now, light fills every corner of the living areas, making it a comfortable, accessible, and a beautiful space. the structure of the house was kept largely intact to celebrate the exposed beams, high ceiling, and japanese ski cabin-esque design. a light greywash was added to draw the dwelling together, as well as highly crafted materials and details to enhance its charm.
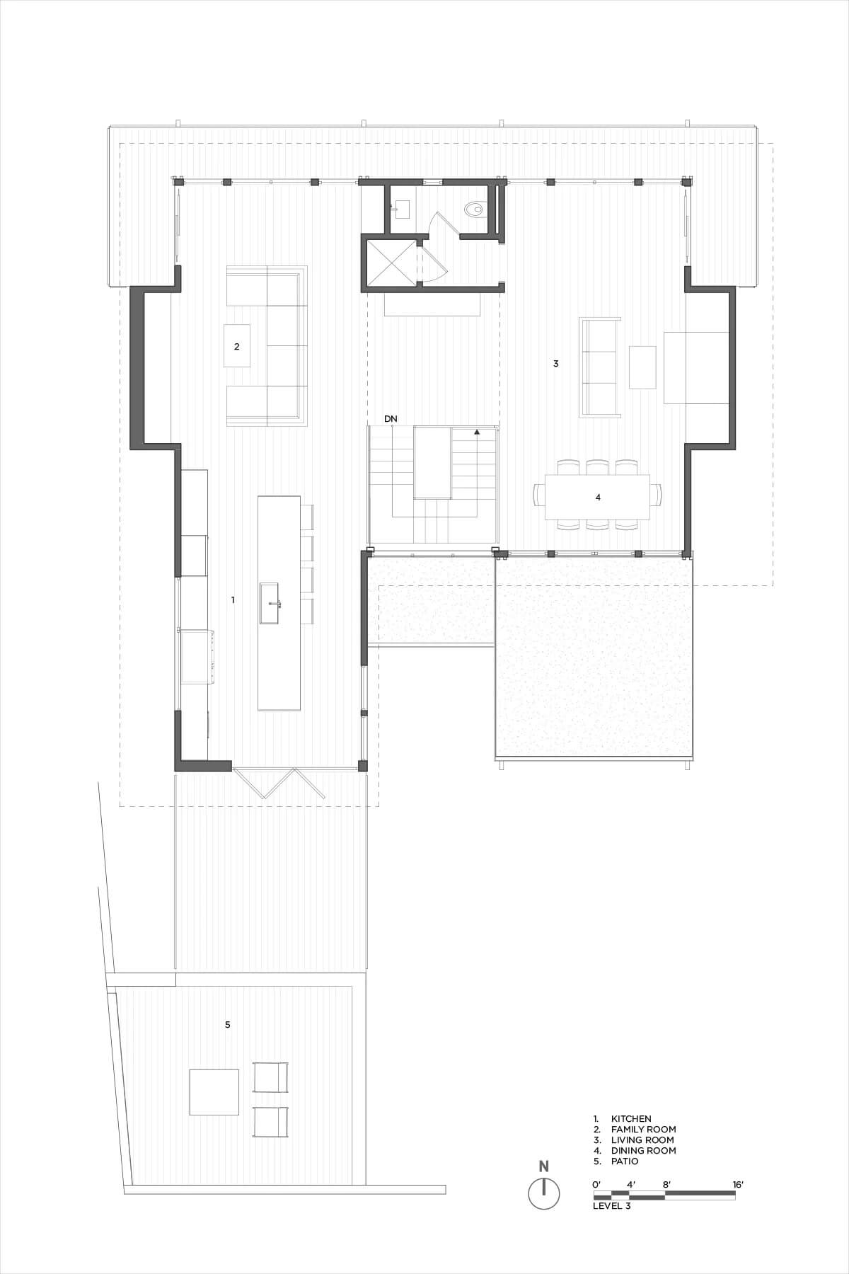
在傾斜的天花板和蝴蝶狀的天窗下有著一個舒適的閱讀角落,可以直接進入一個新的屋頂平台,並可欣賞到金門大橋的景色。主臥室的前麵是一個瑜伽館,可以直接進入後麵的花園,而上層的生活空間很容易欣賞到山坡風景。樓梯層高之間有一個隱私的木屏風,允許光線柔和地進入。當你走上樓梯時,花園的碎片風景通過精致的隔斷吸引著你的目光,整個景觀隱藏在三樓的頂層。
beneath a pitched ceiling and butterfly-like skylights sits a cozy reading nook with direct access to a new roof deck, complete with auspicious views of the golden gate bridge. the master bedroom is preceded by a yoga annex and allows immediate access to the rear garden, while the upper living space flows easily out to the comfortable hillside carrel. running the height of the stairwell is a wood slat screen, acting as a privacy screen that still allows the light to gently filter in. while walking up the stairs, snippets of the garden tease the eyes through the delicate partition, yet the full view is hidden until reaching the top of the third floor.
完整項目信息
項目名稱:twin peaks residence
項目位置:美國舊金山
項目類型:住宅空間
使用材料:木材
設計公司:feldman architects
燈光設計:kim cladas lighting design
景觀設計:ground studio landscape architecture&frank & grossman
結構師:strandberg engineering






















