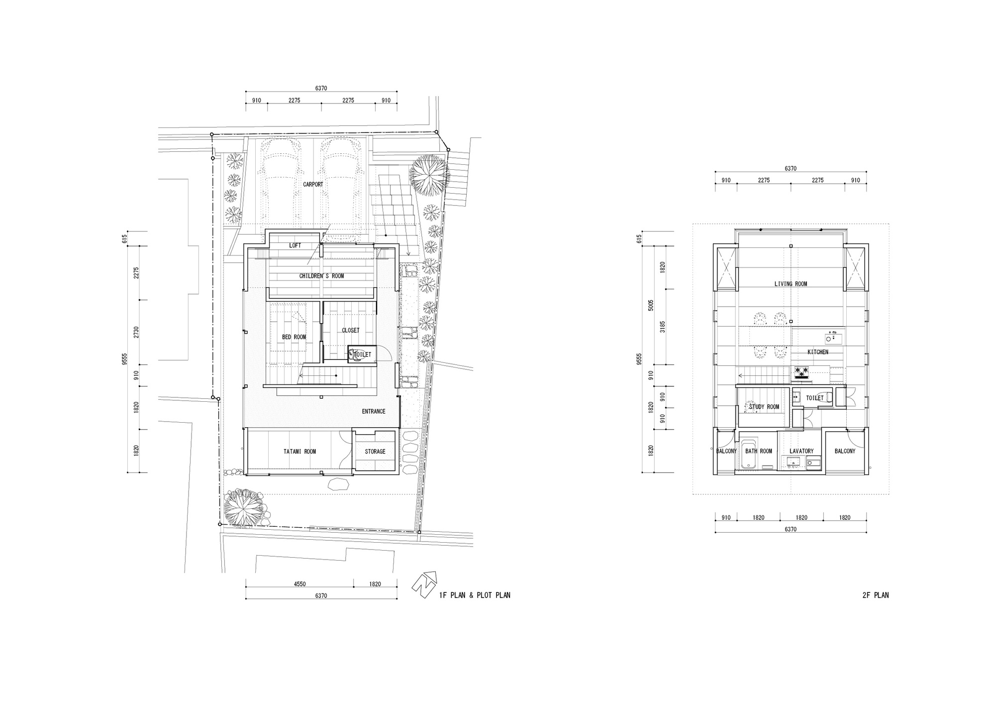
該項目旨在對開發於40年前的小區中的一座住宅進行重建。建築周邊留有很多那個時代的建築,此次新的結構設計在屋頂形式、外牆色彩以及整體形態的其他方麵遵照了舊有房屋形式。觀察舊有房屋後可以發現,應建築退台規定而形成周邊寬為1米的邊緣空間被巧妙地利用為儲藏室或隱藏公用管道或空調機組這類設備的間隙。即便退台有可能會更寬,場地方位使得周邊建築的窗戶時刻不離這片開放空間,使得隱私難以保證。
The architectural program for this project was to rebuild a house in a residential subdivision developed about forty years ago. Many houses from that era remain in the neighborhood today, and this new structure follows their lead in terms of the shape of the roof, color of the exterior walls, and other elements of the overall form. Looking at these older buildings, one notices that the one-meter-wide margin of space around them that is required by setback regulations is typically a simple gap used for storage or to house utility pipes or appliances such as air conditioning units. Even when the setback is wider, the orientation of the properties often means that large windows in neighboring houses look out on these open spaces, making privacy difficult to obtain.
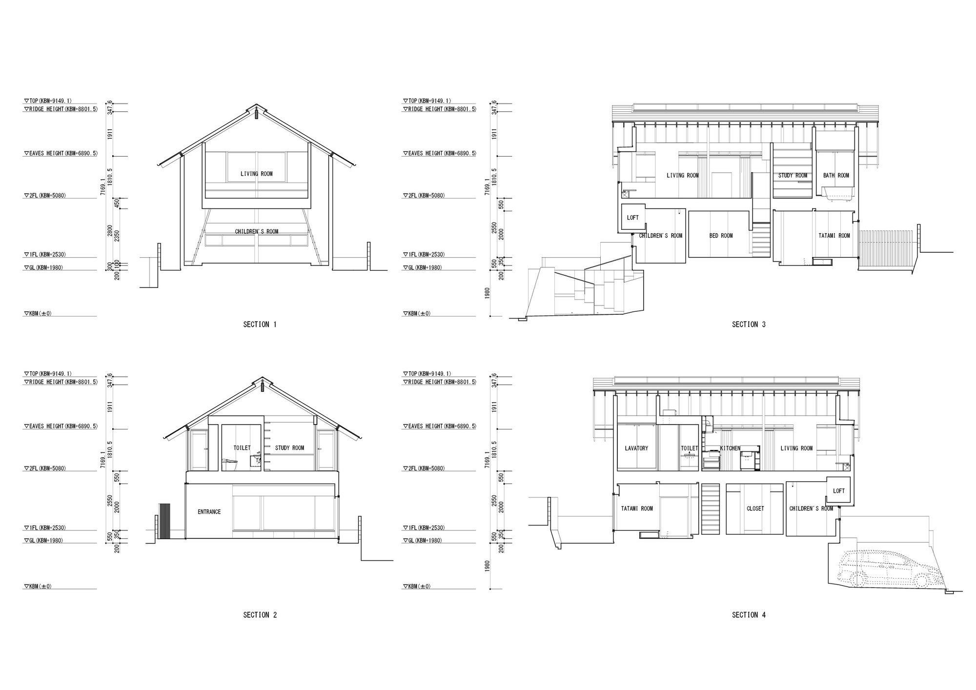
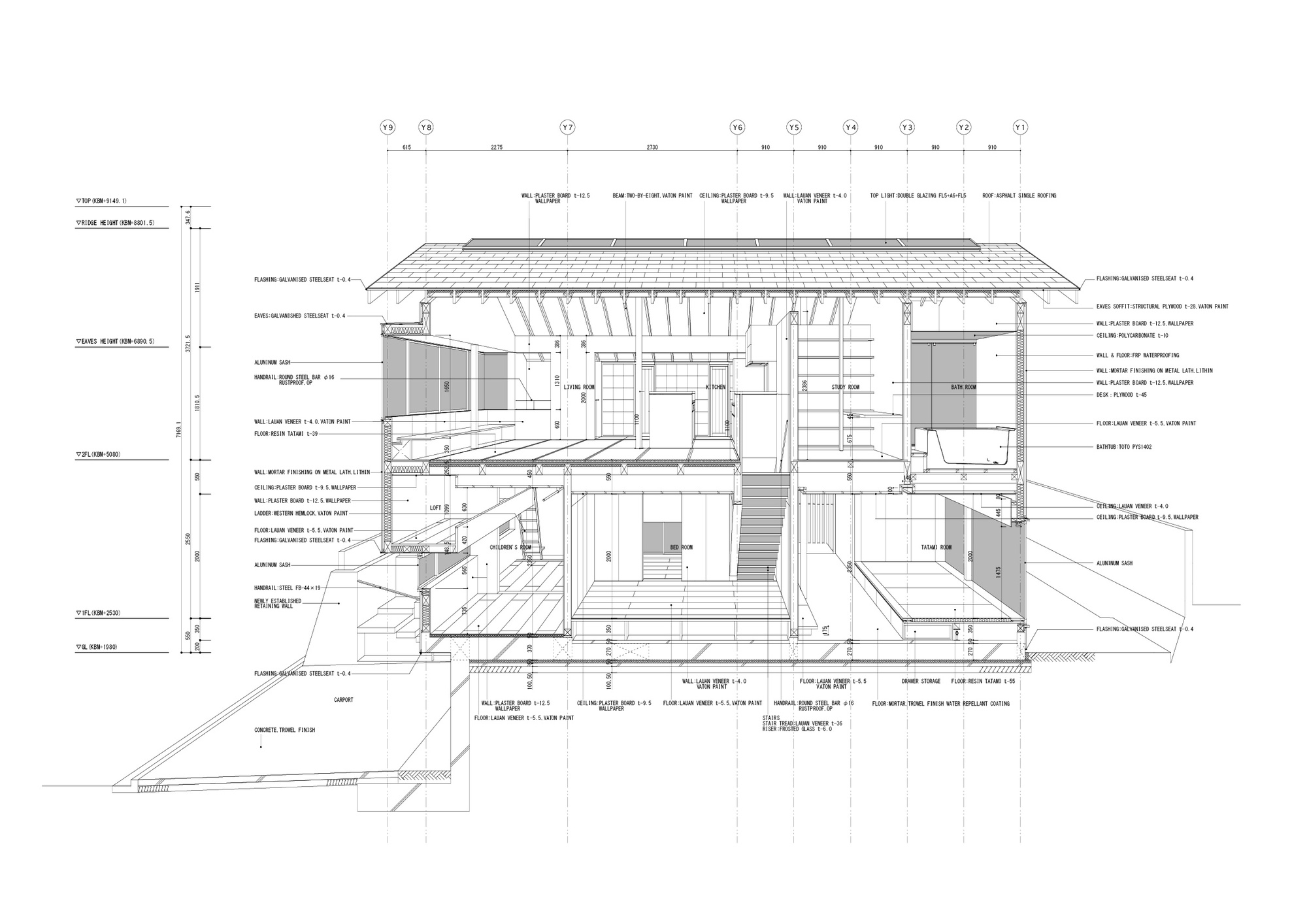
場地較長一邊的地段尤其容易暴露在鄰家視野中。我們對此並沒有對外部間隙進行擴展,而是將建築邊緣帶往退台線,並在外牆內側置入緩衝區域,由此將居住空間帶離周邊場地。在地麵層,緩衝區包括一條混凝土麵入口通道,環繞建築部分周長延伸的它包圍著生活空間。二層緩衝區包括由紙屏風滑門(障子)圍合的走廊,它使得空間在避開外部視線的同時讓光線進入,在與其毗鄰的房屋之間創造一種模糊的分離感。屏風之間部分穿插了可在底部開啟的木門,保留隱私性的同時讓微風吹入室內。
On this property, the longer sides of the lot were particularly exposed to neighboring houses. We responded not by widening the exterior gap but instead by bringing the edges of the building right up to the setback lines and including a buffer zone on the inner side of the exterior walls, thus distancing the living spaces from neighboring properties. On the ground level, the buffer zone consists of a concrete-floored entryway extended around part of the perimeter so that it enwraps the living spaces. The buffer zone on the upper level consists of a veranda enclosed by sliding paper screens (shoji) that shield the space from view but still allow light to pass through, creating an ambiguous sense of separation from the adjacent houses. In several places, the screens are interrupted by wooden doors that push out at the bottom, letting in breezes while maintaining privacy.
雖然與周邊社區保持關聯對於房屋建設非常重要,但隱私也是必需的。在這個項目中,緩衝區作為一個設計點同時擁有疏遠和關聯的作用;通過將其內置,我們希望能夠創造日常生活必需之餘的空間。同時,核心生活空間由附帶貫穿其長度的天窗的大屋頂所覆蓋。這些天光為整個房屋帶來額外的陽光,包括主臥、廚房、書房甚至是浴室。
While relationships with the surrounding community are important in housing developments, privacy is also essential. In this project, the buffer zones serve as that point of distancing and connection; by locating them inside, it was our intention to create a surplus zone beyond the areas essential for daily life. Meanwhile, the core living spaces are covered by a single large roof with skylights running all along its length. These skylights admit an even sunlight to the entire house, including the main room, kitchen, study, and even the bathrooms.
完整項目信息
項目名稱:House in Takatsuki
項目位置:日本高槻市
項目類型:住宅空間/建築改造
完成時間:2018
項目麵積:124.01平方米
設計公司:Shogo ARATANI Architect & Associates
攝影:Shigeo Ogawa































