在斯德哥爾摩Gävlegatan18的簡樸建築後麵,一個神秘的環境開啟了。右邊是一座大型建築,有許多小窗戶,正前方是一座彎曲的大樓。為什麼有這麼多小窗戶?為什麼會有這種高貴的彎曲?所有這些現在都是Nobis新酒店Blique的一部分。這座麵朝街道的樸素建築,由Sigurd Lewerentz設計,他是20世紀瑞典具有代表性的人物。
Behind the sober building at Gävlegatan 18 in Stockholm, a mystical environment opens up. To the right stands a large building with many small windows and straight ahead is a bent one. Why all these little windows? And why this noble bend? All of it is now part of Nobis’s new hotel, Blique. The sober building facing the street, was designed by Sigurd Lewerentz, the most ingenious individual of the twentieth century in Sweden.
這些建築物於1930年至31年為瑞典飛利浦公司建造。麵向街道的那個是辦公室,而朝向庭院的是倉庫。這解釋了小窗戶,但還有更多的謎團。
The buildings were constructed in 1930–31 for the Philips Corporation of Sweden. The one facing the street was for offices and the one toward the courtyard a warehouse. That explains the small windows, but there are more mysteries here to be solved.
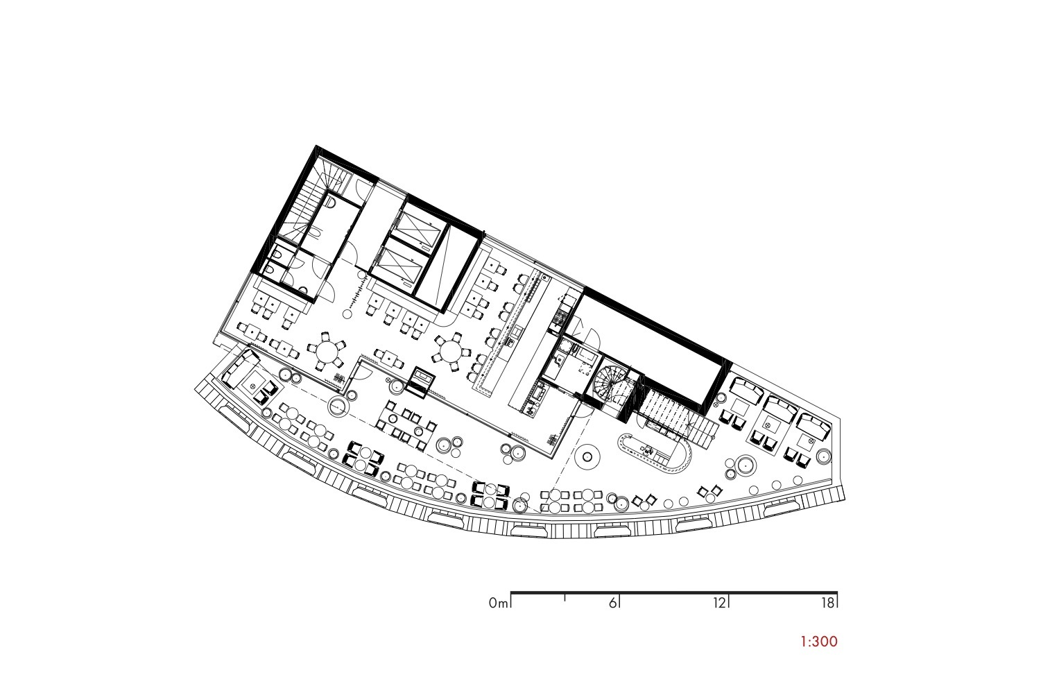
這座彎曲的建築是1990年按照Alenius Silfverhielm Ahlund的設計建造的。它高貴的彎曲造型與文藝複興晚期羅馬宮殿相呼應,這是一個複雜的建築。現在這個綜合體已經被改造成酒店,還增加了幾層。這個附加部分是由Sweco設計的,而Wingardhs負責將整個綜合體改造成一個城市酒店。
The bent building was constructed in 1990 according to designs by Alenius Silfverhielm Åhlund. Its noble bend is an echo of the Roman palaces of the late Renaissance, a complex architecture that the theory-conscious architects here gave a Nordic interpretation. Now that the complex has been converted into a hotel, a couple more floors have been added. This addition was designed by Sweco, while Wingårdhs was responsible for the metamorphosis of the complex as a whole to become a hotel.
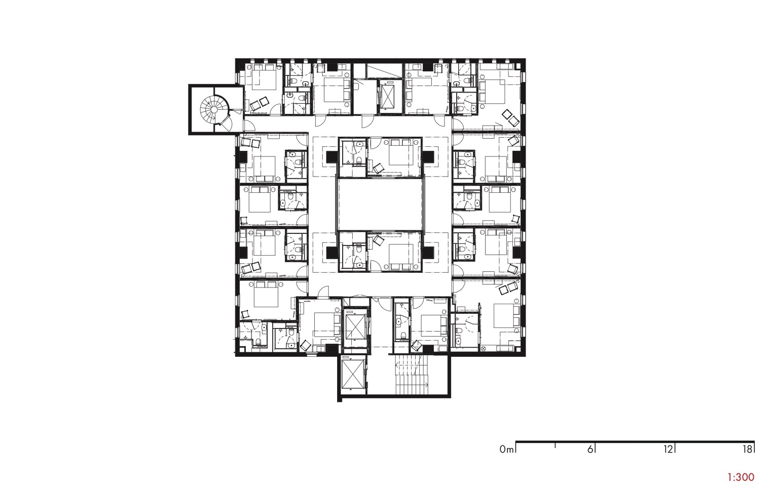
辦公樓現在是酒店的活動和會議設施場所,而酒店容納了249間客房。他們的設計基於Lewerentz的方法。團隊保留了原來的混凝土結構,大部分額外的元素都是由拋光混凝土或鋼材製成的,簡約的材料使酒店為顧客提供了愉快的體驗。
The office building is now the hotel’s event and conference facility, while the buildings on the courtyard hold its 249 guest rooms. Their design is based on Lewerentz’s no-nonsense approach. We’ve left the concrete essentially just as we found it, and most of the additional elements are made of polished concrete or steel. The idea is that the straightforward materials make a night in the hotel an appropriately anonymous and pleasantly discreet experience.
完整項目信息
項目名稱:Bobque Hotel by Nobis
項目位置:瑞典斯德哥爾摩
項目類型:酒店空間/建築改造
完成時間:2019
項目麵積:16000平方米
設計公司:Wingardh arkitektkontor
設計團隊:Kajsa Johanson, Disa Reuterswärd
攝影:Bruno Ehrs & André Pihl































