一個整體混凝土大門框架支撐著一個酒吧和咖啡館,由Portal 92設計,從這裏可以俯瞰印度莫拉達巴德一個土石色座位的凸起平台。這就是“鄉村咖啡館”(Village Cafe),空間分為兩層,為當地人提供了室內和室外用餐區,用餐區圍繞著一條蜿蜒曲折、迷宮般的路線布置。
A frame of monolithic concrete portals supports a bar and cafe, designed by Portal 92, which overlooks a raised terrace of terracotta-coloured seating in Moradabad, India.Called The Village Cafe, the spaces are split across two levels, providing locals with both indoor and outdoor areas to eat arranged around a winding, maze-like route.
該項目將各種各樣的空間條件和材料壓縮到一個相對較小的空間中,旨在喚起人們在印度村莊的感覺。New Delhi工作室說:“當我們從客戶那裏得知咖啡館的名字時,這些問題突然浮出水麵。我們的目的是設計一個空間,該空間代表了當今’城市印第安人’對一個村莊的清晰記憶,在一條懷舊的小巷裏尋找飲料。”
Squeezing a wide variety of spatial conditions and materials into a relatively small space, the project was designed to evoke the feeling of being in an Indian village.”When we received the proposed name for the cafe from our client, these questions suddenly came to light,” said the New Delhi studio.”The intent became to design a space which represents a lucid memory of a village for today’s ‘urban Indian’, looking for a drink down nostalgic lane.”
座椅簇位於兩個樓層之間,通過樓梯相連,而室內座位區的混凝土和玻璃形式則將其忽略。室外的桌子和攤位被藏在矮牆或種植著當地樹葉的花槽後麵,與室內酒吧相鄰的是一個彎曲的頂棚,遮蔽了室外的服務區域。各種運動模式的可能性給人一種常居的錯覺,常客在這裏找到了自己的道路,很少有新遊客走這條路。
Clusters of seating sit across two levels, connected by a staircase and overlooked by the concrete and glass form of the indoor seating area.The outdoor tables and booths sit tucked behind low walls or planters filled with local foliage, and adjacent to the indoor bar a curved canopy shelters an outdoor serving area.”The possibility of various movement patters gives the illusion of an intimate organic settlement wherein regulars find their own path, seldom taken by new visitors,” described the studio.
在室內酒吧的大型混凝土入口之間是一塊玻璃板,這些玻璃板延伸到覆蓋牆壁和屋頂,使酒吧充滿了自然光線。在內部,裸露的混凝土和白色灰泥創造了一個簡單的開放空間與室外露台的活力形成對比,定製的懸掛燈具由木頭雕刻而成。
Between the large concrete portals of the indoor bar are sheets of glazing which extend to cover both the walls and the roof, filling the bar with light.Inside, exposed concrete and white plaster create a simple, open space that contrasts the vibrancy of the terrace outside, with custom hanging light fixings carved from wood.
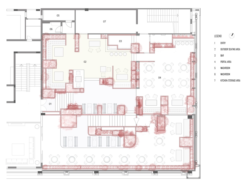
∇ 平麵圖 plan
∇ 剖立麵 sectional elevation
∇ 軸測圖 axonometric
∇ 鳥瞰圖 bird’s eye view
完整項目信息
項目名稱:Village Cafe
項目位置:印度莫拉達巴德
項目類型:餐飲空間/餐飲建築
完成時間:2019
項目麵積:430平方米
設計公司:Portal 92
設計團隊:Sagar Goyal, Aanchal Sawhney, Praneet Singh, Varsha Rath, Astha Verma





























