高密度
高速度和高密度已成了地處亞熱地帶的南中國城市深圳的代名詞。這座沿著珠江口出海口東側濱海帶狀規劃的超級城市中的人口和建築密度依然與日俱增,超高層建築中的居住和工作已成為這座城市的日常。城市裏的休閑、甚至教育都被帶進高空之中。
∇ 水平的高密度策略
紅嶺實驗小學及其周邊城市的所在地原本是福田區西北部的一座名為安托山的小山。這座小山在城市中廣為人知是因為它供給了大量用於城市填海擴張的花崗岩土石方,以至於山體被基本削平,僅剩在小學西側的一座孤獨的小山包。其餘場地在采石行動逐步退出後被平整為城市開發用地。
∇ 安托山遺存的山包和小學新校園概念
紅嶺實驗小學的建設用地約100米見方,原規劃24班小學,後因學位缺口巨大而增容至36班。現建築麵積約為原規劃的兩倍,建築容積率超過3.0。加上用地東南角基礎對地鐵線路的避讓、道路退縮以及規範上對日照間距(雖然這在亞熱帶氣候的南方常被質疑,但到目前為止仍是強製性的要求)的規定,使得建築設計麵臨諸多空間上的挑戰。
垂直機製
因此,校園垂直向度的策略變得至關重要。超過24米的高層校舍在深圳小學建築中已經被廣泛采用,但相應的副作用是垂直方向的交通過多以及樓梯間需要被封閉和增加前室而阻隔了小學生們的交往。建築師在紅嶺實驗小學的設計中努力把建築總高控製在24米以下,以創造水平交往和在建築/景觀空間上回應對兒童的身體和心理特點。
∇ 地景公園之上的山穀庭院
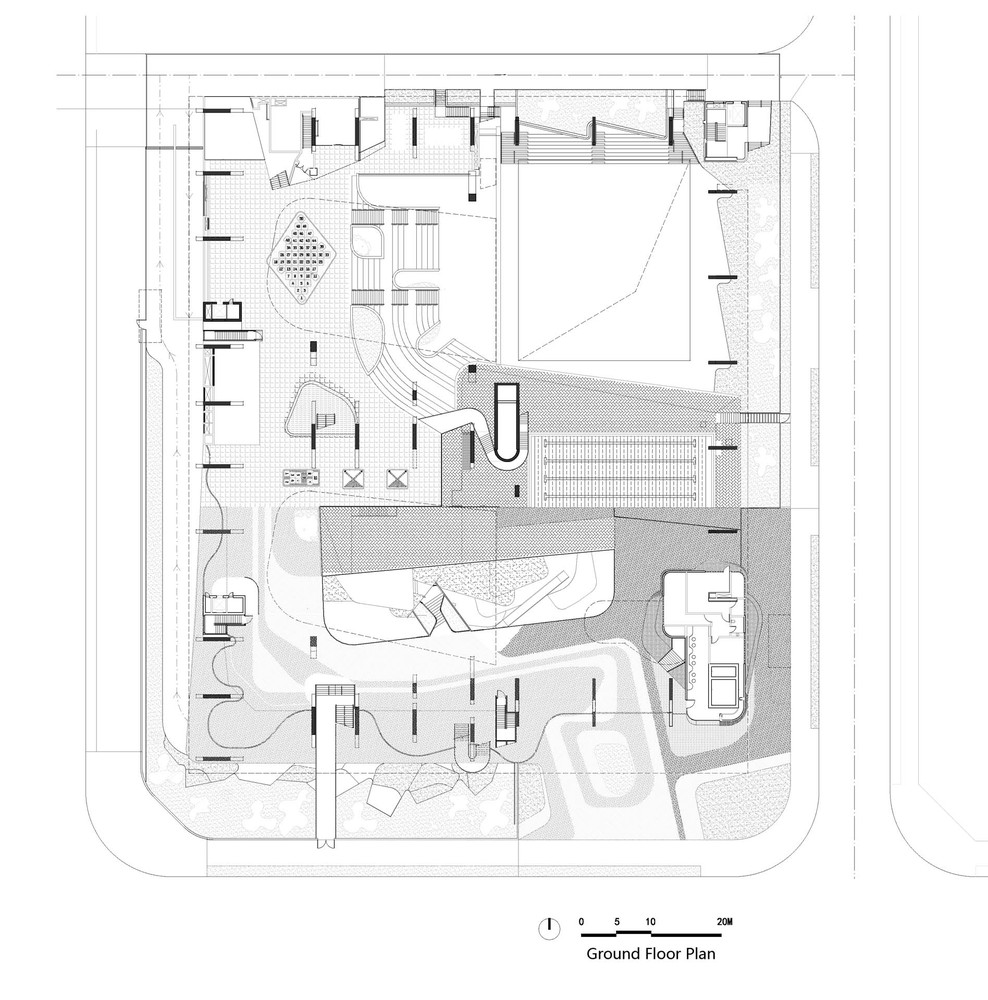
教學建築幾乎滿鋪可以建設的用地,建築分為東西高度不同的兩個半區,平麵上以兩個鏡像的E字形連接。西半區利用學習單元之間所必須的間距創造出兩個曲線形邊界的“山穀”庭院。庭院下沉至地下一層,結合由道路退縮距離中取得的邊坡綠化,為地下一層的文體設施和餐廳空間爭取充足的采光和自然通風。
∇ 首層地景生成
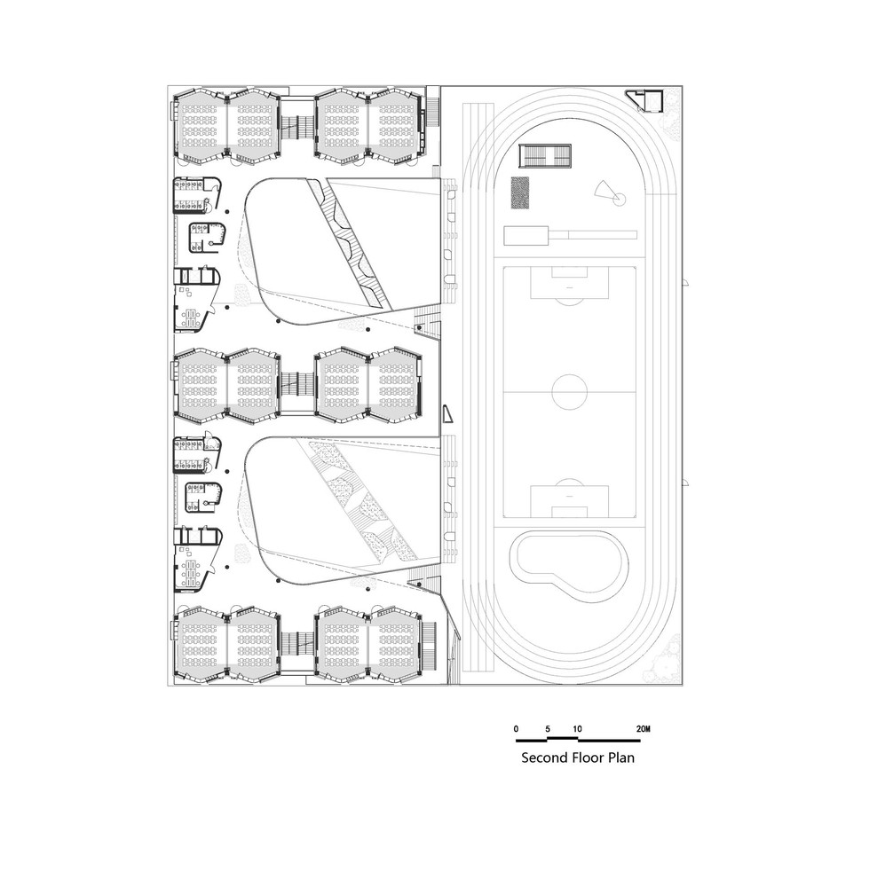
下沉庭院通過緩坡和露天階梯劇場與架空且自然起伏的首層地麵連接成為一個整體的地景兒童樂園。200米環形跑道和運動場被置於建築東半區三層屋麵,與西側主教學建築的三層平麵相連,便於在二、三、四樓上課的小學生們課間到運動區域活動。
∇ 首層開放地景公園
運動場下方中部是可容納300人的小禮堂,懸掛於鑲嵌在地景樂園中的半戶外泳池。主教學建築的四、五層分別為課外教室和教師辦公室,而天麵屋頂是學校的園藝農場。
單元組織
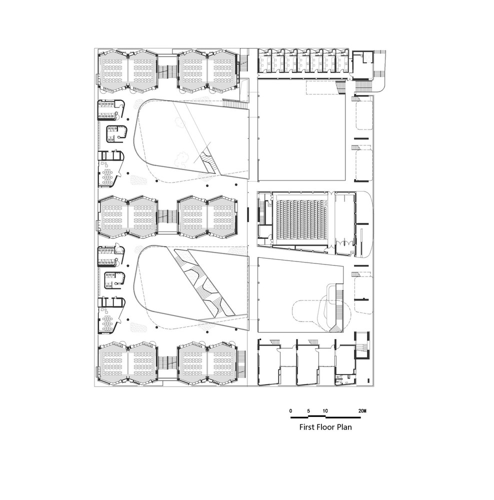
學習單元——傳統上稱為課室,是小學生們學習和交往基本空間細胞單元。建築師針對深圳所在的亞熱帶氣候在水平的E字形板式樓層平麵上構想了成對組合的鼓形平麵的教學單元,避免課室過長的連排阻隔自然通風。每層12間課室分3列共6對布置。每個單元對組合可以通過開閉連接部的靈活隔斷以滿足合班和分班等不同空間需要。
∇ E形教學樓層
鼓形平麵展現出比傳統矩形學習單元更大的靈活性與自由度,更有利於單元課室裏麵的多樣化的教學模式。課室經過連接後產生的富有韻律的折曲線與各層樓板在內庭院一側的自由曲線間形成的線性活動場地,為小朋友們課間提供了一個富有活力的半戶外活動場地。
建築師利用了場地北高南低的條件讓每層的三排課室從南往北各有一米的高差,在E形平板上產生了爬升的地景式行進體驗。最終,兩個“山穀”庭院中各有兩道連接庭院兩側不同樓層的階梯式花園廊橋,在“山穀”的上空懸置了一份獨特的觀賞和遊戲體驗。
∇ 成對的鼓形學習單元為互動式混合式教學提供多種可能性
“山穀”庭院、上下錯動的水平層板、疏鬆的細胞組織以及有機的綠化植入係統均是項目中回應高密度和亞熱帶的南方氣候的建造策略。而更為重要的是,建築師希望通過紅嶺實驗小學的建造過程和結果進一步探索高速發展之後的高密度城市裏公共性設施的全新空間範式。
∇ 總平麵圖
∇ 首層平麵圖
∇ 二層平麵圖
∇ 三層平麵圖
∇ 四、五層平麵圖
∇ 剖麵圖
主要項目信息
項目名稱:紅嶺實驗小學
建築師:源計劃建築師事務所 O-office Architects
地址:深圳市福田區僑香四道與安托山二路交彙處東北側
項目年份:2017-2019
建築總麵積:33721平方米
高度:24米
主持建築師:何健翔,蔣瀅
項目建築師:董京宇,陳曉霖
設計團隊:吳一飛,張婉怡,王玥,黃城強,曾維,何文康,蔡樂歡,彭偉森,何振中
現場設計代表:陳曉霖
現場工程管理:深圳市萬科房地產有限公司(代建)-趙偲翼,王川,黃鑫
結構顧問:廣州容柏生建築結構設計事務所
結構機電設計:申都設計集團有限公司深圳分公司
其他顧問單位:廣州諾科建築幕牆技術有限公司(幕牆設計),廣州尚點園林景觀設計有限公司(景觀植物),廣州哲外藝術設計(TheWhy art x design)有限公司(標識設計),深圳市光藝規劃設計有限公司(照明設計),深圳千典建築與工程設計顧問有限公司(結構超限顧問)
業主:深圳市福田區建工署
攝影師:張超,吳嗣銘,黃城強





















































