全球設計風向感謝來自 平介設計 的民宿項目案例分享:
項目位於江蘇省南京市江寧區,距離江寧區中心約11.7公裏,四麵農田,前後兩處水塘,亦可遙望見北方連綿起伏的群山,一派田園風光。業主希望利用廢棄的屋舍擴建民宿,以期在城市邊緣打造一處隱歸田園的居所,樸素地再現田園牧歌,又不失對高品質居住環境的追求,讓久居城市的人群在自然景觀中得到心靈的釋放。
The project is located in Jiangning District, Nanjing City, Jiangsu Province, about 11.7 kilometers from the center ofJiangningDistrict, surrounded by farmland. There are two ponds in front and behind the project, you can also see the rolling mountains in the north, and enjoy the pastoral scenery.The owners hope to use the abandoned houses to expand the boutique hotel, so as to create an idyllic residence on the edge of the city, to simply reproduce the idyllic lifestyle, without losing the pursuit of high-quality living environment, so that people who have lived in the city for a long time can get spiritual release in the natural landscape.
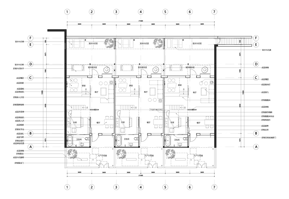
原場地由一個開間21.6m,進深8.2m的房舍和前後兩個院落構成,設計將原始建築平麵於東西向等分,保留原有門窗、結構梁,形成三個相對獨立的居住單元,保證了各自的獨立私密性,運營方麵也可作分開出租。
The original site is composed of a room of 21.6m long and 8.2m wide, with two front and rear courtyards. The design divides the original building plan equally from east to west, retains the original doors, windows and structural beams, and forms three relatively independent living units, ensuring their independence and privacy. Therefore, they can be rented separately in operation.
原始建築5.3m的層高為閣樓的打造提供了一個契機,設計得以超越常規套房模式的獨有客房布局,形成三種不同高度的空間平台:一層空間、過渡空間(閱讀區)和閣樓空間,極大地豐富了豎向上的空間體驗,隨著空間標高的增加,私密性逐步增強。每個套間麵向的是一個親密的小團體,因此我們希望室內的空間為人與人的交流互動創造平台與條件。
The 5.3m story height of the original building provided an opportunity for the creation of the attic, so that the design is able to go beyond the conventional suite pattern to have a unique room layout, which forms three spatial platforms at different heights: ground floorspace, transitional space (reading area) and the attic space. It greatly enriches the vertical space on experience. With the increase of space elevation, privacy is gradually enhanced.Each suite is for an intimate group, and we hope to create a platform and conditions for interpersonal interaction in this indoor space.
∇ 立體空間體係,Three-dimensional space system

我們試圖構建空間的延續性和整體性,以打破傳統室內“房間”限製的壁壘。建築內部沒有一處完全封閉的功能性空間,“似斷非斷”格擋設計代替了“門”:從一層就餐區透過衣架可若隱若現地窺探到臥室;臥室與閱讀區通過的原始的樹幹木欄間隔限定空間的同時又保持了視線一定程度上的通透性;榻榻米式的茶藝區與客廳空間得以相互借景。
We tried to build the continuity and integrity of the space to break down the barriers of traditional indoor “room” restrictions.There is no fully enclosed functional space inside the building. Instead of the “doors”, “not totally blocked” partition is designed: the bedroom can be glimpsed through the clothes standin the dining area on the first floor; the bedroom and the reading area are separated by the original tree trunks to define the space while maintaining a certain degree of transparency of sight; the tatami style tea art area and sitting room can share scenery mutually.
閣樓臥室東西向的界麵上試圖營造“戶外”的狀態,帳篷自然露營在田野上的感覺,可以想見皓月當空,與君同坐帳篷中,在可俯瞰四周,可從天窗瞭望星空,安然閑適。
On the east-west interface of the attic bedroom,we tried to create an “outdoor” state. The tent naturally camps in the field. You can imagineseeing the bright moon in the sky, sitting with your lover in the tent, overlooking the surrounding, and looking at the stars from the skylight at ease.
外部景觀平台通過控製庭院之間隔斷的開合,實現“私密休憩”與“開放聚會”之間兩種空間模式的自由轉換,以實現多樣化空間需求,滿足不同人數租客。
By controlling the opening and closing of the partition between the courtyards, the external landscape platform realizes the free transformation of the two space modes of “private rest” and “open party”, so as to realize the needsfor diversified space anddifferent amount of tenants.
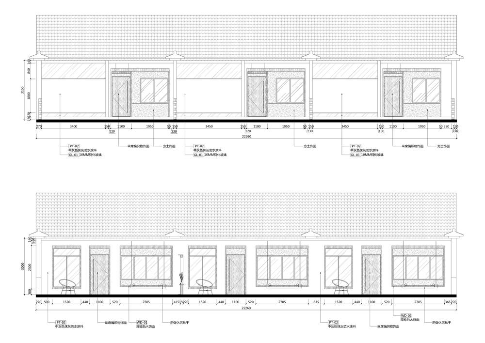
材料與鄉野元素運用:入戶秋千、繩垂掛下的沙發吊床是心歸田園的悸動;質感斑駁的淺灰色藝術牆漆結合古樸的老榆木裝飾,餐桌區頂部紗幔自木架懸掛來,整體透出如置身鄉間的野趣,飄渺悠閑,古樸靜謐。用樸素的材料組合打造出了素雅且極具辨識度空間。
Application of materials and rural elements: the swing at the entrance, the sofa hammock hanging by the rope represent the desire of returning to the countryside; the light gray art wall paint with mottled texture matches the old elm wood decoration, gauze curtain of the coping in the mensal area is hanged from wooden frame, the whole building gives the rustic charmlike being in the countryside, ethereal and leisured, simple and quiet.Simplematerials were used to create an elegant and very recognizable space.
室外景觀平台也延續木門的肌理,青磚鋪地,亦用作鏤空圍牆,頂部布滿蓑草的涼亭和竹木編織的茶座,可遊可憩,這時候再遠眺遠方的山、村落的嫋嫋炊煙和腳下的水,正應了一句詩:
The outdoor landscape platform also continues the texture of the wooden door, and the black bricks are usedto pave the floor and to build the hollow wall. The pavilion covered with Chinese alpine rush on the top and the tea seat woven with bamboo can be used for travel and rest. At this time, we can look out into the distance to the faraway mountains, wisps of smoke rose continuously from the village chimneys and the water under our feet, which just corresponds the poem:
暫離城鎮居鄉野,屋外炊煙懸半溝。是處臨溪接翠嶺,此身喜靜羨清幽。
Temporarily leave the town for the countryside, outside cooking smoke hanging half ditch. Being in the clean rivers and green mountains,I enjoy this quietnessand beauty.
入口處做挑簷處理,呼應原建築的徽派簷口,一上一下形成韻律感,入口挑簷打破單調缺乏變化的立麵的同時,為遊客提供了標識及引導功能。結合外嵌的浴室空間,正好為入口構造了一個內凹的灰空間,保證了良好的隱蔽性。
The eaves at the entrance echo the Hui-style cornices of the original building, forming a sense of rhythm from top to bottom. The eaves at the entrance break through the monotonous and lack of changes in the facade, at the same time, providing visitors with signs and guiding functions.Combined with the built-in bathroom space, a concave grey space is constructed for the entrance to ensure good concealment.
踏青石板路而來,叩開木門,在原木青磚的古樸世界中品味素雅和野趣的同時又能享受鄉間貼近自然的生活與居住狀態。
Step onto the black brisk road, knock open the wooden door, savor simple but elegant and rustic charmin the primitive world of logs and black bricks, in the meantime, enjoy the rural life and live condition that close to nature.
完整項目信息
項目名稱:泊舍
設計方:平介設計
公司網站:parallect-design.com
聯係郵箱:di.huang@parallect-design.com
項目設計&完成年份:2019
主創及設計團隊:主創:黃迪 團隊:孫雪怡,陳雪琦,楊楠
項目地址:南京,江蘇
建築麵積:300㎡
攝影版權:姚傑奇
客戶:慢姑娘田園泊舍轟趴民宿
合作方:蘇州再造設計
Project Information
Project name: Moor
Design: Parallect Design (Suzhou)
Website: https://www.parallect-design.com/
Contact e-mail: di.huang@parallect-design.com
Design year & Completion Year: 2019
Leader designer & Team Leader Designer:Xueyi Sun, Xueqi Chen, Nan Yang
Project location: Nanjing, Jiangsu
Gross Built Area (square meters): 300
Photo credits: Jieqi Yao
Clients: Slow Girl Rural Parkhouse
Partners: Suzhou Re-design Studio





































