該辦公室位於昌迪加爾市區的標誌性建築Madhya Marg裏其中一層,它是Corbusier市商業活動的主要支柱。從該辦公室裏的前後都能透過落地玻璃窗看到景觀,享受自然光照射。設計師試圖創建一個將公司的精神與室內建築表達相互融合的空間。指導空間規劃努力實現的主要原則是:空間序列的明確性、視覺連接性和工作效率的優化,以符合辦公室的各種需求。
The floor plate is on the first floor of Chandigarh’s Iconic Madhya Marg which forms the main spine of the commercial activity of the Corbusier city. The site enjoys natural light and views from the front and rear opening of the floor plate. An attempt was to create a space that amalgamates the company’s ethos with a mature expression of interior architecture. The key principles that guided the spatial planning strive to achieve – clarity in sequence of spaces, visual connectivity and optimising for efficiency of floor plate to align with the list of requirements.
當地的印度材料黃銅被用來製作裝飾小品,它與一種日本美學完美地融合在一起,8英寸長寬高的方形模塊柵格成為了接待區的建築模塊。牆壁和天花板都是通過重複的方形長方體元素創建的。現澆的白色水磨石地板,采用了來自印度Firozabad古城的彩色碎玻璃。
The vernacular Indian material brass has been used to create millwork that beautifully blends with a sort of Japanese aesthetic of a square 8 inch length x 8 inch width x 8 inch height module lattice that becomes a building block for the reception area. The walls as well as the ceiling is created by repeating the square cuboid module. The cast in-situ white terrazzo floor which is impregnated with specially sourced coloured chip glass from the old town of Firozabad in India.
金屬框架被塗上了三種柔和的顏色——會議區域的海藍色,辦公區域的桃色和咖啡廳/休閑區域的柔和綠色。這些顏色是獨特的,給每一類空間增添了一個特點,但也相互融合,創造一個連貫的空間。赤陶土具有美麗的自然變化的磚紅色色調,為整個辦公空間創造了一個驚人的統一。炭灰色的吊頂燈恢複了辦公室空間特征的幾何秩序。回收木板用來裝飾牆壁表麵和天花板主要元素,使材料色彩視覺與體驗流動。
Metalwork is painted in three soft pastels colours- The sea blue in the executive areas, the earth peach in workstation area and pastel greens in the café / spill out area. These colours being distinct, do lend a character to each category of space but also blend into one another to create a cohesive continuum of spaces. The terracotta has beautiful natural variation of hues of brick red colour that create a stunning unifier for the entire office space. Ceiling suspended lighting in charcoal grey reinstates a geometrical order to the spatial character of the office. Recycled boards are used to surface clad the walls as well as to create baffle ceiling elements so that the materiality and sight flows with the experience.
∇ 立麵圖
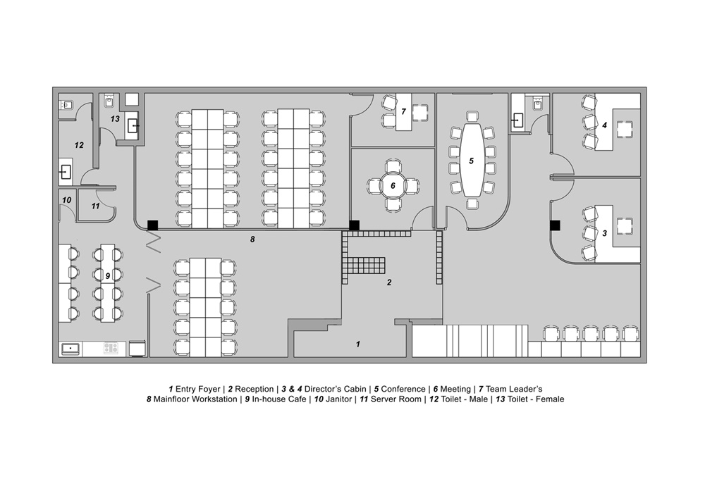
∇ 平麵圖
主要項目信息
項目名稱:Nureca Inc辦公室
項目位置:印度昌迪加爾
項目麵積:2900.0 ft²(約270平方米)
項目類型:辦公空間/辦公室設計
完成時間:2019
設計公司:NOOR Architects Consultants
攝 影:Andre J Fanthome

























