服裝智造園的多維效用
Multi Utilization of Fashion I-Manufacturing Park
“我們試圖營造的建築與環境是相融的,
它在既定的場域中探出尖銳的腦袋,卻不帶有任何侵略姿態。”
“The architecture we are trying to create is integrated with the environment,
featuring sharp forms that emerge within the existing context without any sense of intrusion.”
BRLOOTE巴魯特總部位於紹興,坐落於工業區的高架路與城市的水係之間。 受其品牌的委托,大犬建築設計事務所 完成了該項目的整體規劃,建築設計與室內空間設計。項目占地麵積為47,114平方米,建築主體功能為服裝智能研發及生產製作、輔以觀光工廠、倉儲、辦公及會議、員工餐廳、品牌展示、零售空間、服裝創作設計中心、接待中心、環形休憩廣場、空中廊橋與花園等綜合性的使用功能。
BRLOOTE Headquarter is situated in Shaoxing, nestled between the elevated road of the industrial zone and the city’s waterways. The Greater Dog Architects handled the overall planning, architectural design, and interior design for the project. The site covers an area of 47,114 square meters, with the primary functions including garment research and development, and production, along with a sightseeing factory, warehouses, offices and conferences, Fashion Creation Design Center, a staff canteen, showroom, retail space, reception center, outdoor square, aerial bridge, and garden, among other comprehensive features.
「裁剪式」規劃 · 水係與連接
“Tailored” Planning: Waterways and Connections
“裁剪”作為服裝製作過程中不可或缺的創作過程,成為BRLOOTE總部整體規劃及建築基礎形態探索的起始點。建築師如同裁剪者,場地被想象成了一塊輕柔的不規則布料,河流將其載入。通過線性穿插、環形介入、切片與角度的關係應用,對場地進行“裁剪”式規劃。
As an indispensable process in garment production, ‘cutting’ has become the starting point for the overall planning of the BRLOOTE Headquarters and the exploration of the building’s basic form. Like a tailor, the architect envisions the site as a soft, irregular fabric carried by the river. The site is strategically planned with a “tailored” approach, by applying design elements such as linear interplay, circular integration, slicing, and angles to the architectural form.
建築師回應場地特點,確立了一條貫穿南北的主軸線,地塊東北麵為主樓 「裁片Sliced Building」,西南麵為兩組單體建築:「鏡所Mirrored Building」與「回所Squared building」。在建築布局中,優先考慮日照、天井與綠色共享空間,並在不同建築功能的穿插上進行動線規整,以便在使用中能以高效的路徑抵達不同建築。
In response to the site’s characteristics, the architect established a main axis running from north to south. The main building,known as the Sliced Building, is located in the northeast, while on the southwest side, there are two groups of standalone structures: the Mirrored Building and Squared Building. In the building layout, priority is given to sunlight, patios and shared green spaces. Additionally, the distinct functional requirements of each building are fully considered, allowing for efficient access between different buildings during use.
主軸線同時明確了園區主幹道以及客流動線。在道路側邊相對隱秘的位置,設置並滿足了辦公及研發工廠兩大功能的停車需求。通過引入小型的綠地,軟化道路硬地邊緣的同時,劃分行人及車輛通道。
The main axis also delineates the park’s main roads and pedestrian circulation. In a relatively hidden location alongside the road, parking facilities are strategically placed to meet the parking requirements of both the office and R&D factory functions. By introducing tiny green spaces, the harsh edges of the road are softened while dividing pedestrian and vehicular pathways.
在擁擠忙碌的工業園區,自然世界是遙不可及的。借助地塊的環境優勢,建築師把外圍水係引入內部地塊中,靈動地串聯著工業區內不同的工作場所,構建場地與水係的親密尺度。環形廣場作為親水平台的同時,它銜接了主體建築「裁片」與小單體建築群「鏡所」,實現人行動線上的互通,也為場地增加公共戶外休息區域。連接環形廣場與「回所」建築的步行廊橋,銜接了人抵達不同建築的路徑。
The natural world seems out of reach in bustling and crowded industrial area. Leveraging the environmental advantages of the site, the architect ingeniously brought the peripheral waterway into the site, dynamically connecting various workplaces within the industrial area, thereby constructing an intimate connection between the site and the river. Meanwhile, the circular square serves as a water-friendly platform, linking the Sliced Building and the Mirrored Building, facilitating pedestrian circulation, and also providing a public outdoor relaxation area. The pedestrian bridge connects the circular square to the Squared Building, forming a link between paths leading to various buildings.
「裁片」建築 · 動態與錯落
Sliced Building: Dynamic and Staggered Arrangement
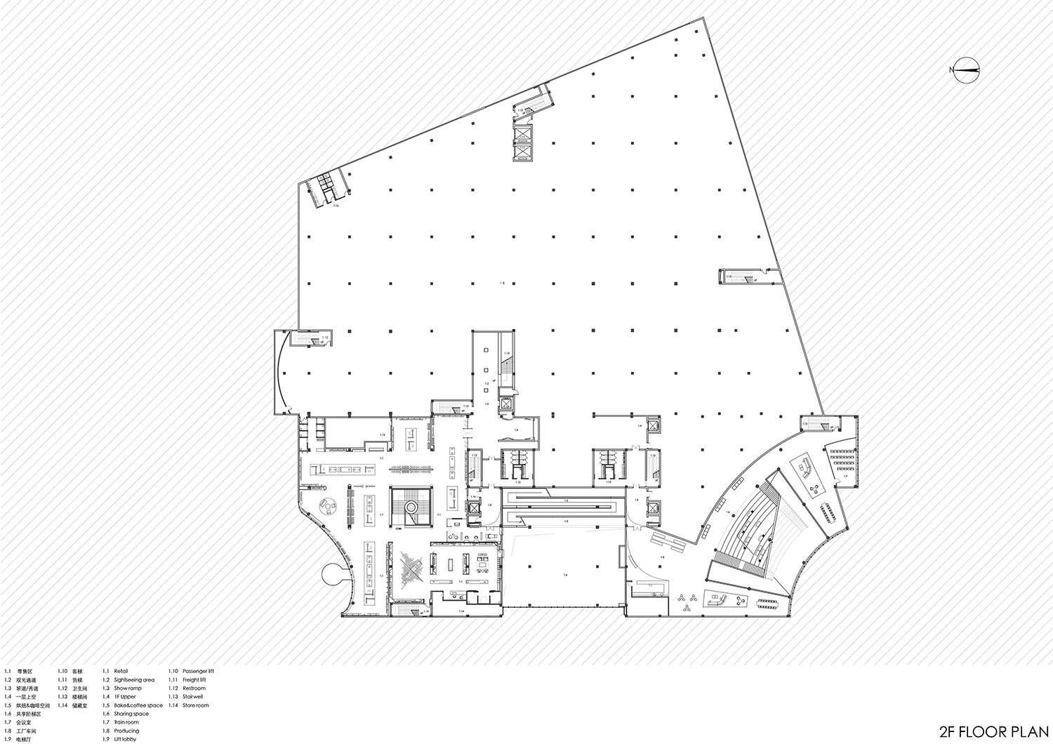
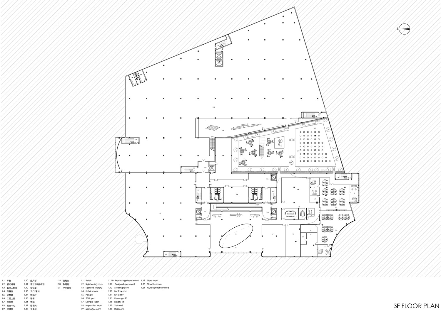
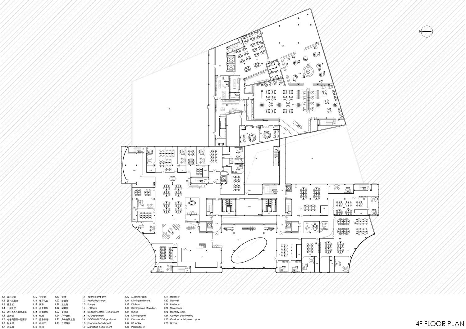
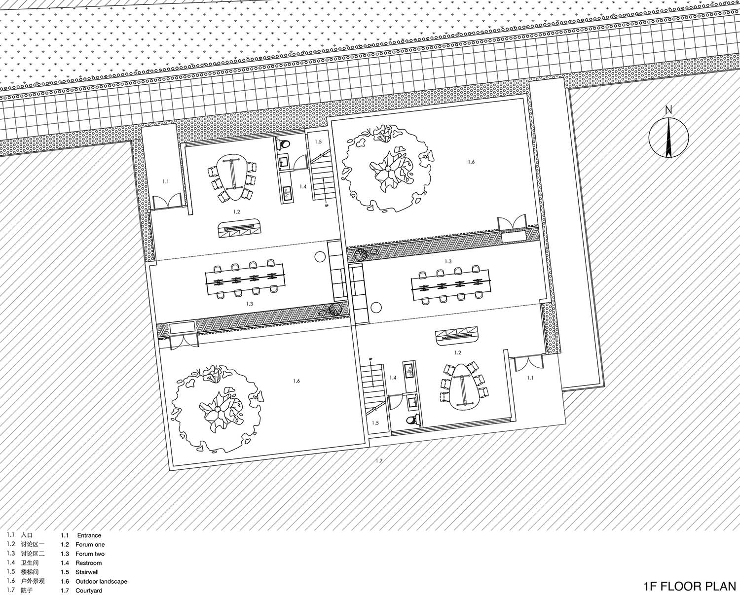
這座營造了現代化工作環境的建築是BRLOOTE總部中的主體建築。「裁片」作為臨近主路的多層建築,綜合了品牌所需的主要功能:服裝智能研發及生產、觀光工廠、製作車間與倉儲、辦公及會議、員工餐廳等。因此,它主要麵向內部辦公人員;而靠近北麵主幹道入口的一二層則集中了麵對消費者的零售空間,品牌展廳與觀光工廠等功能。
The building that creates a modern working environment is the main structure at the BRLOOTE headquarters. As a multi-story building located near the main road, the Sliced Building integrates the key functions, which including garment R&D and production, a sightseeing factory, warehouses, offices and conferences, a staff canteen, and more. Therefore, it primarily serves internal office staff, while the first and second floors near the north main road entrance house retail spaces for consumers, showrooms, and functions related to the sightseeing factory.
在建築形態上,依然延續BRLOOTE品牌至上主義的幾何抽象化運用。建築以黑白為主,純淨的線條與內退的入口形態,營造出微妙的節奏。建築與室內整體連貫的原則始於場地外與內不可分割的聯係,而各空間的功能需求則定義了整體的建築結構以及內部的動線關係。大犬設計團隊通過由外而內,從內到外的整體性來進行建築與空間的探索。
In terms of architectural form, the continued use of geometric abstraction reflects the brand-centric approach of BRLOOTE. The building mainly features a black and white color scheme, with clean lines and a recessed entrance, creating a subtle rhythm. The relationship between the exterior and interior of the site forms the foundation for the overall coherence between architecture and interior design, while the functional requirements of each space define the overall architectural structure and internal circulation relationships. The Greater Dog Architects focuses on creating a seamless connection between the external and internal spaces, emphasizing integrity and continuity.
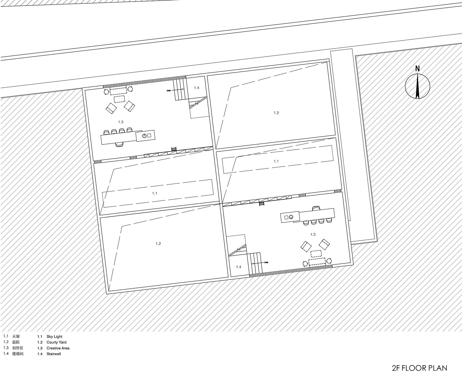
辦公體塊與智能研發工廠體塊作為兩個主要的部分,中間穿插了兩組不同朝向且具有角度的共享空間體塊,以創建高效、靈活的、動態的工作環境,從而為他們帶來真正的協作空間。紅色玻璃廊橋,作為串聯不同功能空間的同時,形成了一種有凝聚力的語言。空中花園的設計為室內帶來更多的自然采光,也為龐大的建築帶來更多通往戶外的契機。具有自然造景的空中花園和充足的陽光消除了建築與室內的界限,這裏也可作為戶外會議空間、交談空間、步行道等。
The office block and the R&D factory block serve as the two main components, with two sets of shared space blocks inserted in between, each with different orientations and angles. This design aims to create an efficient, flexible, and dynamic working environment, providing them with a truly collaborative space. The red glass covered bridge connects different functional spaces and forms a cohesive language. The design of the sky garden brings more natural lighting indoors, and also brings more opportunities to the outdoors for the huge building. The sky garden with natural landscaping and ample sunlight eliminates the boundary between the building and the interior. It can also be used as an outdoor meeting space, conversation space, walking path, etc.
「鏡所」建築 · 鏡像與水
Mirrored Building:Reflection and Water
「鏡所」為兩棟地上兩層建築,作為依水而建的小單體建築,用以BRLOOTE服裝創作設計中心使用。整體建築形態以左右與前後鏡像的關係排布,分為兩幢四戶;裁片狀的曲線,增加建築的靈動感;為使建築與自然更為緊密的結合,樓體三分之一的部分坐落於水麵之上,使建築在水中形成雙重疊加的鏡像狀態;建築師借用水係創造了更為寧靜的環境語言,也為服裝設計師帶來更具啟發性的創作氛圍。
The Mirrored Building consists of two-story buildings, serving as small standalone structures built by the water for the use of the BRLOOTE Fashion Creation Design Center. The overall architectural form is arranged with a mirroring relationship between the left and right, as well as the front and back, dividing it into two sets of four units. Curved, pie-shaped elements add a sense of dynamism to the building. To integrate the building more closely with nature, one-third of the structure is positioned above the water, creating a double-layered mirrored effect in the water. The architect borrowed the river creates a more tranquil environmental language and also brings a more inspiring creative atmosphere to the fashion designers.
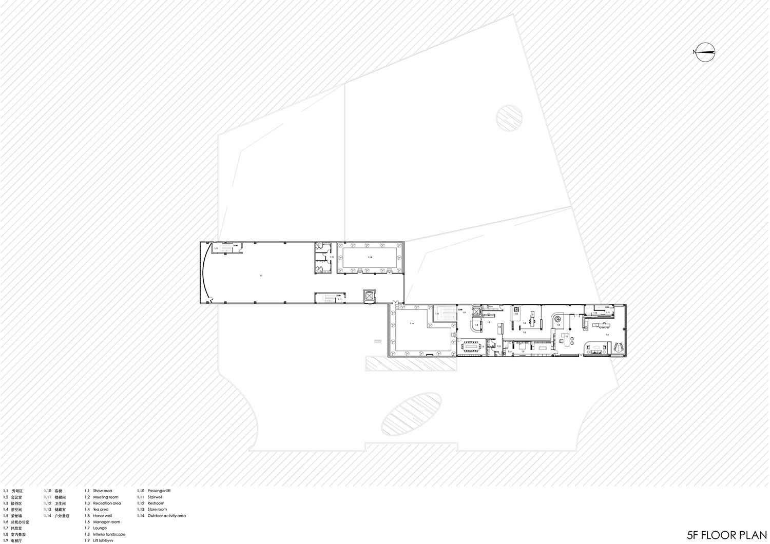
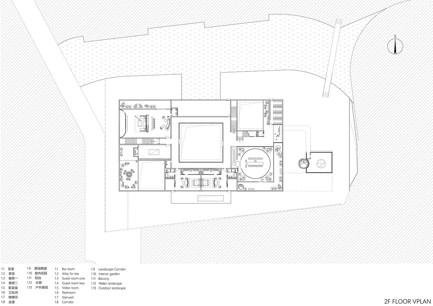
「回所」建築 · 天井與水
Squared building: Patio and Water
「回所」作為地上三層建築,建築落位於該項目西南角的獨立小島上,它被河流隔開,呈現最為私密的狀態,它的功能為品牌接待中心。向建築內部引入水係的設計策略,形成了建築以天井為中心,圍繞而建的空間動線。四周具有傾斜角度的屋頂,在雨季來臨時,雨水由四周向內滴落在天井的水麵上。它為使用者帶來更多與自然觸碰的契機,也為忙碌的工業園區帶來更多的詩意瞬間。
The Squared Building is a three-story structure located on an isolated island in the southwest corner of the site. It is separated by a river, ensuring maximum privacy. Its primary function is to serve as a brand reception center. The design incorporates water features into the building, creating a central courtyard around which spatial circulation is organized. The slanted roofs surrounding the courtyard allow rainwater to drip inward during rainy days. This design provides people with more opportunities to connect with nature and brings poetic moments to the bustling industrial area.
「裁片」、「鏡所」、「回所」這三組建築的部分屋頂以適宜角度傾斜,從而增大屋頂層的視野麵。同時,環保的設計理念通過該角度而實現,它為安裝光伏電池板提供便利的同時又滿足高效排水。通過雨水收集和在屋頂使用新型太陽能光伏麵板,其產生的能量滿足了整個總部的使用需求。
For the Sliced Building, Mirrored Building and Squared building, a portion of their roofs is inclined at an appropriate angle to increase the rooftop’s visibility. Simultaneously, this design aligns with eco-friendly principles, making it convenient for the installation of solar panels while ensuring efficient drainage. By collecting rainwater and utilizing innovative solar photovoltaic panels on the roof, the generated energy meets the needs of the entire headquarters.
「裁片」室內 · 路徑與節奏
Interior of Sliced Building: Pathways and Rhythm
「裁片」建築西麵入口通往辦公區域,橢圓形的采光頂為辦公大堂及各層公共區域引入自然光線,從而降低人工光負荷。同時,環形高挑空廊道串聯上下空間,形成層疊的光影效果,為大堂創造更為豐富的感官連接。
The western entrance of the Sliced Building leads to the office area. The oval skylight introduces natural light into the office lobby and public areas on each floor, thereby reducing artificial light needs. Simultaneously, a circular, high-ceilinged corridor links the upper and lower spaces, forming a cascading play of light and shadows, enriching the sensory connection within the lobby.
東西兩側的電梯廳,作為主要的內部垂直交通。大堂中心之字形的坡道設計,提供步行動線上多維的使用體驗。行走於悠長的坡道,感受自然光由遠至近的感官變化。在挑空空間中置入大尺度的坡道,建築師摒棄多餘的裝飾手法,以結構之美,營造獨特的大堂空間氛圍。同時滿足BRLOOTE總部多變的使用需求,坡道可用以服裝走秀舞台以及品牌活動的場所。
The elevator halls on the east and west sides serve as the main internal vertical transportation. The central zigzag-shaped ramp design in the center of the lobby provides a multi-dimensional experience along the walking path. Walking along the spacious ramp, people can feel the sensory changes of natural light from far to near. By placing a large-scale ramp in the atrium space, the architect abandoned ornamentation in favor of the beauty of structure, creating a unique lobby space atmosphere. At the same time, it meets the changing needs of BRLOOTE headquarters. The ramp can be used as a runway stage and a venue for brand events.
位於辦公大堂的左側零售空間,建築北麵入口作為消費者入店體驗與展廳參觀的主要入口,它毗鄰城市主幹道,相較於辦公入口更具有對外性。通過戶外圓筒形紅色透明玻璃樓梯空間,分別可以進入零售空間的一層和二層以及觀光工廠的展廳區域。
Located on the left side of the office lobby, the retail space has its main entrance on the north side of the building, serving as the primary entrance for consumers to do shopping and visit the showroom. It is adjacent to the city’s main road and has a more outward-facing aspect compared to the office entrance. Through the outdoor cylindrical red transparent glass stairwell space, one can access both the ground floor and the second floor of the retail space as well as the showroom of the sightseeing factory.
一層零售空間以BRLOOTE品牌男裝陳列為主,並設有該品牌的SI標準店展示、直播間、更衣室等等。開放樓梯作為上下樓的主要動線,結合陳列與收銀台的功能;多重結構形態占據了空間的中心位置,相應的功能則圍繞它而展開;應用於天花上的透光玻璃與黑色鏡鋼,光感延伸了樓梯的縱向空間視覺。懸浮熱軋板展示台麵穿插在空間中,形成輕盈與重量感的對話。
The retail space on the first floor mainly displays BRLOOTE men’s clothing and includes the brand’s SI standard store display, live broadcast room, fitting room, etc. An open staircase serves as the main circulation route between the floors, combining the functions of display and cashier; A multi-layered structural form occupies the central space, with corresponding functions organized around it; Translucent glass and black mirrored metal applied to the ceiling extend the visual perception of the vertical space created by the staircase. Suspended mental display plates are interspersed throughout the space, forming a dialogue between lightness and solidity.
由中心區域的開放樓梯進入二層零售空間。該空間集合了國內外不同的女裝品牌,LEDING定製品牌,形象沙龍空間以及更衣室,儲藏間等等。
The second-floor retail space is accessed via an open staircase in the central area. This space brings together different women’s clothing brands, Leding Bespoke, a Salon area, fitting rooms, storage, etc.
在二層零售區設計了通往BRLOOTE品牌展廳以及觀光工廠的路徑。參觀者透過落地窗看到數字化研發與車間製作的實況。製作車間內一方麵擁有先進的智能吊掛生產線設備,另一方麵則有供顧客參觀的品牌展廳,裏麵詳細展示了其重要的製作工藝,服裝麵料,生產流程等等。
On the second floor, adjacent to the retail space, a pathway is designed to lead to the showroom and the sightseeing factory. Visitors can see a live digital R&D through the floor-to-ceiling windows. On one side, the production workshop is equipped with advanced intelligent hanging production line equipment, and on the other side, there is a showroom for customer visits. The showroom provides detailed displays of essential techniques, fabrics, production processes, and more.
服裝領域工作的多樣性使人們需要靈活多變的辦公環境,它不局限於辦公桌,也可能包括一些有趣的方式。在此建築中,各式各樣的方式彙集在一起形成共生體,任何事情都能在此發生。
The diversity of work in the fashion industry calls for a flexible office environment that is not limited to desks but may also include different creative approaches. In this building, various ways come together to form a symbiosis where anything can happen.
由辦公空間抵達紅色玻璃廊橋,它串聯辦公區、餐廳及工廠區。餐廳作為共享空間,營造了一種非正式的休閑用餐氛圍。在該氛圍中促進員工的社交與分享欲,帶來更多思維的碰撞與創造力。
The journey from the office space to the red glass aerial bridge connects the offices, canteen, and factory. As a shared space, the staff canteen creates an informal and relaxed dining atmosphere. Within this ambiance, it fosters social interaction and encourages sharing among employees, leading to more ideas colliding and sparking creativity.
科技的創新帶來服裝智能製造的發展新趨勢,通過技術創新實現更加高效、智能和個性化的服裝生產。大犬設計團隊通過綜合性的設計策略使場地與建築得到了合理的利用,為室內不同功能空間的高效運用提供了多重可能,構建一個高效節能的,環境舒適的人性化複合型空間。
Technological innovation has brought new trends in the development of intelligent clothing manufacturing, and more efficient, intelligent and personalized production has been achieved through technological innovation. The Greater Dog Architects has employed a comprehensive design strategy to ensure the reasonable utilization of the site and building. This approach provides multiple possibilities for the efficient use of various indoor functions, creating an energy-efficient, environmentally comfortable, and human-friendly complex space.
∇ 施工過程
∇ 「裁片」建築 Sliced Building | Plan & Elevation & Section
∇ 「鏡所」建築 Mirrored Building | Plan & Elevation & Section
∇ 「回所」建築 Squared Building | Plan & Elevation & Section
項目信息
項目委托:巴魯特服裝品牌 BRLOOTE
規劃設計:大犬建築 Greater Dog Architects
建築與室內設計:大犬建築 Greater Dog Architects
主持建築師: 辛晉 & 胡誌紅
設計團隊:顧麗玲 張晶 張琪 何群 郭林昂 王睿 任雙鳳 何曼妍 龔龍琳
建築深化:同創工程設計有限公司(甲級)
結構設計:同創工程設計有限公司(甲級)
項目攝影:Metaviz Studio
項目地址:浙江省紹興市越城區三江東路16號
總規劃麵積:47,114 m2
總建築麵積:50,208 m2
設計時間:2018-2021
完成時間:2024.01
撰文翻譯:吳秋辰
Client: BRLOOTE Fashion Group
Overall-Planning : Greater Dog Architects
Architecture and Interior Design: Greater Dog Architects
Lead Architects: Jin XIN, Zhihong HU
Design Team: Abigale Gu,Zoe Zhang,Qi Zhang, Qun He,Keith Guo, Ray Wang,Francis Ren,Manyan He, Longlin Gong
Deepen Design: Tongchuang Engineering Design Co.,Ltd
Structural Design: Tongchuang Engineering Design Co.,Ltd
Photo Credits: Metaviz Studio
Address: No.16, East Sanjiang Road, Shaoxing City, Zhejiang Province, China
Site Area: 47,114 m2
Building Area: 50,208 m2
Year Began: 2018
Completion: Jan, 2024
Translator:Alex Wu



























































