這家位於布魯克林的藍瓶咖啡館由Bohlin Cywinski Jackson設計,設計師對其進行了更新,以容納更多的人。Bohlin Cywinski Jackson於2017年在紐約威廉斯堡社區設計了這家藍瓶咖啡空間。該公司受邀返回該項目,為顧客創造更多的空間,並擴展設施,因為自開業以來,咖啡店已廣受歡迎。
Pale wood decorates this Blue Bottle Coffee cafe in Brooklyn designed by Bohlin Cywinski Jackson, which the American practice has updated to accommodate more people.Bohlin Cywinski Jackson created the Blue Bottle Coffee space in New York’s Williamsburg neighbourhood in 2017.The firm was enlisted to return to the project to make more space for customers and extend the facilities, as the coffee shop has become popular since opening.
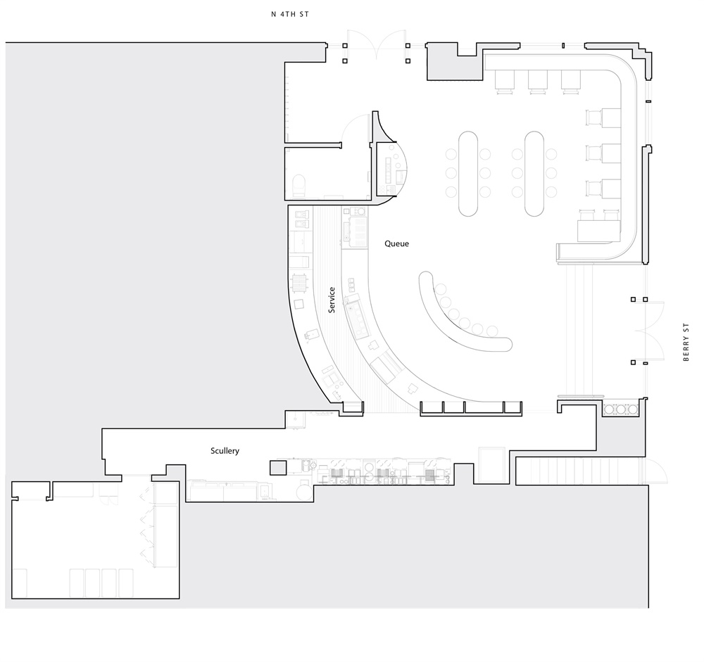
這家咖啡店位於貝裏街和北4街的拐角處,其內部裝飾旨在致敬以前的工業空間的細節,例如混凝土地板和塗成白色的裸露磚牆。板條木製品麵朝咖啡吧和櫃台,與裝飾咖啡館的木桌相匹配。
Located on the corner of Berry Street and North 4 Street, the coffee shop features interiors intended to riff of the details of the former industrial space, such as concrete floors and exposed brick walls painted white.Slatted woodwork fronts a coffee bar and counter and matches the wooden tables that furnish the cafe.
對於重新設計,Bohlin Cywinski Jackson保持了項目的大部分不變,包括環繞牆壁的木材細節。現有的混凝土地板已密封,以提高耐磨性。他們還更新了一些家具。 兩張長桌子代替了公用桌子,並且在櫃台旁邊增加了一個曲線木條,以前是一個較小的版本。
For the redesign, Bohlin Cywinski Jackson kept much of the project the same, including the wood detail that wraps around the walls.The existing concrete floors have been sealed for better wear.The practice also updated some of the furniture. Two long tables replace a communal table, and a curvilinear wood bar has been added near the counter where a smaller version previously stood.
廚房在裝修期間也進行了升級,允許藍瓶咖啡館可以擴展其餐飲範圍。
The kitchen was also upgraded during the renovation, allowing the Blue Bottle Coffee shop to expand its food and drink offerings.
∇ 剖透視
主要項目信息
項目名稱:布魯克林藍瓶咖啡翻新
項目位置:美國布魯克林
項目類型:餐飲空間/咖啡廳
完成時間:2019
項目麵積:201m²
設計公司:Bohlin Cywinski Jackson
設計團隊:Ryan Simpson, Sophia Lee, Daniel Stanislaw, Habeeb Muhammad, Nora Chase
攝影:Daniel Lee
























