全球設計風向感謝來自 有冇設計工作室 的餐飲空間(酒吧)項目案例分享:
Late gallery位於杭州市濱江區,是late group繼late market、late company之後的第三家雞尾酒吧。相較於late group一貫的複古空間,late gallery更像是這個係列當中的小女孩,更加積極、輕鬆的麵對年輕的客人們,這也正是late group團隊希望展現給大眾的一個全新形象。
The Late gallery is located in the Binjiang district of Hangzhou city. It is the third cocktail bar of the LATE GROUP after the Bar LATE MARKET and Bar LATE COMPANY . Compared with the traditional retro space of LATE GROUP , the late gallery is more like the little girl in the series, facing the young guests more actively and easily, which is exactly a new image that the team hopes to present to the public.
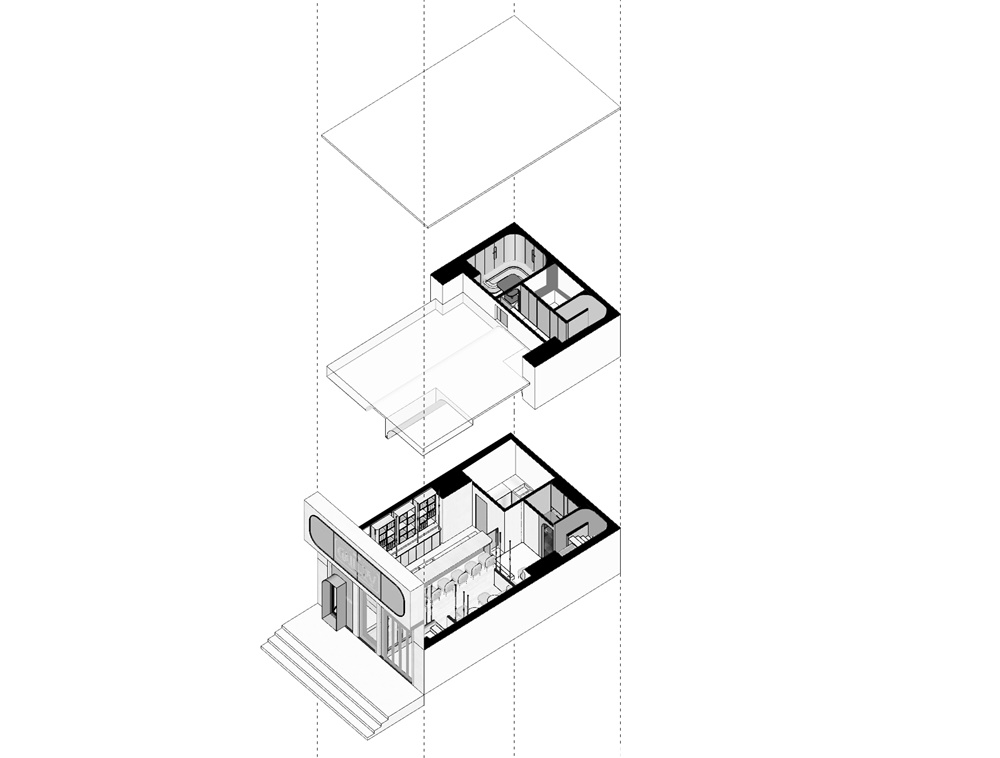
有冇設計工作室在有限的空間裏,就像堆積木一樣,在地麵和頂部穿插出幾個層疊的空間。半開放式的門麵形成三個通透的窗口,分別向路人展示著三個場景,也連通了戶外小露台與室內空間的關係。
There is nondesign studio in the limited space, just like piling up wood, in the ground and the top of several layers of space. The semi-open facade forms three transparent windows, showing three scenes to passers-by, and also connects the relationship between the small outdoor terrace and the interior space.
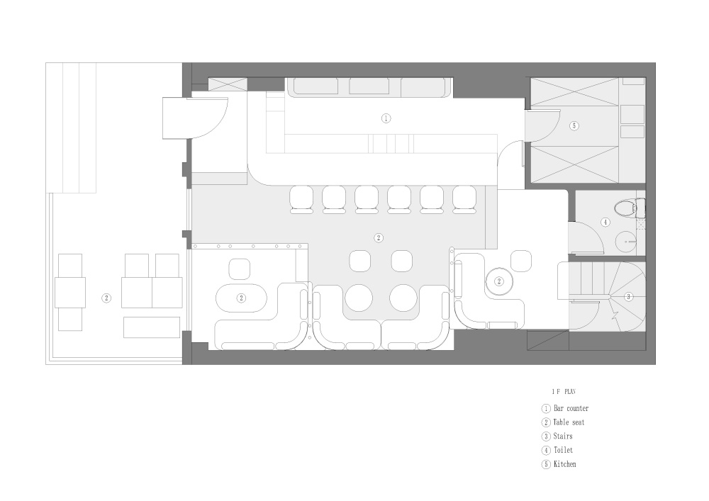
整家店鋪氛圍兩層,一層設置了主吧台以及四個高低錯落的多人位。
The Bar is separated into two parts , the first floor is set up with the main bar and four booth seats in different levels.
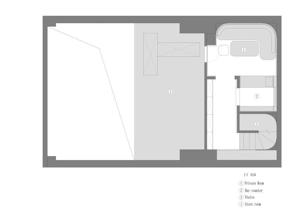
通過小型回旋樓梯,二層為vip區域,包括了一個包間以及獨立的小吧台,給有需求的客人一個私密的空間,享受他們的放鬆之旅。
With a small spiral staircase, the second floor is a VIP area, including a private room and a separate bar, giving guests a private space to enjoy their relaxing trip.
Late group以late gallery為起點推出了自己同樣年輕的葡萄酒係列。為此有冇設計工作室在整家店以暗紅色係的啞光手刮漆麵配合略顯粗糙的土色係肌理漆組合,擁有複古線條的黑色實木裝飾柱錯落穿插,作為裝飾,也形成幾個小區域之間的通透隔斷。
The Late group used the Bar LATE GALLERY as a starting point for the concept of “young wine drinkers”. For this reason, in the whole bar with dark red matte hand scraping paint surface with rough texture paint combination, with retro lines of black solid wood decorative column interspersed at random, as decoration, also form a few small areas between the transparent partition.
不同風格材料的組合,大體快堆積與小複古裝飾的穿插,展示著“新”,也沒有拋棄“舊”,把玩一些“摩登”,缺也穿插著“經典”的小趣味。
The combination of different style material, general quick accumulation and small restore ancient ways illuminative intersperse, showing “new”, also did not abandon “old”, play a few “fashionable”, lack also is interspersed with “classic” small gout.
項目信息
項目名稱:Late Gallery Bar
公司名稱:有冇設計工作室/nondesign studio shanghai
公司網站:https://www.nondesign.cn
聯絡郵箱:non_centre@163.com
公司所在地:上海市五原路252弄14號
–
完成年份:2019.05
建築麵積:63平米
項目地址:浙江省杭州市濱江區安業路229號
–
主創建築師:馮藝唯
主創建築師郵箱:ewan.feng@foxmail.com
視覺信息
攝影師:張念亮
攝影師網站:www.rivenzhang.com
攝影師郵箱:riven.znl@gmail.com
項目參與者
設計團隊:馮藝唯/嶽玉傑/李威
委托方:杭州迷福娛樂管理有限公司
結構設計:有冇設計工作室
施工方:杭州典昌裝飾工程有限公司
合作方:日本大建/ICC/大自然地板




























