熱帶雨林捉迷藏
場地 | Site
本項目坐落於北京Mix島西西裏村主樓二層,原建築條件是挑空及涵蓋夾層的大空間,空間設計上,“取形於自然”的理念,劃分多個就餐區域,形成一個個雨林小部落,建立與西西裏村度假風相呼應的熱帶風格酒吧。
This project is located on the first floor of the main building of Mix Island Sicily Village in Beijing, the original building condition is a large space with open space and mezzanine, In terms of space design, we draw inspiration from the nature and adopt the concept of “taking shape in nature” to divide multiple dining areas, form a small rainforest tribe, and establish a subtropical style bar that echoes the holiday wind of Sicily Village.
∇ hideseek酒吧,hideseek bar
∇ 夜晚從公園方向看酒館,View of the pub from the park at night
∇ 重要節點示意圖,Schematic diagram of important nodes
窗外·半開放 | Outside the window · semi -open
原本三麵朝外的區域,從圍合的角度,西露台最重要,剩下的南麵東麵重要性遞減,被打造為不同空間就餐區。
The original three sides of the area facing the outside, from the perspective of enclosure, the west terrace is the most important, the remaining south side of the east side of the diminishing importance, was created as a different space dining area.
三麵露天開窗引入自然天光作為空間的主線,一進門左手麵對西西裏村,是露天開放式室外就餐區,打開房頂的遮攔掩蓋,露台一半為三座形態不同的圍合上升式卡座,綠植環繞,一半放空,開拓空間,備餐台位於隔斷區中央,綠植根據視線劃分層次,減少外部直接幹擾,上升式卡座式劃分人群區域,但都可以欣賞到周圍的景色和西西裏村度假“海景”,推開折窗,內外相融,折疊門外落座區外是大片綠茵,相較其他區域更為寧靜,在不影響結構功能的情況下,最大化開窗,使人在室內能感到與室外自然的交流;麵對公路一側就餐區,借助窗戶的格柵,讓自然光滲透進內部。
Three sides of the open-air windows to introduce natural daylight as the main line of the space, an entrance on the left side facing the Sicilian village, is an open-air open outdoor dining area, open the roof of the cover cover, half of the terrace for the three different forms of enclosure ascending card seating, surrounded by greenery, half of the emptying, to open up the space.The dining counter is located in the centre of the partitioned area, the greenery is divided into levels according to the line of sight, reducing the direct interference from the outside, and the ascending card seating divides the crowd into areas, but all of them can enjoy the surrounding scenery and the Sicilian village holiday “seascape”.Push the folding windows, blend in and outside, and there are large greens outside the seating area outside the folding door. Compared with other areas, it is more quiet than other areas. Without affecting structural functions, the window opens the window, so that people can feel indoors and outdoor nature. Communication; Facing the dining area on the side of the highway, the natural light seeps into the interior with the grille of the window.
三種不同麵對室外的設計手法,顧客都可以隨時感知戶外的變化。
Facing different outdoor design methods of the terrace, customers can always perceive the changes of outdoor.
∇ 露天開放式就餐區,Open-air dining area
∇ 折疊門外落座區,Folding door seating area
∇ 窗邊就餐區,Dining area by the window
白盒子 | White box
原來是大斜坡的屋頂,如果按照原來的形狀效果,屋頂勢必被平麵化,也不能與內部空間有機結合,我們以退為進在屋頂向外挑出一個白色盒子,尖形的屋頂體量被削去了一角,是二樓夾層向外的延伸,延長了內部空間的長度,打破沉悶厚重的尖形屋頂。麻雀雖小五髒俱全,小盒子的內部是私密包廂空間,圍繞盒子構造布置家具,向酒館內側開長條格柵窗,站在小型階梯可以頂部眺望遠方。
The original is a big slope roof, if follow the original shape effect, the roof is bound to be flat, also can’t be combined with the internal space organically, we take a retreat to advance in the roof to pick out a white box, the corner of the cut is extended outward on the second floor, extending the length of the internal space, and breaking the dull and heavy pointed roof. Although the sparrows are small in or internal organs, the inside of the small box is a private box space. Furniture is arranged around the box structure, and a long grille window is opened to the inside of the tavern. It stands in the small steps to look at the distance.
∇ 屋頂結構軸測
∇ 通向包廂的折線幾何感樓梯,Folding line geometric stairs to the box
∇ 私密就餐區包廂內部白天與夜晚對比,Private dining area compartment interior contrast day and night
細部 | Detailed
∇ 吧台旁的玻璃透明酒櫃,顧客與工作人員均可從不同方向進入
The glass transparent wine cabinet next to the bar, customers and staff can enter from different directions
∇ 隱藏在水泥盒子裏的水電機器,Hydropower machine hidden in the cement box
∇ 裝飾性酒櫃,豐富立麵展示設計,Decorative wine cabinet, rich display design on the facade
熱帶雨林 | Rainforest
空間座位動線的劃分是整個酒吧設計的重點,整體分為吧台,露台,中心落座區與包廂等四大部分,以方形流線為中心主動線,設計師思考各個小空間場所最適化的尺度,內部切分出多個獨立空間的就餐區,將不同用餐空間的場景進行串聯,類似於捉迷藏的設定,顧客可到訪位於不同小空間內,感受不一樣內容。
The division of space seating line is the focus of the design of the whole bar, the whole is divided into four parts, including the bar, the terrace, the central seating area and the box. With the square streamline as the central active line, the designer thinks about the optimal scale of each small space, the interior is divided into multiple independent space dining areas, and the scene of different dining Spaces is connected in series, similar to the setting of hide-and-seek.,Customers can visit different small Spaces and feel different content.
∇ 酒吧入口處廊道,初極狹,才通人,複行數十步,豁然開朗
The corridor at the entrance of the bar is very narrow at first, but it is only passable to people, and after a few dozen steps, it opens up.
橫向設計上,以圓形卡座區為最高點向外部空間依次降低,其他的剩餘空間作為零散落座區。我們把多個空間如圍合圓形卡座,不規則散客區,角落卡座,私密包廂區等空間的關聯性及私密性通過大量綠植和裸露的石材木製家具隔斷等進行模糊界定,隔斷的概念弱化,封而不閉,隔中有通,保證空間和光線的通透性與拓展性。
In the horizontal design, the circular booth area is the highest point and decreases to the outer space successively, and the other remaining space is the scattered seating area.We define the correlation and privacy of multiple spaces, such as the enclosed circular seating area, irregular seating area, corner seating area, private box area, etc. through a large number of greenery and exposed stone and wooden furniture partitions, the concept of partition is weakened, seal is not closed, and there is common in the interval to ensure the permeability and expansion of space and light.
豎向設計上,在考慮留下尖頂式屋頂的挑空夾層大空間後,利用本身的高低差,保留一部分夾層空間,對梁加固,規範設計保證安全性,改造為木質包裹的私密包廂,客人在登上包廂後通過隔窗也可環繞俯瞰下方。
In vertical design,after considering leaving the large space of the open mezzanine of the peaked roof, a part of the mezzanine space is retained by taking advantage of the difference in height, reinforcing the beams, standardising the design to ensure safety, and transforming it into a wood-wrapped private box, which can also be surrounded and overlooked by the guests through the window after ascending to the box.
從一層公共多空間到二樓私密包廂,層層遞進。運用了見樹不見林的手法,讓空間充滿婉轉、抽象、好奇,融入雨林,讓觀景者本身亦為景,亦使自己成為景的一部分。
From the public space on the first floor to the private box on the second floor, the layers are progressive. Using the method of from the first small beginning, the space is full of roundabout, abstract and curious, integrating into the rainforest, so that the viewer is also the scene and makes himself a part of the scene.
∇ 就餐區通道,Dining area access
∇ 環繞圍合卡座,Wrap-around enclosures
∇ 內部就餐區,Internal dining area
新自然 | New nature
酒吧內以豐富的自然元素為特點,植被賦予生命,石頭賦予力量。
The bar is characterized by rich natural elements. The vegetation is given life and stones are given power.
屋頂和燈光的形狀和設計靈感來自充滿異域風情亞熱帶的傳統建築, 從主樓外部樓梯進入酒吧內部,可見屋頂通過木結構的連接,傳統的藤條編織手藝與燈條結合,具備半透明性和“輕”的狀態,便捷地固定在原建築的結構上,從而大大降低了建造的成本和時間。通高大廳中央由裸露的鋼檁條支撐的木製梁依靠撐起,巨柱在垂直向度上暗示結構構件的受力和空間在高度上的方向感。中部隔斷以大量高低不一層次分明的綠植和石材肌理打造,梁柱保留原始肌理裸露感,維持了建築原有的特點;燈條貼於地麵,起到引導作用,地麵使用石材與木地板的結合,不同的鋪裝對應不同的動線和空間使用區域。
The shape and design of the roof and lighting is inspired by exotic subtropical traditional architecture. From the exterior staircase of the main building into the interior of the bar, It can be seen that the roof is connected through the wooden structure, the traditional rattan weaving technique combined with the light strip with translucent and “light” state, which greatly reduces the cost and time of construction.The center of the double-height hall is supported by wooden beams supported by exposed steel purlins. The giant columns in the vertical dimension suggest the forces on the structural members and the orientation of the space in height.The central partition is built with a large number of stone texture and varying heights of distinct green plants , and the beams and columns retain the original texture of the bare sense, maintaining the original characteristics of the building;The light bar is attached to the ground, playing a guiding role, the ground using a combination of stone and wood flooring, different paving corresponds to different dynamic lines and space use area.
這些元素共同營造沉浸式亞熱帶風情,置身於原始茂密的雨林中,這為顧客帶來獨特而難忘的用餐體驗。
These elements work together to create immersive subtropical styles and be in the original and dense rain forests, which brings unique and unforgettable dining experience to customers.
∇ 屋頂夜晚大麵積藤條編織和燈條結合,The roof combines large areas of rattan weaving and light strips at night
∇ 植被環繞用餐區域,Dining area surrounded by vegetation
結語 | Conclusion
室內自然場景下的大體量挑高空間,更強調空間的場域,體感的劃分,在高密度的城市環境中提供接近於原生自然的舒適體驗,我們希望傳遞與自然共生的理念。
The large-volume, high-ceilinged space in the natural interior scenario places more emphasis on the spatial field, the division of the sense of body, and provides a comfortable experience close to native nature in the high-density urban environment, and we hope to convey the concept of symbiosis with nature.
∇ 用餐區域望向吧台,View of the bar from the dining area
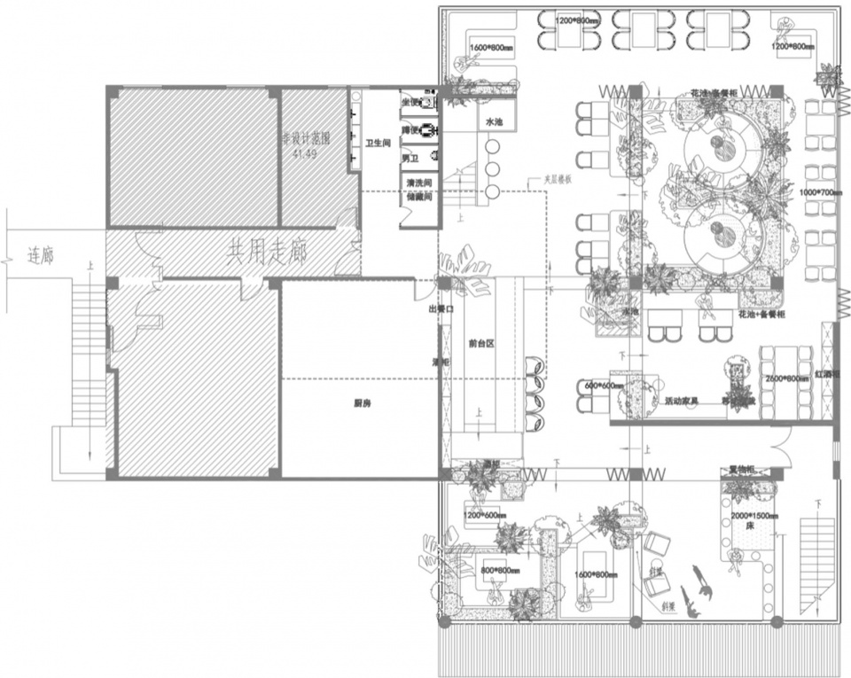
∇ 二層平麵圖,Second plan
∇ 夾層平麵圖,Mezzanine plan
項目信息
項目名稱:The Bond by hide&seek
設計公司:DAGA Architects大觀建築設計
客戶:hide&seek北京換個地方躲貓貓餐飲管理有限公司
設計團隊:申江海,張龍瀟,胡芳婷,張貝
項目類型:室內設計
建築麵積:270平方米
設計時間:2023.03-2022.05
建造時間:2023.05-2023.07
項目攝影:UK Studio
撰文:胡璐揚
Project name : The Bond by hide&seek
Design company : DAGA Architects
Clients: hide&seek Beijing change places peek-a-boo catering management Co., Ltd
Design Team :Shen Jianghai,,Zhang LongXiao,Hu FangTing,Zhang Bei
Project type : Interior Design
Project area : 270m2
Design time :Mar 2023-May 2023
Construction time :May 2023-Jul 2023
Photographer : UK Studio
Writer:Hu LuYang






































