全球設計風向感謝來自 一乘建築(http://www.onexn.com/) 的餐飲空間項目案例分享:
∇ 集嶼 ©一乘建築 JOYS ©Onexn Architects
“建築意味著把一個場地轉變成具有特定性格與意義的場所。設計就是造就場所。換句話說,場所是有清晰特性的空間,人必須要能體驗到環境是充滿意義的。”
—諾伯爾·舒爾茨《場所精神-邁向建築現象學》
“Architecture means to transferring a site to a place of distinct character and meaning. Design is to create places. In other words, a place is a space which has a distinct character. Man can experience the environment as meaningful.”
—Genius Loci: Towards a Phenomenology of Architecture
by Christian Norberg-Schulz
01 範式:小尺度與大城市 Paradigm: a small space in big city
9㎡的集嶼,是這座城市裏,一種新的空間範式的提煉。它並不因其小而匱乏深度,它孕育著理想、思想、生活、文化、和鄰裏這些要素。9㎡,針對的是城市快速發展中,稀缺的一種空間尺度,它和藍圖、速度、宏偉無關,它是一種小而輕的空間敘事,容易忽視但不可或缺。建築師在空間現實和社會意義層麵找到了介入的視角,9㎡讓人和人相互靠近並獲得存在的真實感。
Occupying 9 square meters, JOYS is a new space paradigm in the city. It’s small, but doesn’t lack depth, since it’s the integration of ideals, thoughts, cultures, and neighborhood. 9 square-meters is a scarce small spatial scale in the city undergoing rapid development. It has nothing to do with blueprint, speed or magnificence, but is about a small spatial narrative that is easy to be ignored but indispensable. We identified a perspective of intervention by taking into consideration both spatial reality and social significance, intending to endow the 9-square-meter space a sense of existence and enable it to bring people closer.
∇《癲狂的紐約》雷姆·庫哈斯(圖源網絡)Delirious New York by Rem Koolhaas (image from the Internet)
《癲狂的紐約》,這本給曼哈頓補寫的宣言寫到:宣言的致命弱點是與生俱來的證據缺失,曼哈頓的問題恰恰相反,它有堆積如山的證據,卻沒有宣言。集嶼,在快速的大背景下,作為一種帶有理想和關懷的空間載體最終落地,它為城市日漸衰退的社區氛圍,做出了一定詮釋和補充。
In Delirious New York, a retroactive manifesto for Manhattan, it reads that “The fatal weakness of manifesto is their inherent lack of evidence. Manhattan’s problem is the opposite: it is a mountain range of evidence without manifesto.”Under the backdrop of rapid urban development, JOYS, as a space that carries ideals and care, was eventually implemented as an interpretation and supplement of the community atmosphere that has been on the decline.
∇ 《找回趣味之城》©一乘建築 “Recapture the Interest of City” ©Onexn Architects
《找回趣味之城》在描繪城市裏的大街小巷,我們想尋找雅各布斯寫過的街道尺度和鄰裏安全監督的意義,這些空間不像那種街塊簇擁下,覆蓋著層層建築魅影的都市意向,它們有自己的個性和張力,或是公共空間、或是可觸可及的景觀屋麵,而集嶼就在這其中。
In the drawing “Recapture the Interest of City”, we depicted the avenues and alleys in cities, and tried to look for the street scale and the significance of neighborhood safety supervision which Jane Jacobs wrote about. Unlike those street blocks that are covered by building shadows, the spaces outlined in this drawing are endowed with their own features and tension, either being public spaces or landscape rooftops that are visible and accessible. Joys is part of them.
02 公共空間:一種非剛需的空間類型 Public space: a “non-essential” space type
∇ 區位圖 ©一乘建築 Location diagram ©Onexn Architects
集嶼位於建成於上世紀90年代的香蜜三村,近20年的變遷更迭中,陳舊的社區硬件加速了活力的喪失,激增的路麵車位不斷占用著這個社區的底層公共空間。
JOYS is located in Xiangmi Third Village that was built in the 1990s. Over the past 20 years, the neighborhood has undergone the loss of vitality, which was accelerated by the obsolete community facilities. In addition, the ground floor public space of the community has been occupied by the surging above-ground parking area.
∇ 公共空間分析 ©一乘建築 Urban space analysis diagram ©Onexn Architects
我們見過公共綠地更改性質建設高樓,這種公共空間的“擠占”實際上比比皆是。因此這一次實踐,我們和業主的其中一個共同目標就是,在滿足功能的前提下去還原一個公共性的節點,要在縫隙中創作。
We have seen public greening plots are rezoned for high-rise development. Such cases in which public space is occupied by other purposes can be found everywhere. Therefore, as approaching this project, one of the goals that we shared with our client was to restore a public node on the premise of meeting functional needs. We had to create within the 9-square-meter narrow space.
∇ 社區商業構成研究 ©一乘建築 Overview of business types in the community ©Onexn Architects
03 策略:想象建築融入在場所中的樣子 Strategy: imagine an “building” integrated into the site
集嶼的前身是一個社區空調維修店,踏勘現場的時候我們發現許多空調零部件及油汙散落在入口前,大家會有意的避讓開這個區域,到幹洗店取衣服或到藥店取藥。居民沒有太多地方可以停留,場所的感受更多是雜糅的或是消失的和模糊的。鄰裏之間不缺乏連接,但缺乏真正的聯係。
The original space was a community-based air conditioner repair shop. The first time we inspected the site, we found many air-conditioning parts and oil stains were scattered in front of the entrance, so people had to detour to pick up clothes from the laundry or take medicines from the pharmacy next to the repair shop. There is limited space where residents can stay since the site leaves a mingled, neglected or blurred impression. The neighbors are connected in daily life, but what lacks is emotional connection.
∇ 改造前 ©一乘建築 Before transformation ©Onexn Architects
∇ 改造後 ©李金輝 After transformation ©Li Jinhui
設計開展最難的部分不是來自於項目自身的挑戰,而是來自於左右鄰居施工中不解的“問候”,不過這些分歧都在施工的過程中逐一的化解,正如集嶼的“嶼”字的寓意一樣,這裏最終成為了大家喜歡的島嶼。
As approaching the design, the most challenging part was not the project itself, but the misunderstandings from the neighbors. However, disagreements were resolved one by one during the construction process, hence eventually making JOYS a place that brings happiness to everyone, just as its name indicates.
∇ 空間原狀 ©一乘建築 Original spatial pattern ©Onexn Architects
麵對寬度不足三米的狹長型場地,我們需要抓住主要矛盾,就是如何讓大家在遠處可以輕易的看到我們,在內部亦可以得到舒適的體驗。
The site is linear and narrow, with a width of less than three meters. The key was to figure out how to make it easily visible from afar while at the same time creating pleasing experience inside the space.
∇ 功能軸側分解圖 ©一乘建築 Axonometric diagram ©Onexn Architects
在建構的整體策略當中,最核心的是立麵門頭的整體考慮。內部定製的置物架與夾層,提升了空間使用效率。
The storefront, i.e. the facade, was given top priority in the overall configuration of structures. In the interior, the utilization efficiency of space was enhanced via customized shelves and the mezzanine.
04 立麵:過度與消解 Facade: transition and dissolving
立麵的構成邏輯,猶如一個建築裝置,嵌入到這個空間單元。立麵的外延是一個屋簷的設計,象征著從城市回到家的感覺,向內則是一段弧線的吊頂,進一步消解和讓人放鬆下來。
The facade is just like an installation that is embedded into the space. The eave is its extension, symbolizing the sentiment of returning home from the city. The inward-facing part of the “installation” is a curved suspended ceiling, which dissolves into the interior and relaxes customers.
∇ 模型 ©一乘建築 Model ©Onexn Architects
遠眺這個空間的第一印象,就是屋簷和它並不喧嘩的質感,空間以親和的姿態敞向社區,形成了一個客廳式的空間場所記憶。我們將原本厚重低矮的燈箱拆除後,空間的前場變得輕盈與開闊,這裏是使得心理產生過渡變化的一個重要區域。
Observing JOYS from afar, people will firstly impressed by its eave and the tranquil atmosphere. The space is open to the community, like a living room that creates memory. After the original heavy and low light box was removed, the front field of the space becomes more spacious and expansive, leaving room for the transition of emotion.
∇ 建築裝置式的立麵設計 ©一乘建築 Installation-like facade ©Onexn Architects
向內部空間延伸的弧形吊頂,以入口玻璃門的頂點,順勢延伸至內部空間的最高點。既消解了內部空間窄和高的局促感,也給這個空間帶來一絲神秘和儀式性的感受。
The curved suspended ceiling extends from the top of the glass door to the apex of the internal space. It mitigates the oppressive feeling in this cramped and high space and brings a sense of mystery and ritual to it as well.
∇ 內部空間的弧形吊頂 ©李金輝 Curved suspended ceiling ©Li Jinhui
在這一道門的內外之間,即便當大門是敞開的情況下,我們仍可以明顯的感受到氣氛會變得安靜和溫暖。
Even when the door remains open, we can definitely feel that the ambience becomes more tranquil and warmer from the outside into the inside of the space.
∇ 模型 ©一乘建築 Model ©Onexn Architects
在施工的過程中,熱心的鄰居時常會幫我們出設計方麵的主意,起初這種交流我們有點抗拒,但漸漸發覺在這樣一種共生的環境下,能提意見和保持交流更為寶貴,至少這種參與性是可貴的。正如入口右側的這一道牆的設計,我們稱這是一個順勢而為的設計,也算是和鄰居的合作成果。
During construction, the warm-hearted neighbors would often offer us advice on design ideas, which we resisted initially, but gradually realized that raising opinions and keeping communication in such a symbiotic environment was significant. We believe at least that their participation is valuable. The wall on the right side of the entrance, which we call a spontaneous design, is a cooperative achievement of the neighbors and us.
∇ 與鄰居順勢而為的隔牆 ©李金輝 Partition wall between JOYS and the neighboring space ©Li Jinhui
屋簷的結構既是獨立的,也是從現狀生長出來的。縫紉機和花池還在原來的位置,新舊的脈絡和依存關係,仍舊良好保留著。
The eave is independent yet naturally “grown” from the whole structure. The sewing machine and the flower bed outside the entrance remain where they were. The order and interdependence of the old and new are well maintained.
∇ 集嶼入口 ©李金輝 Entrance ©Li Jinhui
在集嶼進入運營狀態之後,我們有過幾次回訪,老板娘始終有條不紊的保持著出品,迎接著著客人,入口的座位也常常是大家爭搶的地方。
We paid several return visits to JOYS after it went into operation. The shop owner always served coffee and dessert in an orderly manner, welcoming the customers who rushed to occupy a seat near the entrance.
05 剖麵:光線進入的方式 Section: the way light enters
剖麵的深入研究,是集嶼這個項目成敗的關鍵。因為我們不僅要在小尺度裏,找到更多功能的可能性和放置,還希望這個空間的采光可以得到改善。
A key factor that determines the success or failure of this project lay in the in-depth study of the cross section. We not only worked to create more functions and storage space on the small-scale site, but also expected to improve daylighting.
∇ 剖麵研究 ©一乘建築 Cross section diagram ©Onexn Architects
入口挑高這部分的改造,可以讓日光最大化的進入到室內,這對內部空間有限的采光而言,有著非常積極的改善作用。燈箱這種手段更像一種“凸”的表達,而集嶼的入口更像是一種“凹”的表達,同樣是照明和標誌性,我們希望集嶼看上去有些不同,光的感覺也希望更柔和。
The raised height of the entrance maximizes the penetration of sunlight into the interior, hence dramatically improving daylighting. The light box and the entrance form an abstract contrast of the convex and concave. Through the entrance design, we hoped to give JOYS a different image and make the light appear softer.
∇ 集嶼入口 ©李金輝 Entrance ©Li Jinhui
正立麵豎條形的采光高窗,少量的獲取著白天的光照,可以讓室內保持一種寧靜感。夜幕降臨,它所透出來的光線,又像是一隻凝視著這個城市的眼睛。
A high strip-like window was carved out on the facade, to bring in some daylight while maintaining the sense of tranquility of the interior space. As night falls, the indoor light penetrates it, making it an “eye” gazing at the city.
∇ 集嶼 ©李金輝 JOYS ©Li Jinhui
∇ 內部看向入口 ©李金輝 View of the Entrance from the interior ©Li Jinhui
06 識別感:不存在的存在 Recognition: the existence of the non-exist
LOGO越大,功能的識別感越強,但當LOGO弱化到極小的狀態時,我們是否就感知不到空間了?帶著這個設想,我們嚐試去用氛圍,而不是誇張的形式來創造識別感,就像諾伯爾·舒爾茨提到的 “特定性格與意義的場所”,集嶼的使命應該是朝這個方向去努力。
The larger the LOGO is, the stronger the sense of identity it has. However, when the LOGO is minimized, will we not perceive the existence of the space? With this assumption, we tried to resort to atmosphere rather than exaggerated form to create identity and “a place of distinct character and meaning”mentioned by Christian Norberg Schulz. This should be JOYS’ destiny and goal.
∇ 集嶼 ©李金輝 JOYS ©Li Jinhui
∇ 局部 ©李金輝 Details ©Li Jinhui
∇ 集嶼夜景 ©李金輝 Night view of JOYS ©Li Jinhui
集嶼就是一個精神的孤島,不在意喧囂也不在意冷漠,它完完全全的展開和封閉,既是一個賣場,也是一個修心的地方。達到這種知行合一的狀態,取決於業主和設計師的高度契合。
JOYS is an isolated “spiritual island” that doesn’t care about the hustle and bustle or the difference of the city. It’s completely open yet closed; it provides service yet also cultivates the mind. Its perfect integration of functionality and spirit is based on the consensus and tacit mutual understanding between the client and our team.
因此,它看上去的“不知道是什麼”,激發了人心深處的好奇,空間的氛圍反倒變成了全部,潛移默化的“生根”在這裏,根本不需要去呼喊:“我在這裏”,大家都明白。
At first glance, JOYS arouses people’s curiosity to explore what this place is. The atmosphere becomes everything. It’s rooted here. It doesn’t need to shout “I am here”, yet people can understand.
07 產品:體驗閉環的觀看之道 Products: a closed loop of visual experiences
在室內不足二米六的寬度下,去創造一個精確的體驗和適度的留白是很困難的。我們通過對陳列架體網格化的設計,來控製它的起伏和大小,最終希望每一件物品都有一個獨立的陳設狀態。
It’s difficult to create precise experiences and leave proper moderate “blank” space within an area that is less than 2.6 meters wide. Thus, we resorted to the grid-like display racks to control the ups, downs and size of the field of view, hoping that each product is displayed independently.
∇ 櫃體道具設計 Cabinet design diagram ©Onexn Architects
∇ 模型 ©一乘建築 Model ©Onexn Architects
櫃體的形式做過多版方案,有最大化利用空間的,有嚐試特別的材質語言的。最終我們保留的這一稿方案關鍵有兩點:一是把空間上半部分留白,讓弧線屋麵產生消解的意圖更加強烈,二是櫃體本身裝置化的靈活性。
There were several solutions for the cabinet form: one maximizing the utility of space; one adopting special materials, etc. The cabinet solution we finally chose has two important merits. Firstly, the cabinet is like an installation, full of flexibility. On the other hand, it leaves the upper half of the space empty, which helps “dissolve” the curved ceiling.
∇ 定製櫃體與門頭 ©李金輝 Customized cabinet and door head ©Li Jinhui
這是一個把錢花在刀刃上的項目,完善的咖啡和烘焙操作,獨立上下的個人休息區,這些在起初我們都覺得難以實現的命題,最終都逐一解決了。在十萬元的預算內,建築師采取了很多辦法去節約成本和統籌工期,並且要保證結構的安全性和材料的耐久度。
This is a project that required every cent spent in what’s really needed. Within the space, we set a holistic baking and coffee-making area as well as independent resting areas, while overcoming many other constraints. With a limited budget of 100,000 yuan, we took many measures to reduce cost and coordinate construction period, and at the same time worked to ensure the safety of the structure and the durability of materials.
∇ 夾層與咖啡區 ©一乘建築 Mezzanine and coffee area ©Onexn Architects
∇ 入口看內部 ©李金輝 View of the interior from the entrance ©Li Jinhui
∇ 室內空間 ©李金輝 Interior ©Li Jinhui
對於社區的居民而言,集嶼的存在填補了我們對美好的一種想象。城市空間的同質化嚴重,集嶼並不是一個基因突變的結論,而是業主和建築師關於美好記憶的延續。
For people in the neighborhood, JOYS has realized their imagination for good things. As urban spaces are becoming homogeneous, JOYS is not a genetic mutation, but a continuation of good memories of the client and our team.
∇ 模型 ©一乘建築 Model ©Onexn Architects
∇ 立麵圖 ©一乘建築 Elevation ©Onexn Architects
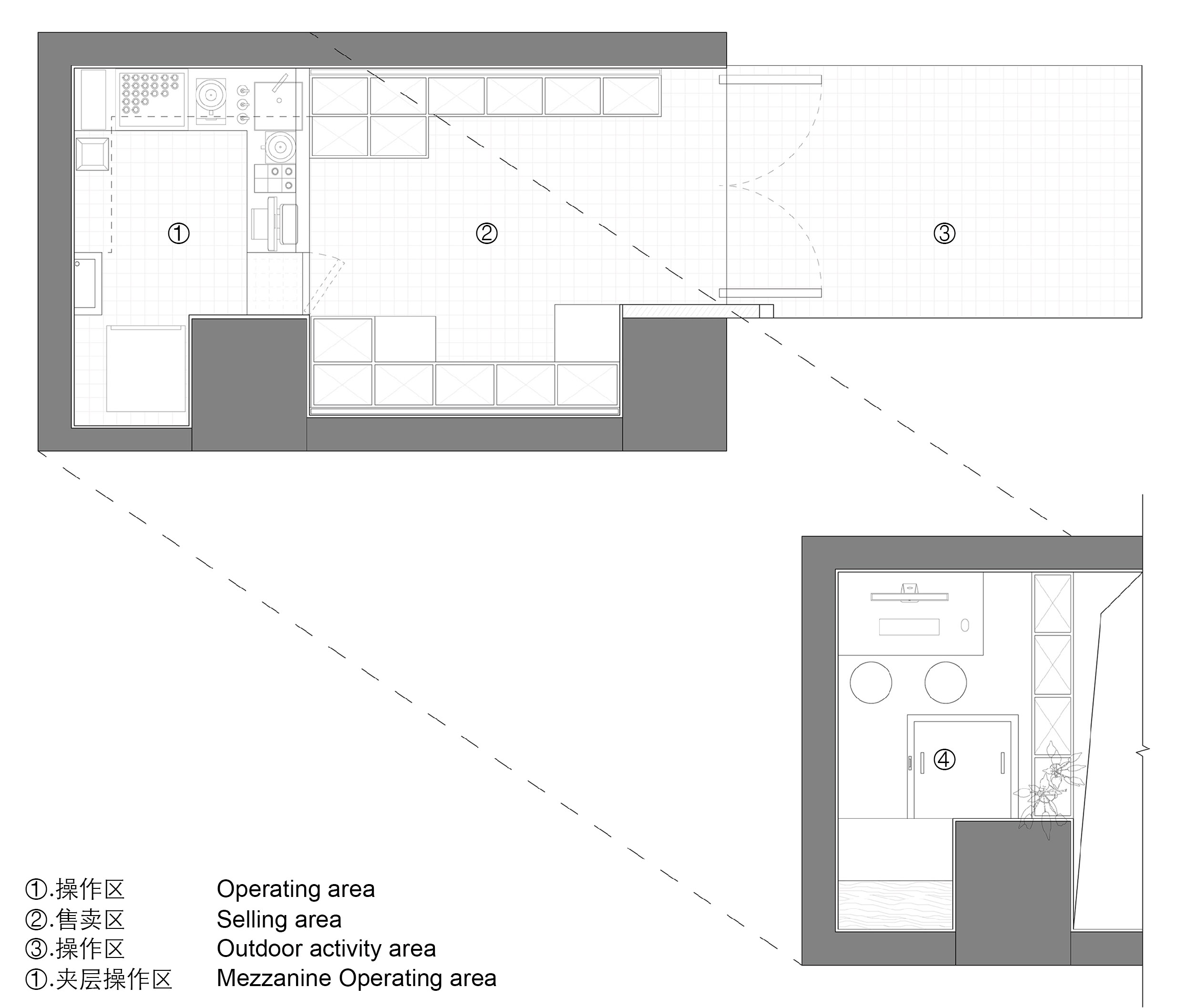
∇ 平麵圖 ©一乘建築 Plan ©Onexn Architects
∇ 剖麵圖 ©一乘建築 Section ©Onexn Architects
項目信息
項目名稱:集嶼 | JOYS
項目地點:深圳市福田區紅荔西路香蜜三村香居閣
設計團隊:一乘建築(http://www.onexn.com/)
主持建築師:張博、王晶晶
團隊:安炳祥、石秋楊、郭曉紅
施工圖:李南芳
施工:質乘工坊
材料:水泥質感塗料、方通、木飾麵、磨砂亞克力、藝術玻璃
燈光:譜迪
規模:9平方米
設計周期:07/2019-08/2019
施工周期:08/2019-09/2019
攝影師:李金輝
Project name: JOYS
Location: Xiangmi Third Village, Hongli West Road, Futian District, Shenzhen, China
Design firm: Onexn Architects(http://www.onexn.com/)
Chief architects: Zhang Bo, Wang Jingjing
Design team: An Bingxiang, Shi Qiuyang, Guo Xiaohong
Construction drawings: Li Nanfang
Construction firm: Essence Atelier Engineering Co., Ltd.
Main materials: cement-texture paint, square tube, wooden veneer, frosted acrylic, glass
Lighting design: PUDI
Area: 9 ㎡
Design phase: July-August 2019
Construction period: August-September 2019
Photographer: Li Jinhui















































