全球設計風向感謝來自 WJID維幾設計 的售樓處空間項目案例分享:
一種心照不宣的見解是,簡約的設計是最困難的。減少綴飾,用體塊的削減、堆疊與線條、材質的碰撞來實現的空間的豐富。
WJID此次運用簡而有力的筆法,使木與石相生共構,令純淨的空間氣質流淌於湖州寶龍旭輝城的空間設計中。
Subtraction/減法
Less is more.(少就是多) ——Ludwig Mies van der Rohe
現代主義建築大師 Ludwig Mies Van der Rohe 在二十世紀初打給空間賦予了新的概念——少就是多。在空間中,WJID同樣使用減法策略,去除繁多的裝飾件與結構體,通過體塊的凹凸與層次,打造內部空間的質感。
設計師使用水磨石製成獨立體塊,創造跳脫的動態視覺效果。通過體塊之間的間隔引入自然光,光線本身賦予了水磨石色彩的漸變,突出了形體光影和虛實的變化。
設計師切削或挖去水磨石的部分體塊,削弱了形體的體量感。經過切削的大理石與木質板材的配合相得益彰,營造出舒適而高級的室內氛圍。
ORDER/秩序
—數學的秩序
建築讓人類有了超越時間的可能,它們之間展示出了一種相似性——高度的抽象性,空間的幾何表現。設計師利用幾何構成,將這種永恒的延續感滲透進了室內空間的構造中。
天花的木質板材連接處呈鈍角,從而創造出了一係列的三角形空間。幾何圖形中的斜角空間不單營造出強烈的運動感和張力,線條交彙也增添了視覺上的延伸感。
延伸的尺度同時也用在了垂直坐標軸上。設計師在上下兩層均使用了排布較密的格柵,使木材有了帷幔般的輕盈與通透。
與此同時,樓梯又給了視覺一個斜向上方的延伸,這種基於積木堆疊的造型,讓樓梯從室內空間中跳脫出來,帶來強烈的視覺衝擊,給人視覺上的變換及精神上的遐想。
—韻律與秩序
尖頂的天花設計由來已久,尖頂空間WJID從自古希臘神殿建築中興起的三角形山牆中吸取靈感,利用不規則的斜麵,創造出富有層次感的空間結構。
建築是凝固的音樂。建築的空間秩序從某種意義來說,便是音樂裏的旋律。體驗一個空間,就像聽一首歌——線條長短的交錯、造型體塊厚重與輕盈的對比、材質的碰撞,帶來旋律的起伏、過渡,乃至高潮。
∇ 沙盤區結構圖
寬闊的空間內,雖沒有複雜的裝飾,但各個角度均有線條延伸、交錯,各個體塊相互連接。這種室內空間的“建築感”給空間帶來了豐盈而不諂媚的觀感。
∇ 沙盤區結構圖
Contradiction and complexity/矛盾與複雜
“建築是形式又是實體——抽象和具體的——其意義來自內部特點及其特定的背景。一個建築要素可以視作形式和結構,紋理和材料,這些來回搖擺的關係複雜而矛盾。”
——《建築的複雜性與矛盾性》
[美] 羅伯特·文丘裏
不同於常規售樓處的功能分區,WJID在空間中單獨圍合出一個下沉式洽談區,運用高低錯落的手法區隔空間,完成了對空間內幾何元素運用的呼應。
洽談區得以形成一個與周圍環境半隔離的狀態,開放與私密在這一刻得到了矛盾統一。
文學作品中有多重含義,藝術也可以透過不同角度分析, 在空間中也到處存在著複雜與矛盾為了與塊麵分明的沙發形成對比,扶手椅、裝飾燈具均選用圓潤的造型,尖銳與柔和的線條交錯排列,呈現出和諧的空間語彙。
設計師使用鋼材製成藝術雕塑,與大理石產生色調上的呼應,又為空間的層次多添了一筆。雕塑的形態同天花的有著異曲同工之妙,百變流轉的線條似是整個空間的縮影。
BALANCE/均衡
軸線暗示著對稱,但它需要的是均衡。各要素圍繞軸線的具體位置,將在視覺上決定軸線組合的力量,是捉摸不定還是壓倒一切,是結構鬆散還是有條有理,是生動活潑還是單調乏味。
——《建築:形式、空間和秩序》
程大錦(Frank D. K. Ching)
格柵的截麵給室內帶來了縱向的平衡與規整,也帶來了變化的光影,讓原本直白的立麵生出了層次感。這一形式也帶來了東方的隱喻,簡潔得恰到好處。
軸線是由空間中的亮點連成的一條線,以此為軸,可采用規則或不規則的方式布置形式與空間。
延續前廳的減法策略與矛盾統一,洽談區繼續向我們展示了如何使用內部空間結構達到感官上的均衡。
吧台與洽談區使用延伸錯落的天花線條與簡約體塊,使整體構成微妙的平衡。
這裏不見繁複的技巧與裝飾語言,設計師運用材質碰撞去打造空間的層次,亦簡亦輕,讓來者的思緒得到洗滌與整理。
敦厚的沙發造型與架上圓潤的陶器在顏色與形態上均有所呼應,整體有一種素樸溫和之感。
WJID運用幾何線條元素,以極具現代感的造型去塑造空間本身的靈動,搭出極具視覺衝擊力的多元層次,完成空間的藝術化表達。
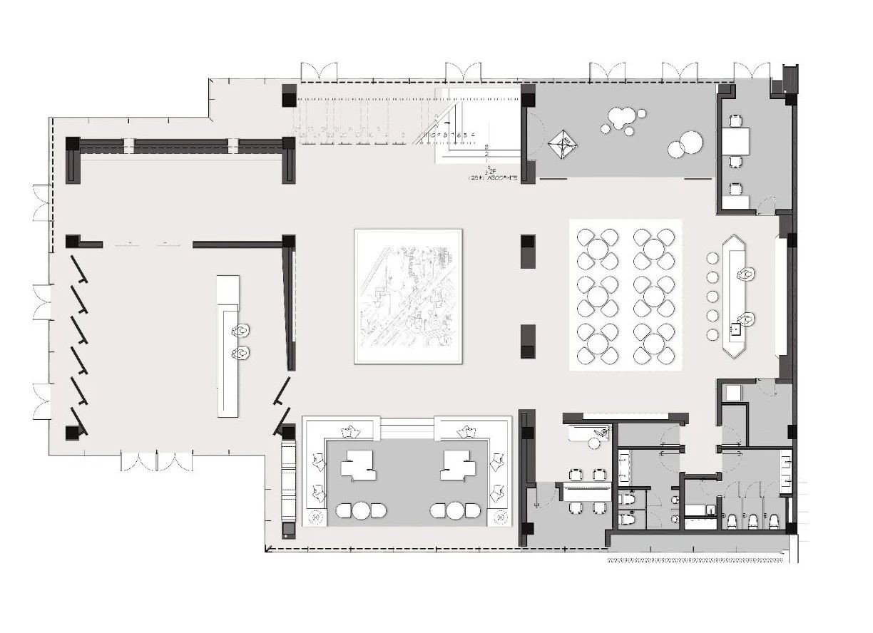
∇ 平麵圖
項目信息
項目名稱:湖州寶龍旭輝城
項目地點:中國浙江湖州
項目麵積:610m²
甲方單位:旭輝集團
硬裝設計:WJID維幾設計
軟裝陳列:WJID維幾設計
完工時間:2020年4月項目
攝影:鄭焰







































