全球設計風向感謝來自 WJID維幾設計 的售樓處空間項目案例分享:
WJID x 綠地 | 風光流韻,回歸純粹的現代詩意空間
一城景色半城湖,湖光水影映洪都。南昌,因水而發,緣水而興,山水的靈光穿透於城市背景。在豐沛的自然條件下,詩性也在其中氤氳而生。
WJID將光影自然融入空間之中,別出心裁地為生活在這座城市的人創造了一段自然探索之旅。
1 溯光
光本是無形的,我們在擁有生命的地方看見了光。一段溯光之旅在靜謐之境爛漫開啟。
金枝開葉,浮光流動,設計師在售樓處迎賓區構築了一個明暗成趣的現代詩意空間。深色大理石麵、原木質牆麵、大麵積玻璃窗消隱室內外界限,讓自然的風景線流動於空間內部。
燦爛的永生枝徐徐展開,勾勒出一道流暢的曲線,成為空間與光的詩意交彙。當帶狀星燈開啟斑斕光境,明與暗交織,陰翳流動變幻,花穗優雅綻開,自然純粹、雋永的生命力在空間娓娓道來。
金屬質地映襯著光,生動璀璨中,花穗仿若來自未知遠方捎來的信件,將時間與情結凝固。順枝葉而伸展,設計師自然地引出動線,順光行至深入,由明至暗,感受著空間故事的起伏。
2 逐光
“對我來說,光與暗的每一個時辰都是一個奇跡”,在光的照耀下,世間萬事萬物獨立而各從其位,構成了詩人惠特曼對生命的美好感知力。這樣的靈感被設計師運用於空間之中。以光作為空間線索,設計師順光而行,在沙盤展示區構築了一片大型星光燈帶。
綠地全球貿易港規劃180萬方體量,打造九位一體的產融生態大城,熠熠星光以一片璀璨之境營造生活的期待感,如恢宏史詩章節,充滿探索與發掘的勃勃生機。
大型滾輪燈帶燦若銀河,浮動於天花,折射出空間的紋理。以形態塑造的方式,空間氣勢恢宏而出,寓意綠地全球貿易港未來將為城市發展帶來新機遇。
星輝斑斕的光境猶如時空隧道,連結著空間兩端。在此開啟一場舒適、快意的城市逐光之旅,惹人生想,在光未知的另一端,是否會邂逅一個未知的明麗夢境。
3 生色
時間釀就了南昌的曆史與風韻,傳統的印象與氣質在城市派生。於是乎,設計師將城市的古色古香提煉為空間顏色、材質的巧妙搭配,提取南昌市花金邊瑞香之色貫穿於不同功能區的運用。
明代王十朋在其詩《瑞香花》中吟詠道:江南一夢後,天下仰清芬”,瑞香香氣倩麗,更有祥瑞之意,運用於空間中不僅調和氣質的搭配,更有今風與古韻的交織,無形中完成了空間於時間維度的對話。
空間運用大麵積灰飾牆麵與局部的柔媚粉色調和,傳遞出現代、優雅、奢貴的氣質。在帶有更強私密性的深度洽談區,設計師通過形似屏風的弧形曲麵立柱構築起一片自成畫意的空間。薄幕窗簾氤氳出空間的朦朧氣質,紅色紗簾稍顯複古趣味,座椅摩登、洗練,演繹全新都市輕奢風。
局部空間座椅黑白色折射出經典意味,創造出一種平靜、愉悅的氛圍。獨特的椅形設計宛如貝殼一般生動明麗,曲線廓形設計帶來舒適觸感。椅座之間相互映襯,呈現雕塑般觸感光澤。
開闊的空間以簡明線條形成功能區分割,使空間錯落,形成起伏節奏,宛轉而有探索的意境。圓潤弧形立麵柔和淡雅,削弱了空間的體塊感,創造出戲劇一般的細膩感受。
4 詩韻
現代空間與悠悠氣韻交相疊加,多層次切割的手法犀利幹脆,將柔銳巧妙過渡,猶生畫境,像是簡單明麗的詩歌,溫潤人心。這是一片中西交彙的盛景,磅礴卻不喧囂,將大象顯露於無形,現代中不失古韻的影。
設計師通過詩意叢生的造型工藝創造出一個頗具亮點的水吧區,呈現猶如奢貴櫥窗之感。暖色燈光裝點下,陳列植物幹花束盡顯生命本色,帶來博物館一般的豐富物種之美。
巨幅藝術畫是整個公共洽談區的視覺中心,絢麗的顏色鋪染通過藝術化的表達傳遞落英繽紛的意境,畫中留白帶來想象空間,又有構圖平衡之美。出色的色彩編織潑灑、漂浮、姹紫嫣紅、盈盈生動,似凝固抓取了花瓣飄落的瞬間。
奶油白糅合豆蔻紅串聯編織出一個夢幻空間,溫婉而雋永。空間散落著濕潤的苔蘚,零零星星,如同神秘的星球部落。刹那間,將人帶入童話世界。
金屬元素為空間帶來硬朗的工業感,形成整體空間剛柔並濟的平衡。紅色曲麵座椅畫龍點睛,為局部創造質感體驗的火花,意趣十足。
天光自天窗灑下,為空間更添夢幻感。在美感之上,設計師盡可能地使局部空間的功能性最大化,通過多元的讀物為空間注入人文氣息。在此手捧一杯咖啡,隨心翻閱一本讀物,便可享受精心閱讀的時間。
綠地全球貿易港擇址南昌新建區九望新城,著力打造成為昌西片區產城融合示範區,項目近享15公裏濱水岸線、20公裏休閑活力綠廊、1650畝濕地公園,建築本體以「帆影」之形構築,意圖為城市發展帶來一段新征途。
WJID以現代詩意的構思
讓中西氣質交彙寫意
使古韻在現代感中明媚新生
呈現了一段自然快意的逐光之旅
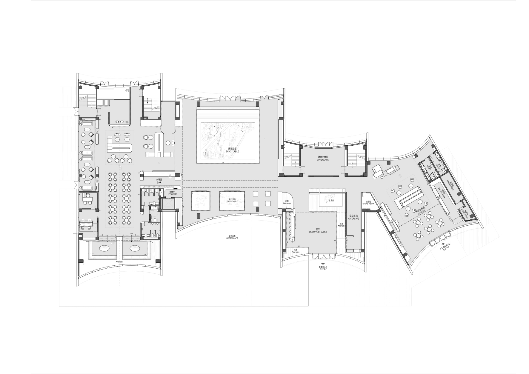
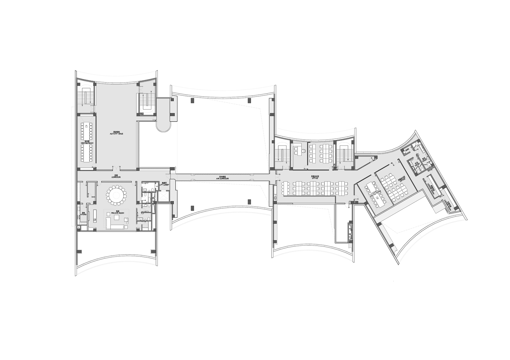
平麵圖 DESIGN PLAN
∇ 一層平麵圖
∇ 二層平麵圖
項目信息
項目名稱:綠地全球商品貿易港售樓處
項目地點:中國 南昌
項目麵積:2800㎡
業主單位:南昌申晟置業有限公司
業主代表:王鈞、塗峰俊
硬裝設計:WJID維幾設計
軟裝設計:WJID維幾設計
燈光設計:MLD暮恩燈光設計
建築設計:UA尤安設計
景觀設計:泛亞國際
完工時間:2021年3月
項目攝影:叁吾特影像-康超凡










































評論(1)
學習