歲月的沙塵 抹平了原來的痕跡
一場突如其來的風 卷起萬物,拋向空中
打散揉碎,分離重塑 浮雲褪去,塵泥洗淨
本質逐漸顯現
01 自然本質
興輝國際總部位於中國佛山,是一家擁有著悠久曆史和行業光環的建陶品牌,猶如曾經的風華少年,經過歲月的磨礪,以及市場的激變,進而蛻變、整合、重組演變出新的生命體,煥發出新的光輝。正因如此,設計師希望通過藝術化的方式來展現品牌在市場大潮中這樣一種蛻變的過程。
以黑白灰三種經典石材搭配的大堂空間場景簡潔明快,這代表了品牌對天然石材的還原程度,連紋大理石和水泥質感的啞光磚還有金屬釉麵表達出品牌對產品發展方向的追求。設計師用厚重的體塊將三種不同材質交織疊加在一起,營造一種糾纏依附的生命體狀態。
設計不僅塑造空間,也塑造情境。大堂接待區天花以枝蔓與蕨類植物交織而成,水泥質感的牆麵搭配透光玻璃磚牆,營造一種自然又寧靜的空間氛圍。以盎然的綠意喚醒觀者對環境的敬畏與感悟,撇去日常的紛擾與虛妄,目之所及皆是生命的自覺與自省。
輕盈的線條燈飾飄帶在空間中形成流動的動態韻律,串聯起不同的場景區域,創新的呈現方式引領訪客深入感受藝術魅力。空間的縱橫疊加與開合,在光影的配合下,有序、豐富、鬆弛、層次分明。
設計環繞著空間虛與實、材質肌理的配比、光與影的變化,將生活溫度與未來科技感糅合,將空間體驗從平麵空間延展至更深遠的世界,或將內心體驗置於外部體驗之上,不斷地將“我”向四周滲透,立足於超越現實的一種彼岸眺望。
02 風再起時
恩格斯在《自然辯證法》中說:“事物的發展都呈現出一種螺旋形的上升運動”。這讓人聯想到“龍卷風”的形態,設計師通過一個“龍卷風”不鏽鋼藝術裝置表達了品牌發展的迂回曲折之路,也凸顯了空間的主題。
龍卷風通過卷起地麵塵土而變得有形,並且極具力量性,又具有某種形式上的視覺美和強烈動感。龍卷風在空間中彌漫開來,不停地向上旋轉,表達出一種運動不止生生不息的生命特征,代表了品牌強勢上升的發展狀態。
不同形態的體塊材質以某種特定形式聚合在一起,將圍合的表麵分解為大量幾何彎曲,並通過潛在的秩序,將離散表麵重新排列組合,如同旋風在空中劃出的軌跡。
交錯的線狀元素切割出抽象的連續,如同曆史的傷痕,抽象再現的過程,在形與質之上,疊加、延伸、穿插,動態的視覺衝突消減了空間的實體感,仿若無厚度無重力的太空體驗。
03 時空秘境
時光荏苒,鬥轉星移,空間仿佛歸於平靜,設計師用波紋不鏽鋼以及星空係列產品營造一個超現實“時空秘境”。綠色玻璃鋼製成的裝置仿佛太空飛船,在璀璨的星空裏遊弋,藤蔓從空中垂吊下來,外星生物像螢火蟲一樣散發出魅惑的光芒!
在這裏,現實維度的邊界仿佛消失了,猶如進入潘多拉星球之中,通過鏡麵材質達成這種混淆現實的設計手法,試圖在過去與未來之間建立對話,暗示著一種對未知時空和永恒的追溯。感悟大自然給我們生活的啟示,滌蕩心靈。
素雅的水泥灰岩板搭配綠色奢石岩板訂製的廚房空間,再加上藝術自然景觀的植入,使家居空間也能超凡脫俗,凸顯出產品的獨特美學質感。營造出高冷神秘的空間氛圍,並使用高反差的色彩和質感進行對撞融合,鋪展開不同層次的美學交彙。嶄新的空間體驗中亦賦有文化的內涵,設計師試圖營造一個溫暖、純淨的生活社交場所。除此之外,環境光元素也是設計的焦點,光影在其間交相呼應,展現出一種藝術感和現代感的美。
04 悠然寧靜
在設計中成功地運用了光線的變化,並采用質樸的材質與之呼應,通過充滿詩意的自然場景,激發出人與環境之間的共鳴,令溫潤的城市人文與空靈的詩性自然相合相生,讓空間裏的每一個細微之處,都向外散發出一種對自然,對空間更具深刻的敬意。
這裏除了幹淨純粹,沒有裝飾語言,沒有技巧,我們試圖在自然,景觀與建築的一體中,創造一個空間,看光影交疊,靜聽萬物。
將窗外的自然生態環境引入室內,綠樹成蔭,光影變換,陽光揮灑。正是這精心構建的方寸天地,讓大堂吧氤氳著鮮活生氣,更具格調,給人以城市綠洲的奇妙感覺。
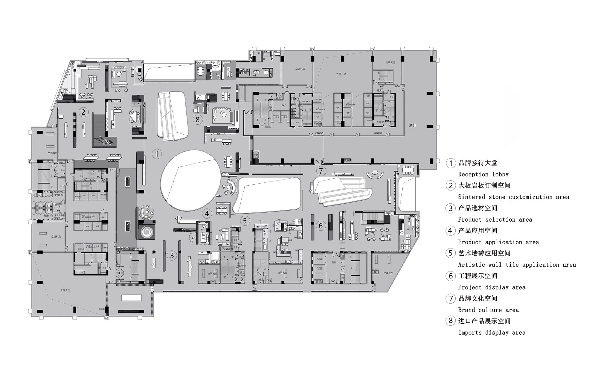
∇ 平麵圖
項目信息
項目名稱:SANFI興輝國際總部
項目地點:中國佛山
設計機構:佛山市拓維室內設計有限公司
主案設計:汪誌科&李小水
參與設計:盧仲文、邱文峰、黃建賀、蘭菁薇、賴玉琴、劉洋鑄、周穎鴻、張亞洲
項目麵積:8000㎡
竣工時間:2021.04
項目攝影:歐陽雲
項目撰文:蘭菁薇















































