閱讀是一座隨身攜帶的避難所。——毛姆
一千年前,從羅馬人的藏書室裏走出去,沒有幾步就是神殿,彌爾頓說“書不總是死物”,書的神性力量伴隨著人類漫長發展的長河,在博爾赫斯的圖書館之歌裏,昏昏茫茫的書架也讓人失落,但構建導向真知與自由的圖書館建築仍是每一座城市的向往。
200萬年前,遠古時代的不同文化人類群體在張家口交彙繁衍。他們在這裏開墾出第一片耕地,開啟了中華文明之先河。自此,這片土地再不肯荒蕪,東方人類從這裏走來,中華文明從這裏走來。伴隨著冬奧會的來臨,張家口正在向世界展現其嶄新麵孔。
∇ 張家口圖書館外觀全景 ©史雲峰
微縮地景 – 凝聚城市人文精神
張家口依山傍水而建,北、西、東三麵環山。中央峽穀地帶,張家口圖書館、檔案館、博物館、規劃館四館合一,三個大小錯落的建築體塊合而不同,向南敞開。建築表皮以可回收的孔洞板為材料,當代藝術化處理手法使整個建築群成為區域性微縮地景。
其中東側圖書館規模最大,總建築麵積22000平方米。總藏書量約110萬冊,閱覽座位2100座。圖書館內開架區域書庫與閱覽區緊密結合,實現了“藏、查、借、閱”的結合模式。
少非空白而是精簡;多非擁擠而是恰當。在這個項目中,經濟即美學。新,不代表顛覆;舊,更指優化成本精準設計,摒棄瑣碎繁複的裝飾,室內設計遵循係統設計原則,在建築設計的邏輯上進行延展。
建築是人造的層疊藝術,解決受限,創造用途、情感和感覺的空間。整體建築空間采用一體天花幕牆和中空設計,各層平台和主樓梯定義了圖書館各功能區和外觀架構。
內部統一在灰白色的水泥掛板與原木的質感之中,光線從頂部以不同角度傾瀉下來,人們遊移在光影層疊的構圖與遮蔭中,視覺也擁有了一絲趣味性。
複合空間 – 詮釋場所公共屬性
現代圖書館不僅是一個貯藏和借閱的場所,更是一個讓人願意駐足停留、社交互動,觸發靈感和驚喜的空間,在不同場景中輕鬆實現“從書籍到交集”的轉變。在未來城市生活中,它將成為聯結市民與知識、體驗、創造的紐帶,在城市尺度內,挖掘社區需求和可能性,激發場域的新鮮活力。
圖書館是書的載體,當書的概念融入空間,時而抽象,時而具象,但總能傳遞出力量。從“大中小”三種尺度,到“黑白灰”三種明暗層次,以“三生萬物 ”結合模數化設計完成內部設計邏輯。
“書+架”以格子構成的方式進行排列組合,從二維平麵轉換為三維立體空間構成,串聯出空間的主題和聯動。
地麵將原建築室外廣場鋪裝進行延伸,采用條形淺色三色水磨石材拚裝,與總體設計協調統一並有機變化,降低材料損耗率,並通過設計語彙將圖書館的內部空間與外部建築空間有效融為一體。
讀者從負一層主入口進入,中庭內多功能廳(小型劇院/大報告廳)的“藝術裝置化”造型極具上升感,削弱了原有建築結構形成的“峽穀”般的壓迫感。多功能廳作為視覺焦點,有如館內心髒源源泵出活力與能量,激活也穩定整個空間。
同時,格子元素以不同秩序排列,內部填充優質吸音材質,從專業的聲學角度有效地解決了大空間的消音降噪問題。
大報告廳的屋頂與二層相連,形成了一個階梯形的小廣場。天然綠植間隔排列,與負一層的綠色形成了豐富的視覺層次感,同時拓展了空間內動線,讓人與自然、人與植物都能在一個相對開放的場域內完成自發性的行為。
張家口的日照較為強烈,再加上孔洞幕牆式建築表皮處理,令室內光線較不適合閱讀。設計師在規劃平麵時,巧妙地將采光較強的一側設計為具有舞台效果的長廊,閱讀區則向內收緊,時時變幻的光線成為聚光燈,照亮閱讀者的未知世界。
文化審美 – 塑造社會價值
精神文明的建設離不開文化基因。圖書館可以承載時間的洗禮,為人們的藝文生活擴展維度,塑造人與建築互動的深度體驗。一座公共圖書館如同城市之肺,供養著人們的精神呼吸,為不同時代的人完成療愈。
現代化圖書館配備豐富的智能管理設備,在出入口維護公共秩序和安全。自助式寄存、辦證、係統檢索配合LED信息屏幕對館內信息進行流動展示,技術的便捷讓人們可以輕鬆獲得想要的資訊。
設計師如導演般分配不同角色的站位和動線,如何進入、如何演繹、如何把控彼此的關係。開放空間平麵支持不同年齡和不同需求的人在這裏共同學習、互動、聚集。空間區隔也以促進多方交流為目的,提供自發偶遇的空間情境。
青少年閱讀區作為高頻使用區域設置了多元的藝術體驗。身心疲憊時,可以進入多維影視區或者音樂小屋,感受獨處的自在時光。低幼區擁有最好的采光,孩子們可以在這裏安全地探索、盡情地玩耍。在洞穴中閱讀、在兒童影院暢享視聽樂趣。
除了特定功能空間,部分區域還預留了未來可能性。空間材料透明度保證了通覽各類活動的透明度;牆體的開合與關閉重新塑造空間表情;模塊化的組合讓空間靈活變身為畫廊、音樂廳、錄音棚、活動場地等。
各種基於曆史脈絡、文化習俗的活動在這裏上演。館內設有一個私有博物館,陳列著張家口的曆史資料,透過小窗口,可放大千年曆史過往。沒有過多的視覺符號和形象特征,但卻流暢而精準地傳達一座公共建築應有的姿態。時刻關注內外空間創造的氛圍及其在城市生活中的變化。
冬奧會期間,張家口將成為國際化的交彙點,更多文化交流將在這裏碰撞。它像一顆傳遞文明的種子,給予現代人啟示。“圖書的建築”不斷更迭演繹,雖不一定導向絕對的真知,但那代表著人們和他們所在的城市,永不止息的精神建構。
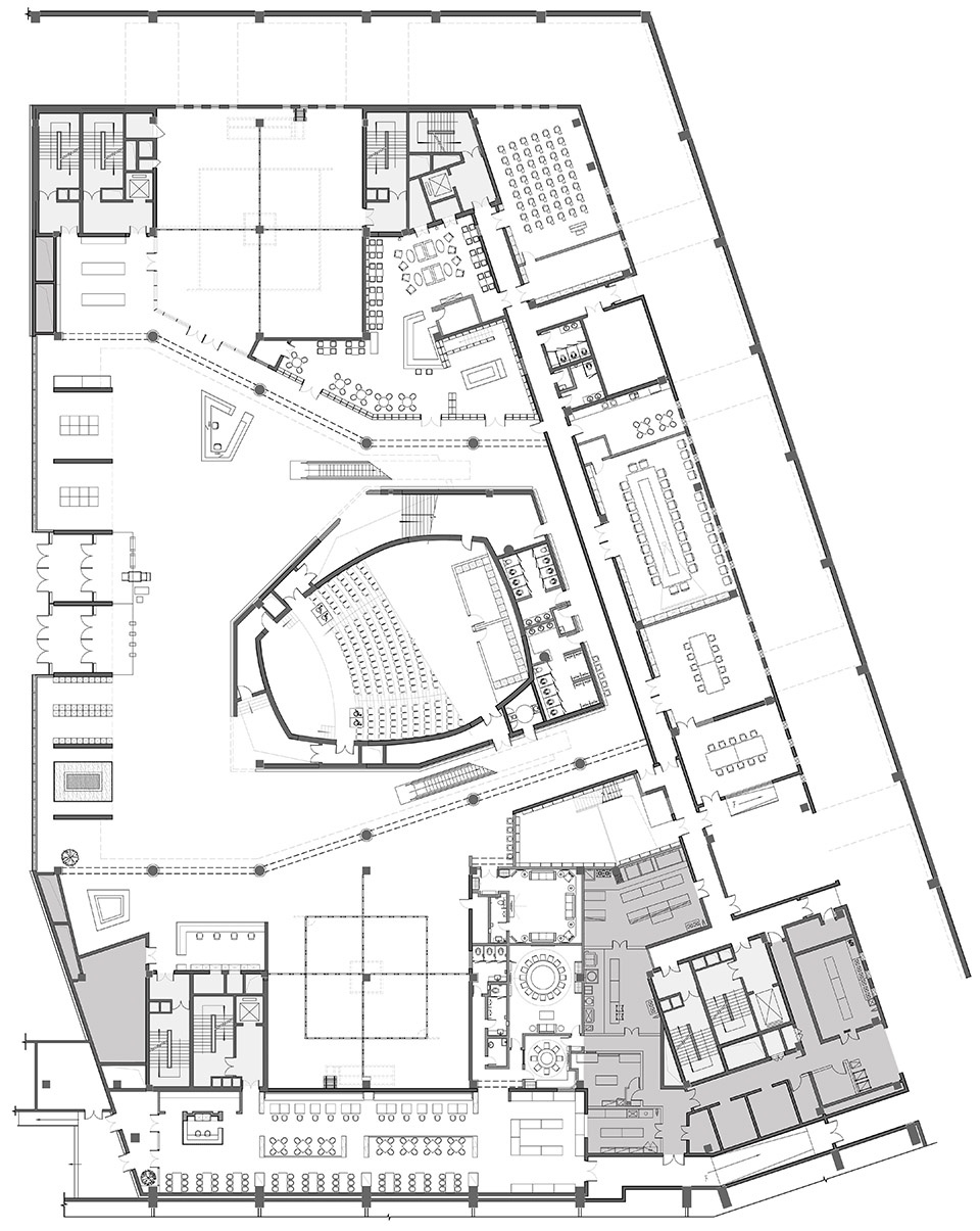
∇ 一層平麵圖 ©天作空間設計
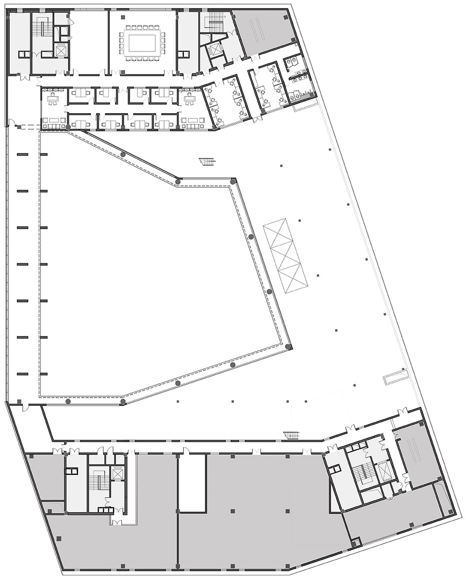
∇ 二層平麵圖 ©天作空間設計
∇ 三層平麵圖 ©天作空間設計
∇ 四層平麵圖 ©天作空間設計
∇ 五層平麵圖 ©天作空間設計
項目信息
項目名稱:張家口圖書館
設計方:北京天作空間裝飾設計有限責任公司
項目設計&完成年份:2020
主創及設計團隊:王大泉,天作設計團隊
項目地址:中國·河北張家口
建築麵積:22200㎡
合作方:清尙設計院
客戶:張家口圖書館
項目攝影:史雲峰
項目視頻:肖石明
文案策劃:NARJEELING那幾嶺














































