建築與室內的奏鳴曲
2001年,意大利建築大師Vittorio Gregotti受邀擔綱上海新浦江城的整體風貌規劃。20年後,壹舍設計新辦公室喬遷揭幕,搬入由他親自打造的華僑城中意國際標誌性兩層獨棟,一場穿越時空的設計對話由此開啟。作為企業聯結員工的重要載體,新辦公室既關乎物質體驗,又寄托情感認知,還彰顯企業形象與審美表達,這也為壹舍團隊貫徹一直所秉承的設計理念提供了絕佳的實踐機會。
“良好的辦公氛圍,對於工作效率以及員工情緒都有著積極影響。我們希望在場地規模、功能布局、使用體驗、設計賦能等維度,創造出健康舒適、靈動便捷的工作環境,為團隊的成長壯大提供足夠的空間支持,並助力我們更好的應對行業發展所麵臨的全新挑戰與快速變化。”設計師方磊坦言道。
01 建築之基 設計對話
建築本身呈L形狀,由橫縱兩個體塊交接圍合而成。室內設計也基於場地、體塊特征而展開。設計師打破原先的內部結構,厘清需求並回歸本源,在複合布局中探尋自由的可能性。
主入口毗鄰兩翼交彙處,踏步長廊不斷延伸引人深入,內外銜接共同構築寬敞的前廳,儀式感與大氣格調不彰自顯。基於側麵窗口尺度與比例關係轉折而出的金屬板與壹舍LOGO,純粹的用材與配色,在伊始就奠定幹練簡約的麵貌。
接待前廳宛如樞紐一般,不同的功能分區圍繞其向兩邊蔓延,追求開放性與流動性。基於原始建築的大片窗體,塑造出重複式、陣列式的套口秩序。多處挑空讓光線得以平穩保證,也為兩層之間注入了互動,令交流滲透發生。
接待前廳上方覆以表皮形式,通過不同間隔的有序分割,既起到過濾作用,又不影響采光,還產生虛實結合與對比。這一元素以及處理手法同樣貫徹於接待前廳的另一側,透過借景方式,豐富這一隅的表達呈現。它是內斂含蓄的,也是通透開放的,張弛有度、隨性自如。
考慮到原始結構的特殊性,圓弧樓梯得以保留。一躍而上的旋轉姿態,增添了一抹優雅。硬朗光滑的表麵與靈巧柔和的形態,彰顯這一場域的理性與感性平衡。
在L形的兩個末端位置,也均設有樓梯,進一步提供便捷的垂直動線。端景處安放兩列條狀鏡麵,既方便整理儀容,亦能在映射中帶來趣味。線形護欄則以極佳的韻律,自成一道靚麗風景。
02 展廳賦能 新品亮相
ONE CODE(簡稱OC)是方磊帶領年輕化團隊推出的原創家居品牌,囊括餐桌、座椅、茶幾、邊幾及燈具等等。作為ONE HOUSE壹舍設計的觸角延伸,代表著一種對生活日常的編碼與重新詮釋。值此契機,希望其能展陳公示於新辦公室之中,但又要避免生硬直白的堆砌,誠然這也有一定挑戰。
設計師最終通過策展思維,讓這裏幻化成一座大舞台。展示區選用了頗為常用的工程材料——空心磚,並以此堆壘出微縮版的樓宇形態,錯落林立,卻又渾然一體。產品也立於各自契合的位置,演繹出“遠近高低各不同”的風景,統一之中又蘊藏變化性。即便後期展覽主題更新,也同樣可以機動轉化。
空心磚內壁塗以綠色裝飾,蓬勃生機的植物同樣散布於此,既不會過於跳脫,又有一定的互融性。展示區采用回型動線,每一個展示麵都設有開口路徑,可踏入內部。穿梭其間,借助動態的影像、靜態的展陳、敘述的文字,進一步豐富人與場所、產品的關聯,也傳遞情感與價值認知。
03 公共配套 人文關懷
L型另一側以深色為基調,旨在將外部的自然風光更從容的引入進來。移門劃分沙龍區與會議室,彼此既可相對獨立,又能聯合一體,其可變性也為滿足後續不同規模的情景使用創造了條件。
沙龍區末端和兩側樓梯處如出一轍,設置兩個條狀鏡麵,形成映射作為空間的延展,充盈著場所的情緒與呼吸感。
挑空處通道,仿若悠長的小巷。循步深入,餐廳予以木質包裹出靜謐之感,多元的落座形式,高低錯落的關係勾勒輕鬆的氣氛。
穿梭於此即可領略不同的視覺體驗與心理感知,也流露出設計的周全思考和對員工的細致關懷。
適宜的尺度、考究的塊麵、精準的比例,實現吧台造型與功能的契合表達。咬合穿插凸顯材質呼應之餘,也強化了細節表現。
∇ 餐廳剖麵圖 – 大堂剖麵圖
∇ 走道挑空剖麵圖
04 輕鬆辦公 自由氛圍
一層涵蓋接待、展示、會議、休閑屬性,二層則為集中辦公區。從日常的工作模式、行為習性出發,在開放的布局中注重社交與互動協作,同時也提供獨立式空間,更加匹配員工的真正所需。
順著圓弧樓梯抵達二層,兩側牆體以錯位框景打破單調。連接兩大開放辦公區的通道隨即映入眼簾,從實用性考慮,將原本的麵寬適度縮減,並設置整麵的暗藏櫃體,刪繁就簡,旨在帶來更優功用。
開放辦公區避免了傳統格子間的隔閡之感,又借助洞洞板建構起朦朧的趣味。工位的排布,並未完全工整對齊,而是采用長短穿插的韻律,透露出動態與活力。
凹凸不平的肌理、略顯斑駁的立麵烙下質樸的印記,再輔以洗牆燈,捕捉並發揮光影的別樣魅力,更顯虛實相生之美,於細節處也充盈著雅致的情調。
對原有立柱進行規整並合理增設表皮裝飾,映襯出一絲絲的英倫工業風,饒有情趣。“我們想要營造一種微妙的反差感,移步換景之間,能感受到新舊融合、時光交疊的美學深度。”方磊補充道。
透過比例關係、細節肌理、工藝質感、色彩搭配、乃至燈光勾勒,無一不印證出壹舍團隊對克製平衡之道的一貫秉承與統籌。不同結構與材質的巧妙融合,軟硬交織、剛柔相濟,生動詮釋出兼容並蓄的風貌。
開放辦公區的一隅還配有討論區,此外也還預留出兩間獨立會議室與之互為補充。既有輕鬆氛圍,也有私密場景,無論是用於非正式會談,還是商務溝通,皆具靈活性與可選性。
操刀獨立辦公室時,設計師同樣以簡練的筆法描繪,開敞與自然是不變的主題,回歸純粹,喚起情感觸點。
主理人辦公室延續其由衷摯愛的現代簡約風範,選材和用色皆和外部空間有著一定的關聯。這裏兼顧了辦公、待客、小型討論的多樣化用途,此外還置入相應的配套支撐,強化舒適度與便利性。
暗黑基調打底,包容、低調且高級的質感油然而生。石材上凹凸打磨的痕跡,一定程度上弱化了方正的棱角,顯得鬆弛與率性,也滋養出韻味與光澤,別有一番玩味。
南側和西側分設兩個露台,讓員工也能置身於戶外自然之中,遊目騁懷,與藍天綠意相依偎,在工作與閑適的狀態間無縫切換。
壹舍設計新辦公室,立足開敞通透的架構,讓室內與戶外、建築與景觀緊密交融,又以簡約的設計語言,飽含人文關懷的細節巧思,顯得靈動又舒適。設計師方磊補充說:“此次喬遷,不僅僅是辦公環境的改變,還意味著壹舍團隊對新篇章的實踐與期待,承載著更多的美好願景與希冀。”
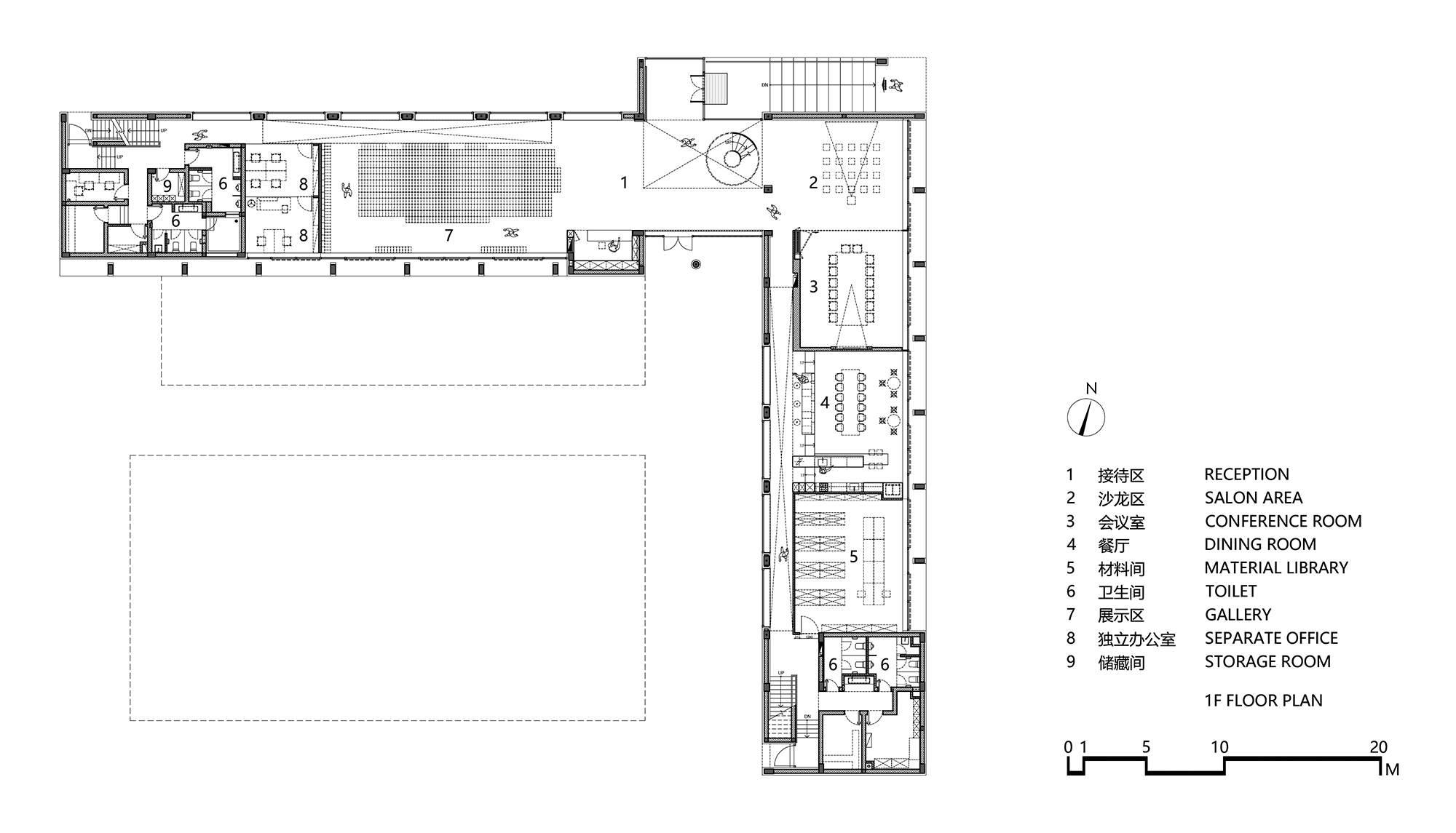
∇ 1F平麵圖
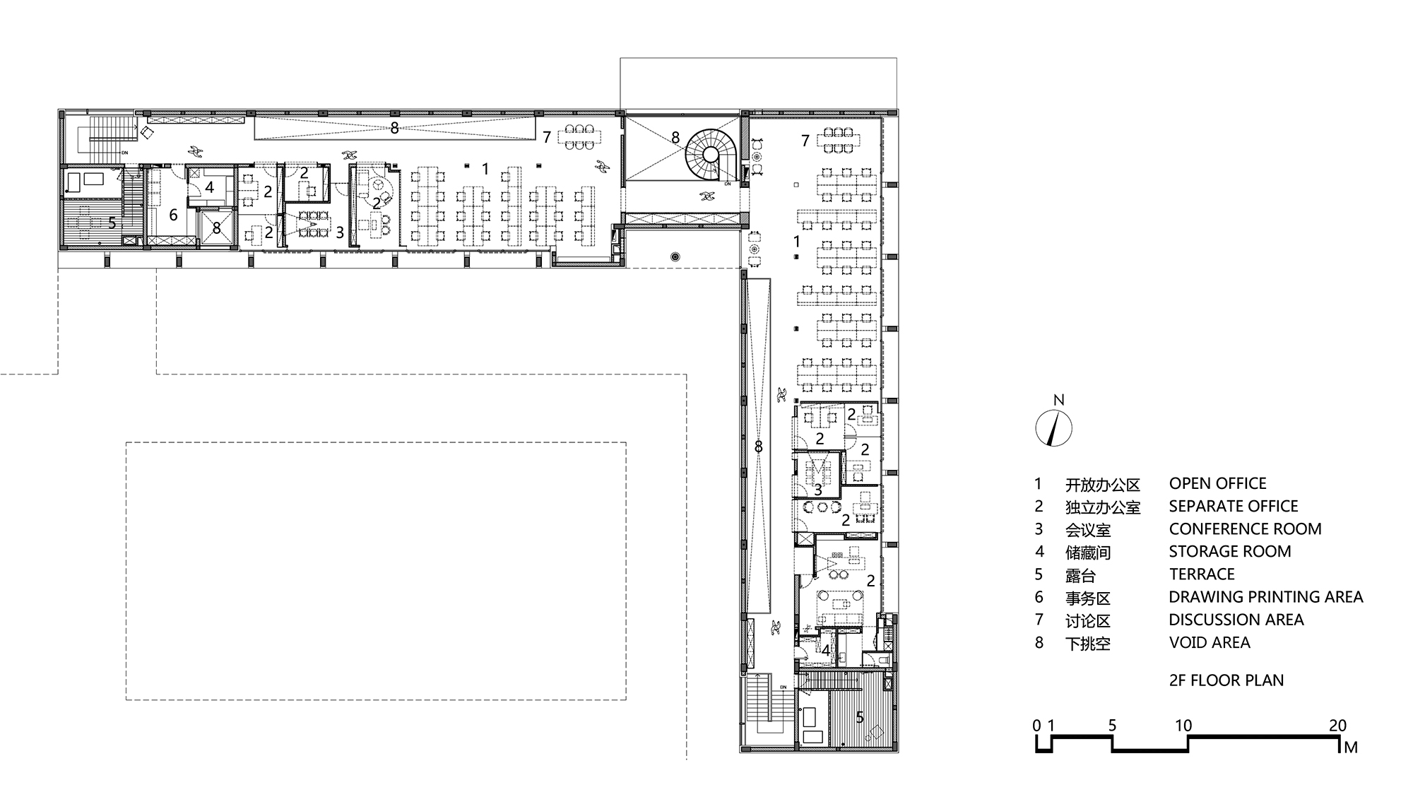
∇ 2F平麵圖
項目信息
項目名稱 | 壹舍設計新辦公室
項目地點 | 上海
完工時間 | 2021年10月
設計公司 | ONE HOUSE DESIGN 壹舍設計 www.onehousesh.com
設計主創 | 方磊
參與設計 | 胥磊、劉滄田
視覺陳列 | 李文婷、孫雨辰、李美萱
項目攝影 | 朱海、張靜
方磊,現代簡約設計先行者,都市精英生活方式引導者,壹舍設計創始人。
近年來獲得諸多國內外室內設計大獎。他認為設計師思維是感性與理性的結合,擅長用現代簡約的美學精神展開空間多維描述,以克製與平衡的手法、表象和內在的矛盾統一來表現豐富而純粹的設計本質。
ONE HOUSE DESIGN壹舍設計由方磊創建於2009年,凝聚了一批擁有前瞻性理念、國際化視野的活力團隊。作為集室內設計、軟裝設計、環境設計等一體化的綜合性專業設計公司,壹舍主要從事地產售樓處、樣板間、會所、商業空間、辦公空間、精品酒店等設計項目,為眾多知名地產商提供至高水準的個性化定製服務。以過硬的專業能力和不懈的探索,積極麵對未來與市場的全新考量,致力於當代新人居觀念的啟迪與更新,為設計提供更多可能。




















































