坐落於上海UCCA Edge三層的New Wave by Da Vittorio,是UCCA集團旗下的第一家美術館餐廳,旨在發掘中意文化對“家”本味的理解,同時將高端餐飲體驗與藝術空間進行有機融合。New Wave的名字以UCCA開館展“‘85新潮”作為靈感來源,作為中國20世紀最重要的藝術運動,是一場對於新與舊,中國與西方藝術觀念之間碰撞及重構的實驗,也首次將中國藝術帶入進國際視野。New Wave餐廳的設計概念也來自於對立元素的碰撞,過渡與重構。
Linehouse嚐試像策展一樣通過打造一序列空間來編策不同元素的陳列組合。基於古典西方建築的柱廊空間構成,以及柱廊結構營造的空間秩序感,我們將圓拱的形態引入空間作為原型,隨著主吧台-室內用餐區-室外用餐區幾個主要區域的動線變化,這種抽象化的柱廊空間將食客由公共開放的美術館空間引入至私密的用餐空間,空間經過狹長通道的擠壓到用餐區釋放,四麵環繞且有序排列的拱形鏡麵製造出戲劇性的視覺幻象,感官體驗在層層遞進的空間中得到無限延展。
遍布整個餐廳的天花掛布裝置設計同樣也是在由大小韻律變化的圓拱體塊交錯切合形成的抽象負形中誕生的。掛布由一種特殊編織肌理的日本塑膠麵料製成,結合切割的流線型態以及整體形成的雲霧一般的輕盈體量給空間帶來柔軟的層次。
整個餐廳我們尋求通過材料來表現元素的對立衝突:柔軟與堅硬,粗糲與光滑,有序與無序,堅實與透明。材料作為感官的催化劑在空間中創造出驚喜。
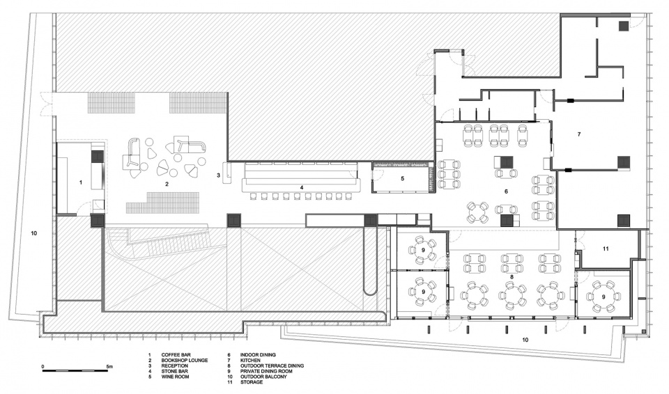
∇ 平麵圖
項目信息
完成年份: 2021
麵積: 620平方米
客戶:雲覓餐飲
建築設計師: Linehouse
設計總監: Alex Mok, Briar Hickling
設計團隊: 童靖茹, Inez Low, 邵愛文, 林豔, 郭嘉寶, 鍾承佑
地址: 上海市靜安區西藏北路88號2層





















