項目位於上海法租界淮海路上的一條弄堂內。房屋本是一幢建於1930年的花園洋房,但相比一牆之隔、保存完好並修複如初的曆史保護建築,這一幢洋房已經在將近100年的歲月中曆經風霜。層層加建和改造,讓位於一層的房間和院子,早已丟失了原先妥帖的平麵布局。房屋主體結構兩邊加建出來兩個細長的翼,如臂膀一樣環繞了小院子;而最有趣的是一根被漆成金色的閃閃發光的愛奧尼柱佇立在一進門的房間的正中央,猶如一根定海神針。
由於綠瑩瑩的小庭院以及滿牆的爬山虎都在上海彌足珍貴,麵向小院子的每個空間都被設計為更加開放和公共,大麵積的落地門窗可以直接打開進入院子。除了入口的展廳/圖書館空間和半私密的會議室外,原先加建的兩翼,由於層高和進深都不足以用來辦公,一個變成了舒適的茶水就餐間:出挑的防腐木平台增加了它的使用功能,當同樣出挑的整麵移窗全部打開時,甚至可以躺在上麵小憩一刻;另一側變成了模型材料室和半戶外的盥洗室。工區則被安排在了方正的裏間,可供12個人辦公。
∇ 空間軸測圖
這根柱子成為了整個空間的視覺焦點,也成為了整個工作室設計的軸心。最開放的功能圍繞柱子展開:展覽、繪圖討論、模型製作、以及圖書借閱都發生在這裏。兩塊6mm厚的不鏽鋼素板從牆壁伸出,在柱子周圍環抱相遇,並將承重腳支撐在柱子上。兩塊板中間的縫隙被磁吸軌道填滿,將這張懸浮的金屬島台變成了可插電的工作台。
隨著舊的被部分拆除:來自8、90年代的方形木頭門套、嵌入牆壁的櫥櫃,以及滲水的石膏吊頂;慢慢裸露出來了建築本身的麵貌:半拱形的紅磚拱券,天花板上的泥板條(用於大概上世紀五六十年代之前的吊頂或隔牆的結構),還有被壁櫥藏起來的壁爐。這些從白色牆壁和天花後麵暴露出來的材料和顏色,終於得以喃喃訴說這幢房屋的曆史和過往。
更多的線索來自裏麵那間房的吊頂,線腳非常精致繁複,並不像8、90年代的粗獷現代的風格,但這些線腳有的延伸到另外一件房的一半就戛然而止了。而那根金色的愛奧尼柱也並不是為了風水放置在屋中央的裝飾柱,而是實打實的承重柱。剝離表麵的金漆,裏麵的混凝土露出粗糙又好看的灰藍色。直到意外發現了隔壁的曆保建築並與之進行了比對,房屋原本的結構和平麵才被真正的確認。柱子本是室外廊柱,而最外麵這件屋子則是後麵某個時期加建出來的。
∇ 施工拆舊現場與金漆敲落後的柱子表麵
而為了不破壞裏間的漂亮的老吊頂,頂麵就沒有安裝燈具,而是用了一圈牆麵洗頂燈,刻意從下往上打亮這個吊頂。最後由一圈跑道一樣的環形燈把原本是室內室外的內外兩個空間“環抱”在了一起。
設計逐漸變成了一場考古。而這些珍貴的證據必須被留存,並被大聲的講出來。於是原本為了空調管道要吊下來的吊頂,要為了避讓柱頭雕花的部分而局部上調,正好形成一個像佛龕一樣的凹口;已經裸露出來的紅磚的拱券,就在它的四周做了吊下來的L型軌道移門,從而不和它發生關係,又能凸顯它的材質和肌理。
新的曆史仍在被建構。在空間作為新用途的設計中,新和舊之間的“關係”是被思考的最多的。在不觸碰的前提下,新的材料往往以戲劇化的形式包圍著老的元素,以新材料(不鏽鋼、長虹玻璃、鋁合金等等)的時代感,來襯托出舊元素的年代記憶。
在追求曆史層次的保留的同時,施工和建造中的一些過程或失誤也被當做所謂“當代曆史痕跡”保存了下來。例如會議室的牆麵原本計劃是用鐵粉做基底,上麵刷白板漆,來達到磁性白板的效果。但無奈施工隊買來的鐵粉刷了幾次都達不到很好的磁吸效果,卻出奇般地刷了一麵肌理非常好看的鐵鏽牆出來。於是索性保留了整麵牆的鐵鏽肌理,再用一塊橫向的鐵皮懸浮於牆麵之外,重新做了磁性白板。這個有趣的動作也無意之間為空間增加了新的一層曆史層次。
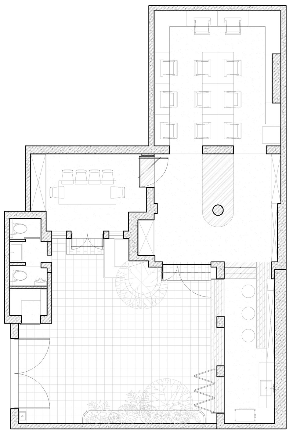
∇ 平麵圖
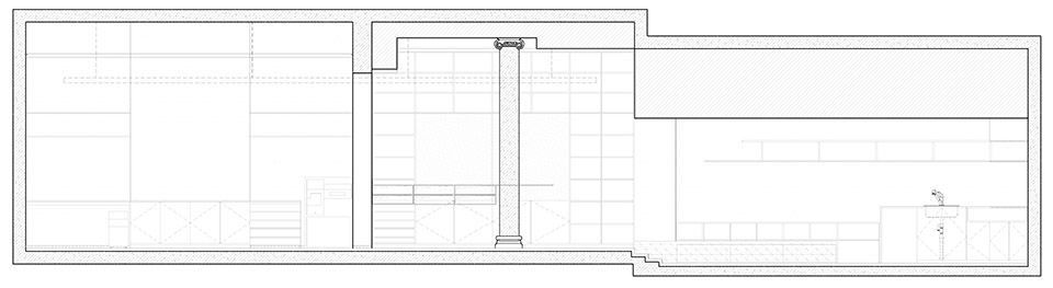
∇ 剖麵圖
項目信息
項目名稱:法租界裏的老房新生—— 直線建築上海辦公室
設計方:上海直線建築設計事務所
項目設計 & 完成年份:2021.4-2021.6
主創及設計團隊:曹子劼、武欣
項目地址:上海市徐彙區淮海中路1390弄
建築麵積:90sqm
攝影版權:朱潤資、武欣
照明顧問:悅森照明科技有限公司
品牌:VMZINC(法鋅)、MOSO(竹木)






























