源起 Origin
坐落在廣州市天河區招商雍華府下的一套疊墅,上下四層,342M²麵積,三代同堂。感受山源之幽,體驗自然古樸,名為“源居”,山遇見水源,注定是場美麗的相逢,一代奮鬥成家的起始處,一個精神休憩的棲居地。
玄關處自然風化的石頭讓“開門見山”的景象回家既視,望向軟膜天花,整個身心瞬時變得自在從容。全白色的空間骨骼,透過光線折射出非同一般的美學創造。
集閱讀、親子空間、娛樂、健身、家庭影院、打遊戲為一體,在多功能廳裏麵裝滿生活,滿足對家的所有想象。8毫米厚鋼板製成的4.7米高大書牆,有了一個讓心安定下來的理由。可移動門板讓孩子擁有一方塗鴉天地。“水滴”靈感為設計的大長台,或是閱讀書寫,或是愜意清酌,在這裏支撐起生活的疲憊和瑣碎。
源趣 Interest
“背有靠山”,依山而坐,沙發背景牆讓前行也多了幾分篤定。亞克力透明的展示櫃,來自世界各地的手辦與雕塑,生活的趣味在此開啟。電視櫃集收納和投影屏於一體,在這裏進入另一個感官世界。
源定 Settle
極簡滲透生活哲學,梯級與背麵被白橡木木地板包裹,玻璃欄杆讓樓梯變得通透鮮明。12米長的榆木交接而成的大吊燈,把LED硬燈帶內嵌在榆木板內,巧妙地解決了樓梯的照明,成為一個樓梯間的視覺焦點,以靜製動,最終彙聚在負二地麵梯級的一個黑色烤漆圓形玻璃麵上,形成一個無法複製的“高山流水”的瀑布景觀。
有品位的家,絕不是統一模板。水滴狀的餐桌與天花頂上的水滴吊燈呼應,讓“一滴水彙聚江海”渾然天成。黑色橡木板牆體,解決了電視與收納的雙重功能。富有詩意和哲理的“裝置畫”成為沙發背景,白居易的古詩“玩山水”讓心變得更加灑脫坦蕩。
源韻 Appeal
環島式設計的主人房,把床與書桌合拚為一體,定製亞克力流水狀吊燈傾流而下,為整個臥室注入絲絲清韻。坐在吊掛長條卡座,春風路過窗台,喊我們一起熱愛生活。
生活的美好,是設計用了心。一牆一地,一豎一橫,縱橫之間彰顯別致。觸摸大落地鏡子,看到的都是美好生活的模樣。大理石長條洗漱台,雙出水龍頭,壁掛式馬桶,品質,離你如此之近。
一宅容天下,一墅定人生,歲月清淺,歸屬與精致並存。幸福美滿源源不斷,歡聲笑語源源不斷,讓家都能記載著每一時刻的生活痕跡。
∇ 軸測分析圖
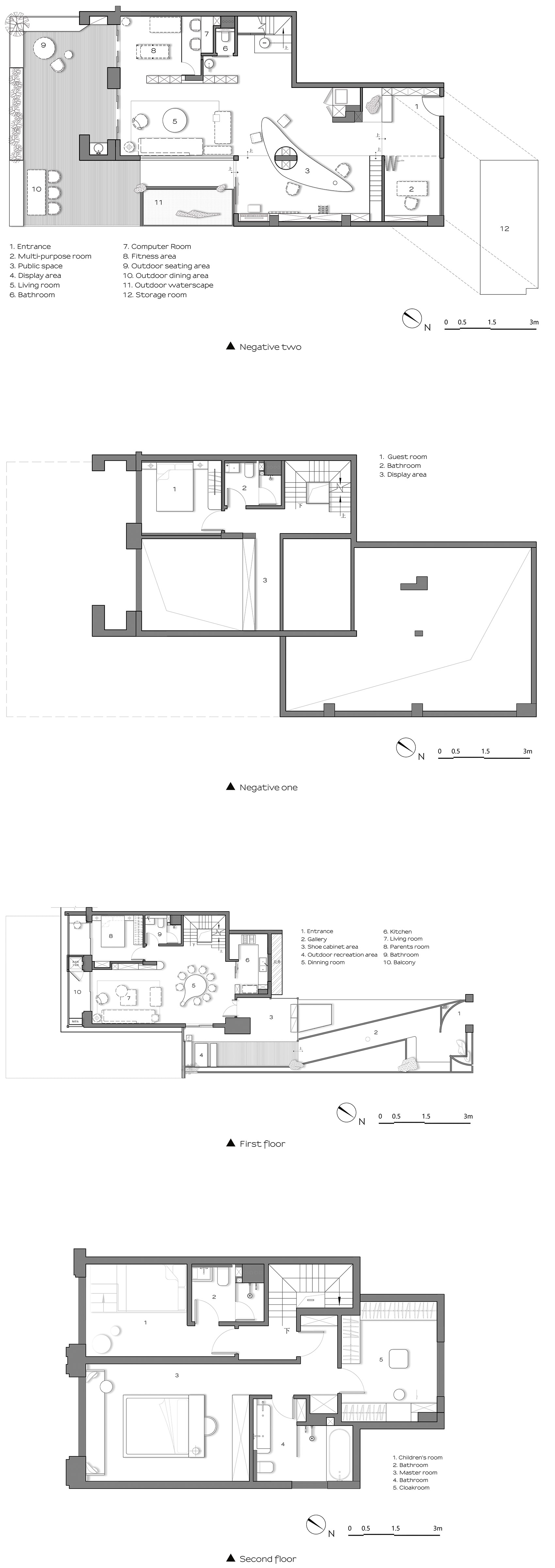
∇ 平麵圖
項目信息
項目名稱: 源居
項目地點:中國廣州
設計公司:PDD深點設計
主創設計:鄭小館
設計團隊:黃炳森、陳槿珊、楊子友
施工:冠宇工程—黃誌勇
攝影:視方攝影—翱翔
設計時間:2019年5月
完工時間:2021年8月
項目麵積:342㎡
主要品牌:西舞定製、天古陶瓷、有末、耐霆漆、梵品、約克、利沙照明、天物家居





































